查看完整案例

收藏

下载

翻译
Architects:DDconcept
Area:300m²
Year:2023
Lead Architect:To Anh Dung
City:Ho Chi Minh City
Country:Vietnam
Text description provided by the architects. The home is the nest of a young family consisting of five members, situated in a new residential area 20km east of downtown Ho Chi Minh City, where the population density is low and there are plenty of green spaces. Residential architecture is a genre that incorporates many personal elements of the homeowner. In this project, we have addressed the needs of the homeowners while creating a comfortable living space with the characteristics of tropical architecture, allowing seasonal breezes and minimizing impact on the existing ecosystem of the land.
The homeowners aspire to a living space that seamlessly integrates with nature, providing ample room for their children to play and explore, while still ensuring the conveniences of a modern urban dwelling. Most areas of the home offer views of lush green gardens and skylights, inviting the natural world inside. From within, one can experience the ever-changing nuances of nature throughout the day and seasons, thanks to the abundance of green spaces adorned with various flora, perpetually bathed in natural light, rain, and breezes.
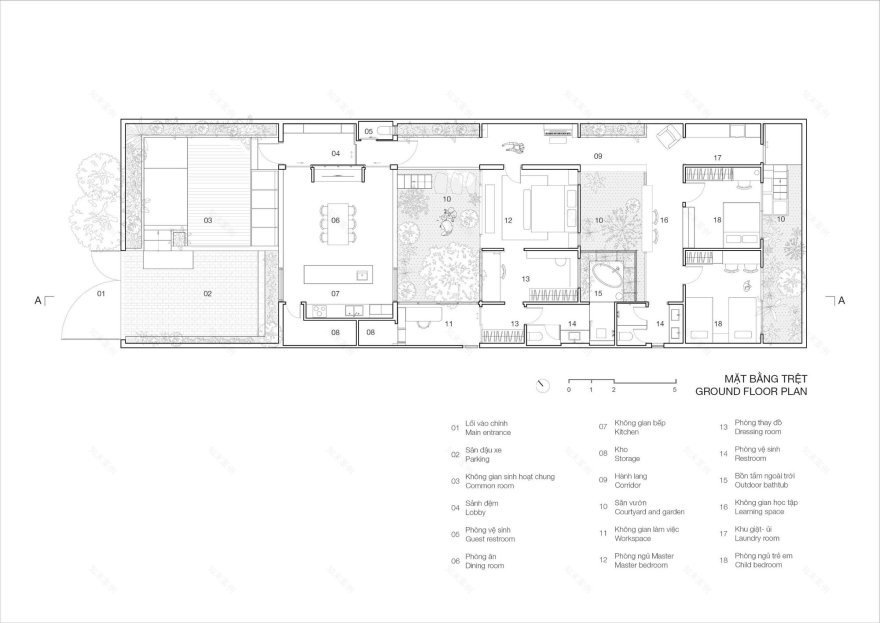
Transitioning from high-rise apartment living to ground level, the homeowners sought a space that retains the familiar functionalities. Hence, all activities are consolidated onto a single floor spanning 300 square meters, mirroring the functionalities of a typical apartment. Clear demarcations between communal and private spaces are eschewed in this design.
Features such as courtyards, verandas, and corridors, characteristic of tropical seasonal architecture, serve as transitional spaces between indoor and outdoor realms, mitigating thermal radiation into the main living areas. Additionally, these spaces are multi-functional, accommodating various activities. The reduction in usable space in favor of transitional areas enhances connectivity with nature and fosters greater interpersonal interactions, nurturing both physical and mental well-being.
To create a comfortable climate within the west-facing home, a special system of flooring and shading structures was designed. The dual-layer sloped roof serves as an effective solution for reducing solar heat transmission. Moreover, the home's elevated flooring provides natural flood protection while promoting rapid heat dissipation and offering an engaging play space for the children.
Overall, this design prioritizes environmental harmony, functionality, and comfort, offering a refreshing and enjoyable living environment for its inhabitants.
客服
消息
收藏
下载
最近













