查看完整案例

收藏

下载
以人性化的街道景观而闻名的日本代表性温泉胜地 —— 由布院温泉,直到昭和中期这里都是广阔的田野与农户村庄。项目是一家以梯田景观为主要元素的日式客栈,设计旨在让旅客们切身体验到当地原始的乡村氛围。
▽项目与周边环境鸟瞰©︎ Shunko Shashin Shinsei Kensetsu
▽梯田鸟瞰©︎ Shunko Shashin Shinsei Kensetsu
▽鸟瞰分散在主建筑周边的偏屋©︎ Shunko Shashin Shinsei Kensetsu
低矮的深檐坡屋顶建筑分布在梯田景观周围,主要建筑体量周边还规划了一系列木造的偏屋。
▽由梯田看建筑©︎ Shunko Shashin Shinsei Kensetsu
▽项目与周边环境半鸟瞰©︎ Shunko Shashin Shinsei Kensetsu
▽庭院©︎ Shunko Shashin Shinsei Kensetsu
▽晨雾露台©︎ Shunko Shashin Shinsei Kensetsu
低层建筑的北侧被橡树林环抱,而南侧则可以远眺到清晨雾气弥漫的山谷,从建筑东侧的露天温泉还可以看到美丽的玉夫山。深绿色的外墙与分散的建筑形式使建筑消隐在丰富的自然环境中。
▽公共主楼东北侧外观©︎ Shunko Shashin Fujita
▽公共主楼南侧外观©︎ Shunko Shashin Fujita
▽公共主楼南立面全景©︎ Shunko Shashin Fujita
▽温泉栋外观©︎ Shunko Shashin Fujita
▽由露天温泉池看周边景观©︎ Shunko Shashin Fujita
▽露天温泉池©︎ Shunko Shashin Fujita
▽1栋外观©︎ Shunko Shashin Fujita
▽2~3栋外观©︎ Shunko Shashin Fujita
▽由梯田看2~3栋外立面©︎ Shunko Shashin Fujita
▽4栋外观©︎ Shunko Shashin Fujita
▽4栋露台©︎ Shunko Shashin Fujita
▽5~6栋外观©︎ Shunko Shashin Fujita
▽由主建筑露台看一系列偏屋©︎ Shunko Shashin Fujita
在室内,建筑师参考了传统农舍建筑的空间组织,包括:“たたき”(采用土制地面的前厅),“板間”(铺设有木制地板的房间)和“座敷”(铺设有榻榻米的日式房间)。
▽公共建筑入口©︎ Shunko Shashin Fujita
▽入口玄关©︎ Shunko Shashin Fujita
▽底层公共空间概览©︎ Shunko Shashin Fujita
▽炉灶风格的前台©︎ Shunko Shashin Fujita
▽咖啡厅©︎ Shunko Shashin Fujita
▽大面积开窗引入采光与视野©︎ Shunko Shashin Fujita
▽公共温泉浴室©︎ Shunko Shashin Fujita
▽二层露台©︎ Shunko Shashin Fujita
在“たたき”风格的前厅大堂中还配置了炉灶风格的前台,“板間”部分则采用了竹皮地板。“座敷”部分则被转化为环抱梯田的长廊空间,客人们可以坐在七岛蔺草蒲团或坐椅上,饱览梯田景致。
▽1栋民宿室内©︎ Shunko Shashin Fujita
▽鲜明的日式风格©︎ Shunko Shashin Fujita
▽客房浴室©︎ Shunko Shashin Fujita
在家具和室内陈设方面,设计团队尝试尽可能多地使用当地的材料,旨在将农家风情升华为艺术,堪称后疫情时代重启“民艺”文化的一次尝试。
▽灯具与陈设细部©︎kkaa
▽夜景©︎ Shunko Shashin Fujita
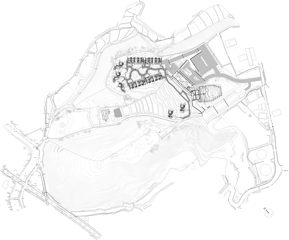
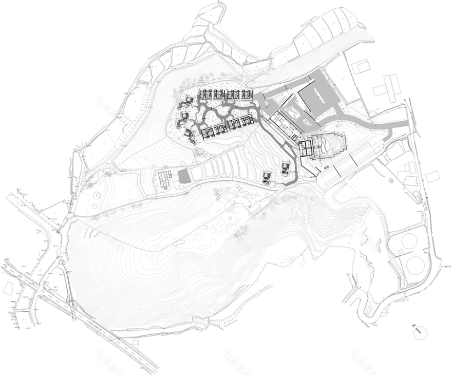
▽场地平面图©︎kkaa
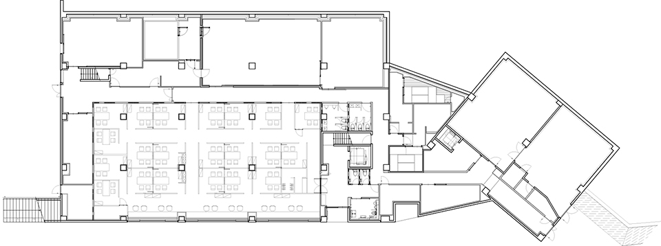
▽公共建筑一层平面图©︎kkaa
▽公共建筑二层平面图©︎kkaa
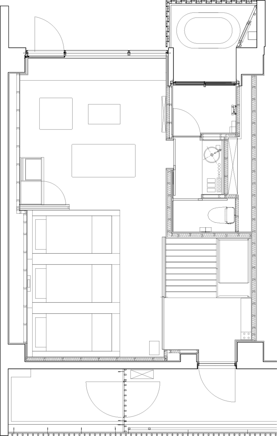
▽1栋民宿客房单元平面图©︎kkaa
▽3栋民宿客房单元平面图©︎kkaa
▽4栋民宿客房单元平面图©︎kkaa
客服
消息
收藏
下载
最近









































































































































































