查看完整案例

收藏

下载
Casa Hoyos精品酒店诠释了墨西哥本土建筑的特征,同时融合了多样的现代元素与氛围,旨在为其顾客提供极致的住宿体验。
▽项目概览© Diego Padilla
酒店坐落在圣·米格尔·德·阿连德市中心,一座被列为联合国教科文组织世界文化遗产的历史名城。这座标志性的房产历经了Hoyos家族四代人的掌管,不仅蕴含了与殖民时期相关的建筑特征,还融入了许多和当地手工技艺发展相关联的现代元素,例如釉面陶瓷、花面瓷砖和黏土板等。
▽酒店庭院© Diego Padilla
▽庭院一角© Diego Padilla
建筑内部包含了多种墨西哥现代主义的标志性元素,如纯混凝土、纹理玻璃、钢制框架和黑色的镶边,展现出一种从历史与传统转向情感与活力的有趣过渡。一系列元素精准地捕捉了现代设计的本质,凸显了简洁的线条和材料的丰富质感。
▽凉廊© Diego Padilla
▽细节© Diego Padilla
建筑的室内设计由A-G Studio完成。以古老的西班牙庄园风格为出发点,设计唤起了传统事物与不同隐喻间的相互对话,并通过颜色和几何图案来回应并纪念场地的商业历史——这里曾经被用作存放种子和粮食的仓库,以及首个货币兑换所。
▽墨西哥本土建筑特征融合了多样的现代元素© Diego Padilla
▽公共空间© Diego Padilla
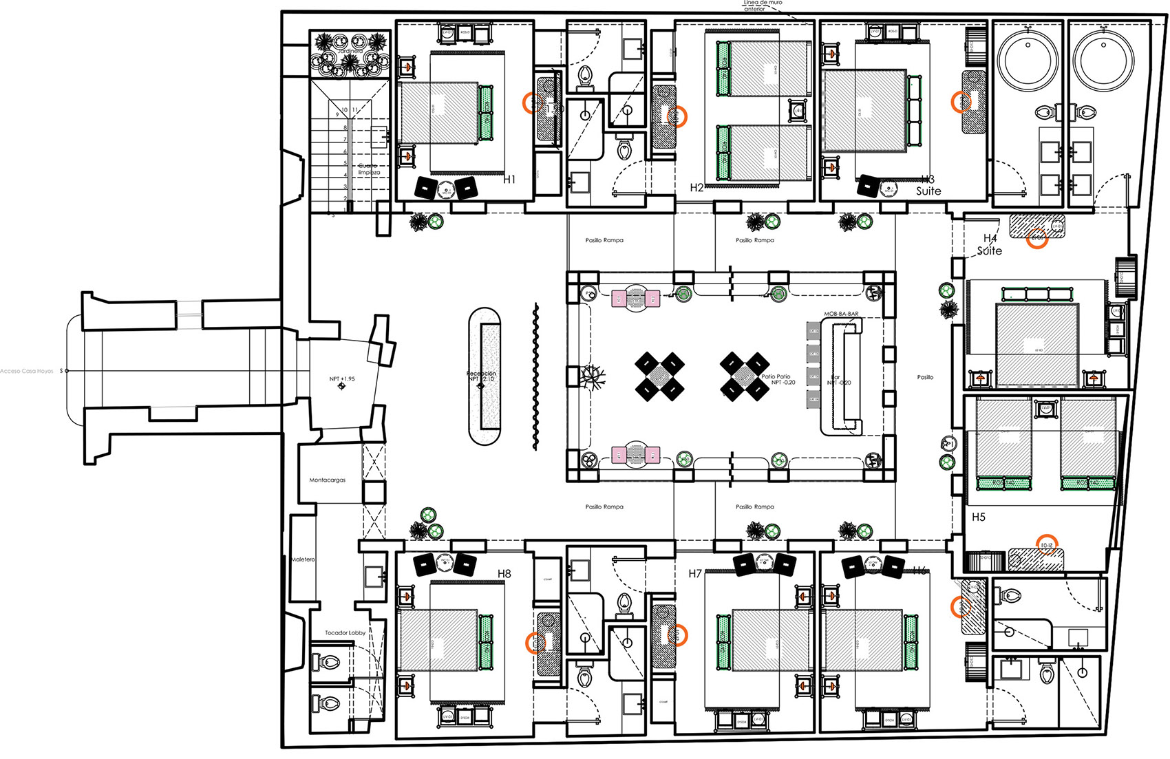
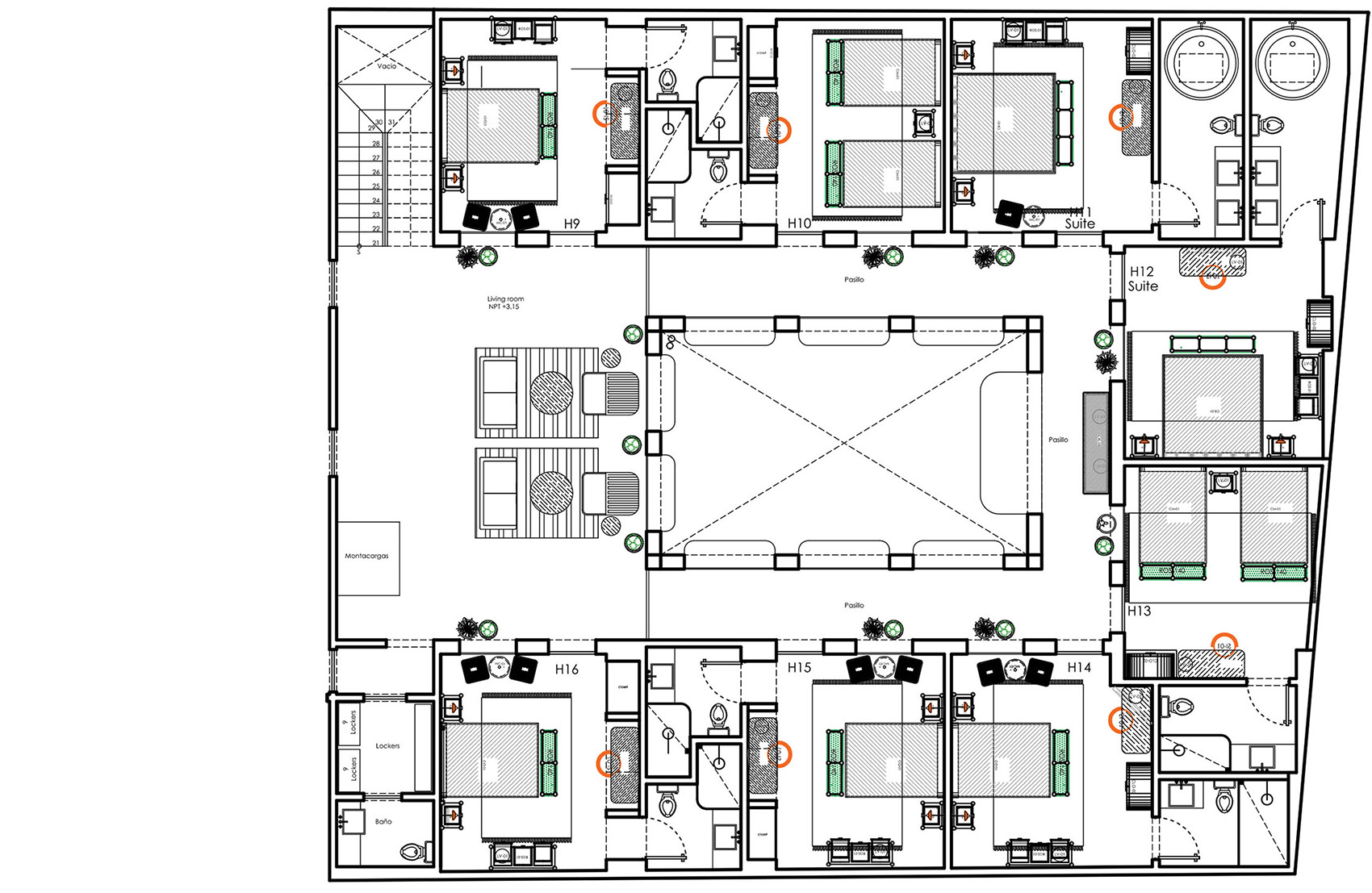
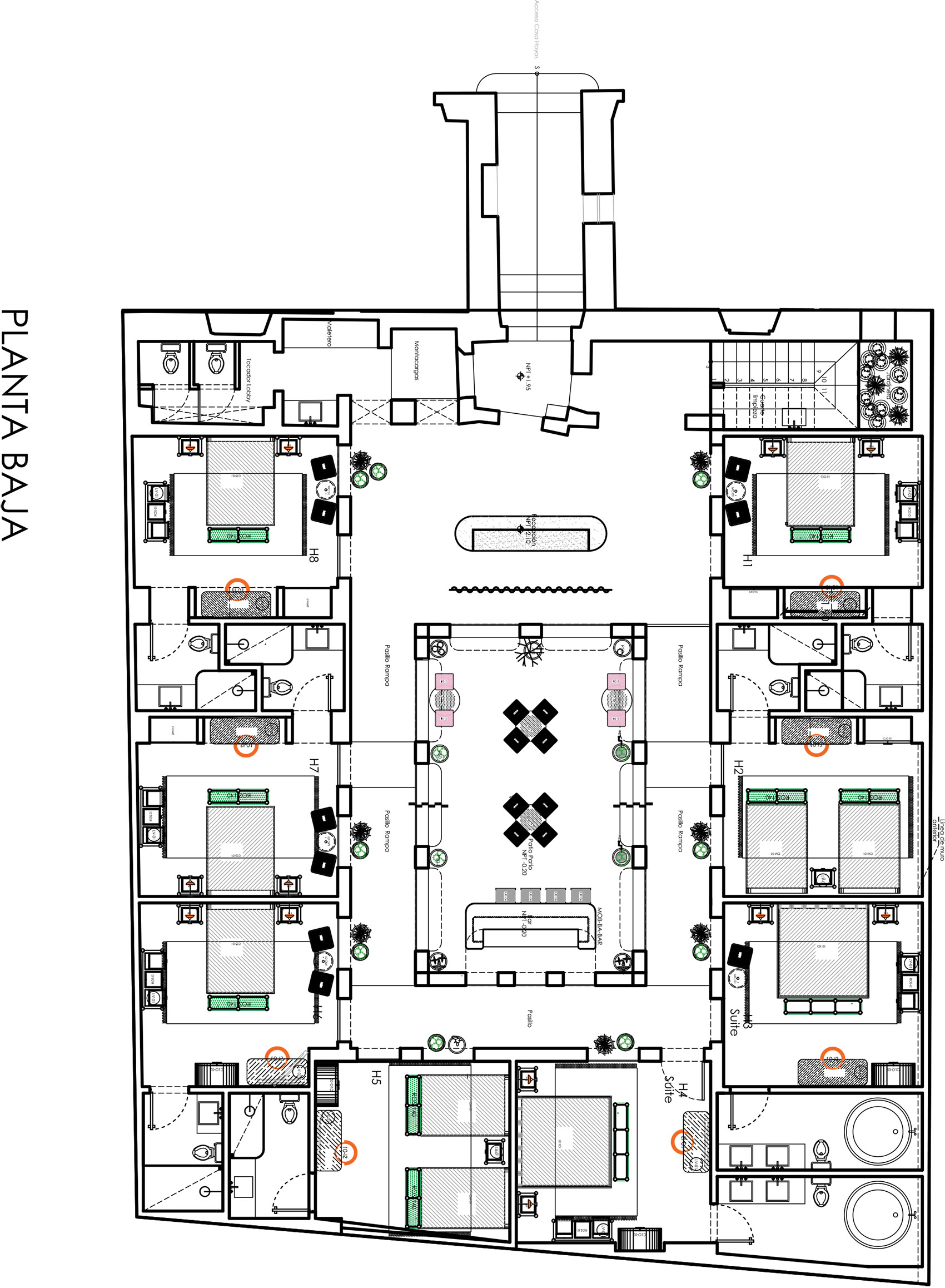
别墅中一共包含16个房间,其内部均装饰以独特的手工制品,包括灯具、卡拉卡扶手椅、镜面花盆以及编织挂毯等,在彰显墨西哥本土设计的同时,也揭开了这座建筑在当今时代的全新篇章。
▽客房© Diego Padilla
▽编织挂毯© Diego Padilla
▽浴室© Diego Padilla
Casa Hoyos所处的优越位置使客人能够从露台上观赏到绝美的日落景象。屋顶餐厅BEKEB为客人提供基于本地植物手工调制的酒单,并搭配以墨西哥烹饪传统为灵感的小吃。
▽屋顶平台© Diego Padilla
▽日落十分© Diego Padilla
▽底层平面图© A-G studio
▽顶层平面图© A-G studio
客服
消息
收藏
下载
最近
























































