查看完整案例

收藏

下载
本项目是东京都中心一栋相对紧凑的租赁式办公楼。项目地块面向地铁站正上方的十字路口,位于从大手町延伸至日比谷大道的大型开发建筑群的末端,可以隔着日比谷公园远眺内护城河沿岸的高层建筑。
▼建筑概览,Overview of the building©Harunori Noda [Gankohsha]
This project involves a relatively compact tenant building situated in the heart of Tokyo. Facing an intersection, the site is located directly above a subway station at the end of a series of large-scale developments stretching from Otemachi to Hibiya Street. It offers a panoramic view of the high-rises standing along the inner moat beyond Hibiya Park.
▼建筑特写,Close-up of the building©Kenya Chiba
大楼设计的三大主题包括“银泉品牌旗舰大厦的象征性”“租赁式大楼的合理性”以及“非大规模城市开发中的办公楼丰富城市空间的可能性”,并采用日本自古以来的住宅中常见的“屋檐与缘侧(传统日式住宅中的檐廊)”的形式来呼应这些主题。我们希望银泉西新桥大厦能够成为非大规模城市开发中的普通租赁式大楼的设计原型,并为处理与环境和城市空间的关系提供新思路。
▼屋檐特写,Close-up of the eaves©Harunori Noda [Gankohsha]
The design operates on three themes: “symbolic significance as the flagship building of the Ginsen brand,” “rationality as a tenant building,” and “the potential for an office building without large-scale development to enrich the urban landscape.” In response to these themes, the form of “eaves and verandas” commonly found in traditional Japanese homes were employed.
▼立面特写,Close-up of the facade©Harunori Noda [Gankohsha]
从与城市空间的关系中诞生的象征性
Symbolism originating from interaction with urban space
我们将从日比谷公园延伸至大手町的整个城市空间视为总体用地,正对着巨大的城市轴线设置了十二层斜屋檐,并在屋檐下合理配置了形状规则的无柱办公室。
▼场地分析图,Location diagram©日建设计
▼底层空间,Ground level spaces©Harunori Noda [Gankohsha]
The whole urban expanse from Hibiya Park to Otemachi serves as the conceptual site. Facing this major city axis, twelve eaves are set at an angle, under which pillar-free, functional office rooms are installed.
▼局部特写,Partial close-up©Harunori Noda [Gankohsha]
▼温和的质感,Soft texture©Nikken Sekkei Ltd
▼材料细部,Details of the materials©Kenya Chiba
建筑内虽没有什么特别的城市繁华设施,也没有广场空地,但边缘融入空中的层层叠叠的屋檐在中型办公楼与城市空间的交界处创造出一个具有立体进深的中间区域。如此一来,大楼不仅具有了象征性,吸引在十字路口处等待信号灯的行人不由自主地抬头仰望,还将外立面从单纯的外装变成了垂直方向的城市结构 Urban Fabrics。
▼空间分析,Spaces diagram©日建设计
This layering of eaves that seamlessly blends into the sky creates a spatial depth at the interface between the cityscape and the mid-scale office building, which is typically void of special urban attractions or open squares. The facade has evolved from mere external decoration into vertical “urban fabric,” generating a symbolic appeal that captivates people waiting at the intersection.
▼入口特写,Close-up of the entrance©Kenya Chiba
▼门厅,Hallway©Kenya Chiba
良好的工作环境与周边环境、地球环境息息相关
Well-designed workplace environment linked to local and global ecology
在标准层中,作为从布局规划开始就考虑到的根本性环保策略,我们在建筑南面配置“人员核心筒”(电梯和卫生间),西面配置“设备核心筒”。通过分散配置的方式,避免办公室直接面向日照负荷较高的西南外墙。办公室在面向大街的北面和东面采用通高窗框的大开窗,窗前延伸出的屋檐在抹角地块和规整的出租房间的余白处形成了像缘侧一样的空间。
As a fundamental environmental strategy, on the typical floors, the “Human Core” (comprising elevators and toilets) was located on the south side while the “MEP Core” was placed on the west side to prevent office spaces from directly facing the southwest outer wall with high heat load. Office rooms were opened wide with full-height sashes on the north and east facades facing the main road. Overhanging eaves extend beyond these windows, filling the empty space between the rectangular room and angular site boundary with a veranda-like spatial extension.
▼室内,The interior©Harunori Noda [Gankohsha]
大楼使用港区政府木材二氧化碳固定认证制度《Minato Model》中的木材,屋檐特意采用宽度、厚度和颜色不均的节疤木拼接成红白相间的样式,在作为环保策略起到固定二氧化碳作用的同时,还在熙熙攘攘的十字路口和办公室之间形成一个心理缓冲带,加上屋檐形成的缘侧所营造出的空间上的扩展感,大大提升了作为租赁式办公楼的市场竞争力。
Utilizing wood under the administrative framework “Minato Model,” the eaves made of non-homogenous wood serve dual functions; they capture carbon dioxide as an environmental feature and act as a psychological buffer between the intersection’s bustle and the quiet office space. Together with the feeling of verandas, they enhance the commercial appeal of the office building.
▼半室外空间,Semi-open spaces©Harunori Noda [Gankohsha]
紧急情况发生时,可以从办公室北端的窗框处直接到达西面“设备核心筒”的室外维护通道,尽管不属于法定疏散通道,但却成就了没有“死胡同”的高安全性的平面设计。
The outdoor maintenance corridor for the “MEP Core” on the west side is also accessible from the northernmost office rooms. While it is not a legally mandated evacuation route, the floor plan is designed with a high level of safety without dead ends.
▼傍晚景色,At dusk©Harunori Noda [Gankohsha]
我们希望银泉西新桥大厦能够成为非大规模城市开发中的普通租赁式大楼的设计原型,并为处理与环境和城市空间的关系提供新思路。
The Ginsen Nishi Shimbashi Building aims to become a prototype for general tenant buildings, defining their relationship with the environment and urban space.
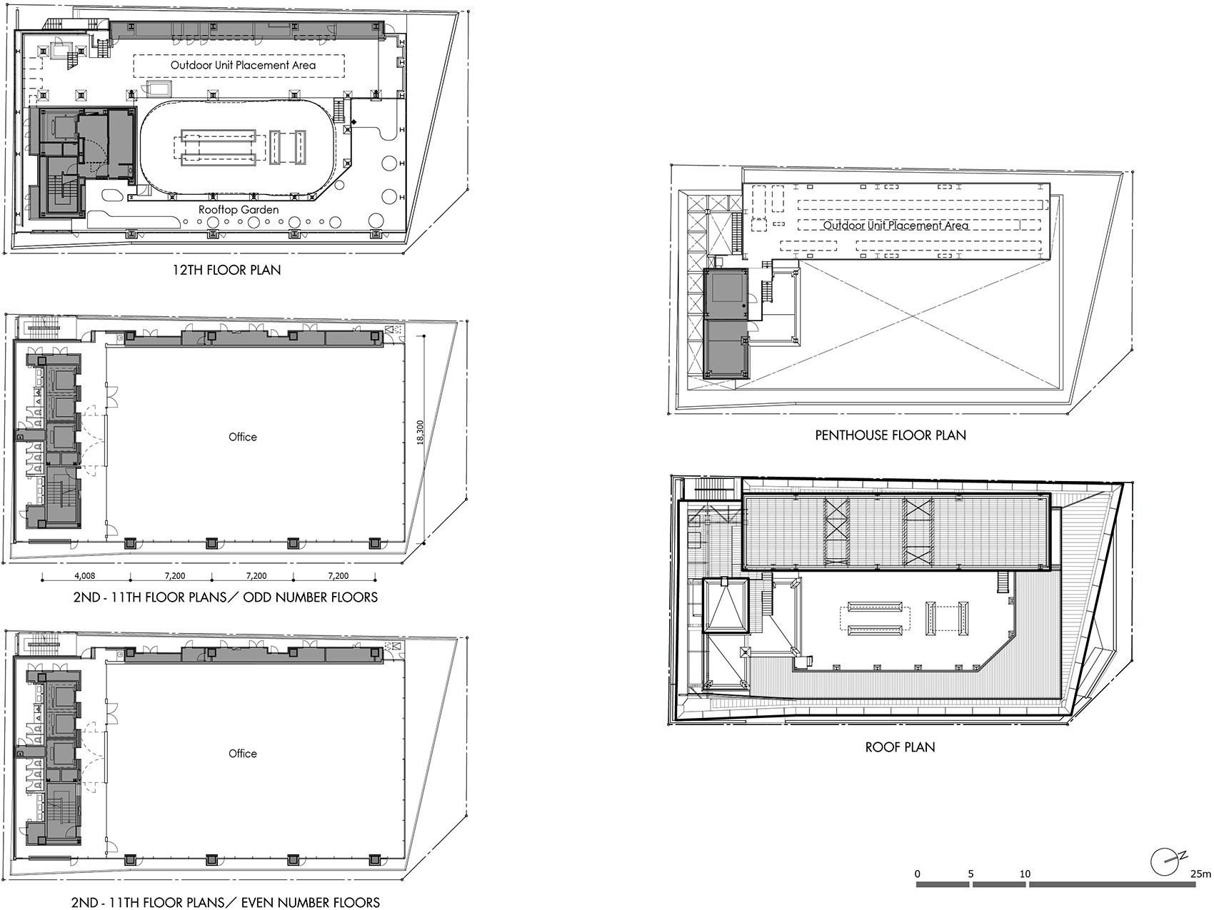
▼首层平面图,First floor plan©日建设计
▼标准层平面图,Typical floor plans©日建设计
▼立面图,Elevations©日建设计
▼剖面图,Sections©日建设计
▼细部,Details©日建设计
项目名称(中文):银泉西新桥大厦
项目名称(英语):Ginsen Nishi Shimbashi Building
用途:办公室(一楼为商铺)
所在地(都道府县、市):东京都港区
用地面积(㎡):868.81
建筑面积(㎡):7,776.26
层数:地下 1 层、地上 12 层、阁楼 1 层
檐口高度/最高高度(m):52.21/58.375
主体结构:钢结构、部分钢筋混凝土结构
竣工年月:2022 年 1 月
业主(中文):银泉株式会社
业主(英语):Ginsen Co., Ltd.
主创设计:日建设计
主要业务范围:设计、监理
施工单位:株式会社大林组
照片来源 1(中英):野田东德[雁光舍]/Harunori Noda [Gankohsha]
照片来源 2(中英):千叶显弥/Kenya Chiba
照片来源 3(中英):日建设计/Nikken Sekkei Ltd
渡边由纪:建筑设计总部 设计部门 设计总监
山中浩太郎:建筑设计总部 国际设计部门
Project name (English): Ginsen Nishi Shimbashi Building
Purpose: Office (ground floor used as retail shops)
Location (city, prefecture): Minato Ward, Tokyo
Site area (m2): 868.81
Total floor area (m2): 7,776.26
Number of floors: Basement 1 floor, above-ground 12 floors, 1 penthouse floor
Eave height/maximum height (m): 52.21/58.375
Main structure: Steel frame construction, partially reinforced concrete
Completion month/year :January 2022
Client name (English) :Ginsen Co., Ltd.
Lead architect: Nikken Sekkei Ltd
Main scope: Architectural Design and Site Supervision
Construction Contractor: Obayashi Corporation
Photo credit 1 (Japanese and English): Harunori Noda [Gankohsha]
Photo credit 2 (Japanese and English): Kenya Chiba
Photo credit 3 (Japanese and English): Nikken Sekkei Ltd
Project Members:
Yuki Watanabe: Architectural Design Department, Architectural Design Group, Director
Kotaro Yamanaka:Architectural Design Department, Global Design Group, Project Architect
Products and Materials:
Glass,Low-E double glazed glass: Nippon Sheet Glass Co., Ltd
Exterior aluminum sash, Aluminum profiles (fluororesin baked coating): Sankyo Tateyama, Inc.
Exterior natural wood, Cedar wood (treated for durability and coated with weather-resistant paint): Tukusi,Kanematsu Sustech Corporation
Exterior aluminum panel, Aluminum panel 4mm (fluororesin baked coating): MIYABI CO., LTD
客服
消息
收藏
下载
最近


























