查看完整案例

收藏

下载
Cala Blanca 是一栋 4 居室住宅,位于名为“Biombo Secrets”的独特别墅酒店内。 距离巴厘岛 Pererenan 海岸仅 800m。 这个大院是一系列精选的别墅,适合所有想要在巴厘岛度假的人,以及建筑思想设计的住宿体验。 其他著名的别墅,如巴厘岛卡拉博纳别墅、巴厘岛卡拉布兰卡别墅和巴厘岛卡拉特拉别墅都是该建筑群的一部分。
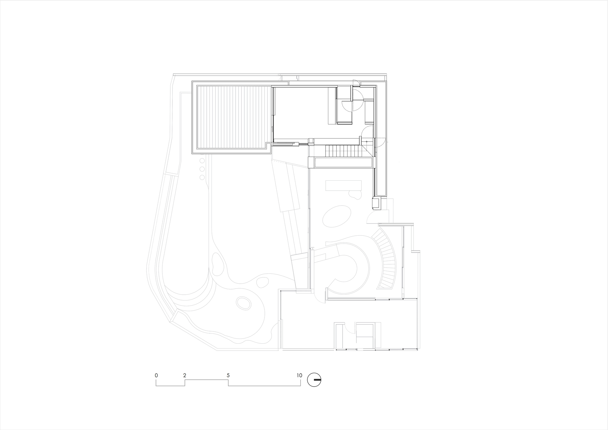
卡拉布兰卡别墅的地块面积为450平方米。 该项目的挑战是设计这些房屋以最大化空间,因此每栋房屋本身都会感觉宽敞。 所有的布局都经过仔细考虑,以征服和利用所有狭小的空间和角落。 我们选择在土地最长的一侧设计长体量的别墅,以创建一个大的平面,这样我们将拥有更大的视觉幅度和更少的来自邻居别墅的干扰。 此外,别墅之间的层次差异使得隐私成为该项目的成功之处之一。
为了最大限度地利用地块空间,所有别墅都设计了一个单独的停车场,并有一个公共入口和通道走廊,这是这个特殊建筑群的独特之处之一。 走进走廊,一条曲折的走道将您带到别墅,周围是郁郁葱葱的绿色、天然石材和沿途几乎相互接触的屋顶。
一进入别墅,您就进入了起居区,高倾斜的木质天花板覆盖了厨房、客厅和餐厅,成为同一空间的一部分。 在这个领域,您已经可以成为我们标志性概念之一的一部分:将自然带入室内。 下沉式沙发区和厨房周围的棕榈树和植物是房子的一部分,家具或其他元素也是如此。 大自然是身体健康的补品。 它可以降低血压,稳定心率,并减少应激激素的产生。 在过去的七年里,我们在自己的住所中践行了这一概念,我们每天都相信,这是我们希望将其纳入我们设计的一部分。 这些亲自然住宅的其他要素是需要自然光和通风以及使用木材、石材等天然材料,自然带来身心舒适的感觉。
Cala Blanca 分布在三层楼,共有四间豪华卧室。 一楼设有其中三间,而一楼专门设有一间通向宽敞露台的豪华主人套房。 地下室被认为是娱乐的角落,不会打扰睡在楼上卧室的其他人。 设有一间轻松的酒吧和一间最先进的电影室,以及基本的服务设施。 一楼的两间卧室可直接通往花园,花园延伸了标志之一:咸水池。
游泳池本身就是一种建筑设计。 有机设计采用定制大理石块和平滑的斜坡,模仿绿松石海滩。 它坐落在迷你椰子丛林的阴影下,为居民提供了家中的一片天堂。 卡拉布兰卡的与众不同之处在于它与巴厘岛茂密的热带植被的有意对话。 该设计无缝地融合了室内和室外空间,培养了自然与住宅之间的亲密关系。 木材和石材等当地材料和谐地融为一体,注入水泥的现代泡沫工作形状形成鲜明对比,凸显了它们的真实性。
在卡拉布兰卡,就像在我们的其他项目中一样,我们试图将巴厘岛的永恒魅力与当代设计的精致结合起来。 利用建筑的力量提升我们的生活体验,让我们与自然和周围的世界更深入地联系起来。
项目设计:Biombo Architects
项目面积: 280.2501349m²
项目年份:2023
项目摄影:Sheila Man Baliinteriors, KIE
供应商: AutoDesk, Lumion, Sika, Dekson, Dulux, HUMMINGBIRD, KING KOIL, Modena, Niro granite, Panasonic, Quadra, TOTO INDONESIA, Trimble
首席建筑师:Biombo architects
项目顾问:Nautilus Engineering Consultant
项目业主: Biombo Secrets
Engineering & 项目建造: CV Jayaba
合作者: Pointerior, Agung Landscape Bali
项目国家: Indonesia
设计师:Biombo Architects
语言:英语
客服
消息
收藏
下载
最近































