查看完整案例

收藏

下载
Solo Luminosa 是 SOLO 的第一个项目,一个以自然为基础的住宿连锁店。 凭借 CONTRA 签署的架构,该连锁店的主要支柱是偏远自然和生物当代建筑。
这间 140 平方米的小屋坐落在曼蒂凯拉山 (Serra da Mantiqueira) 的一个名为 Luminosa 的小镇中,半埋在橄榄树林和绵延山地平线的原始景观之间。
生物当代建筑
是 Solo 创建和设计的概念。 我们的小屋通过对当地建筑传统、生物建筑、当代设计和可持续技术的重新诠释,与景观相连并融为一体。
材料
不同用途、形式和饰面的泥土、石头和木材。
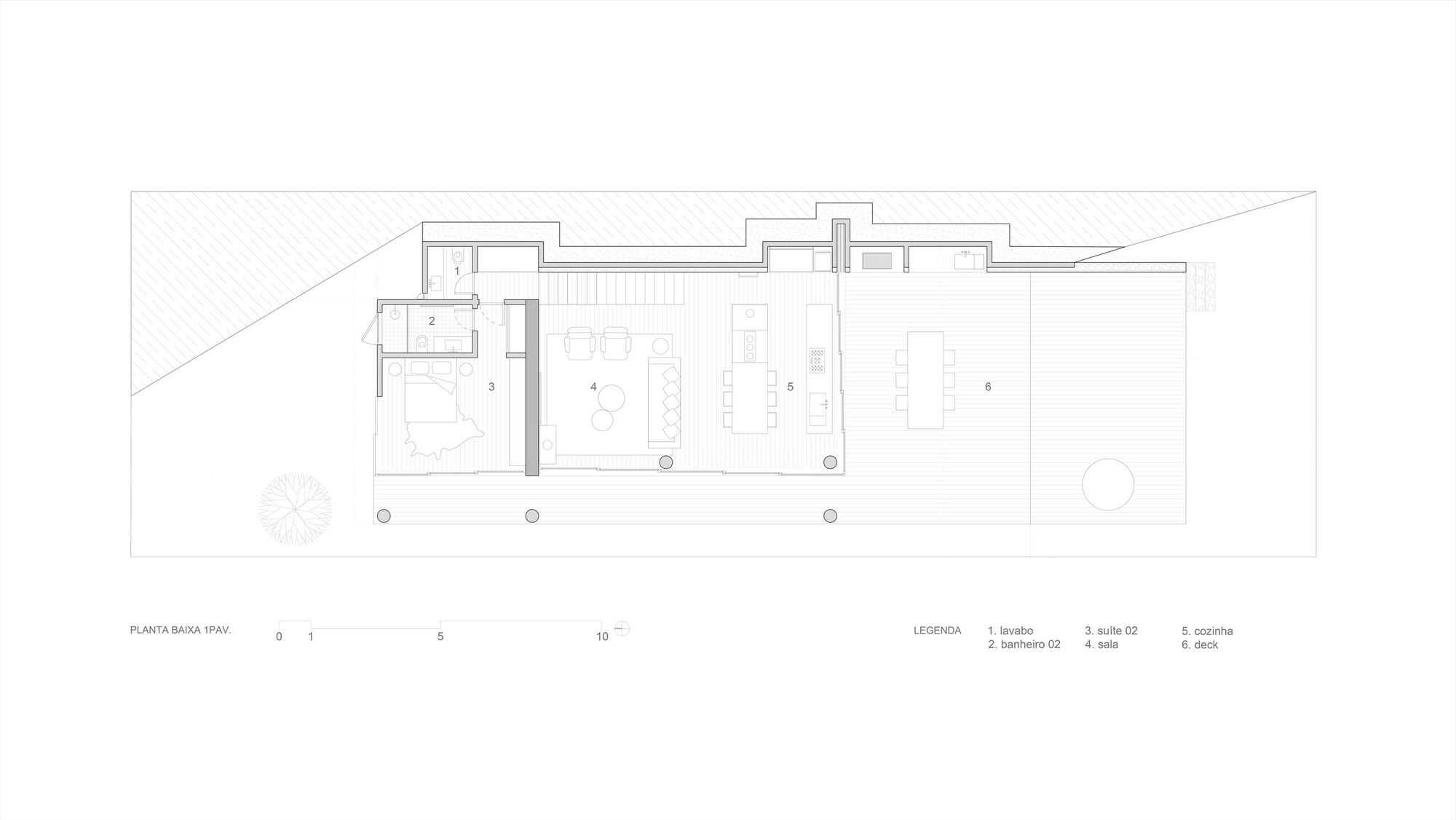
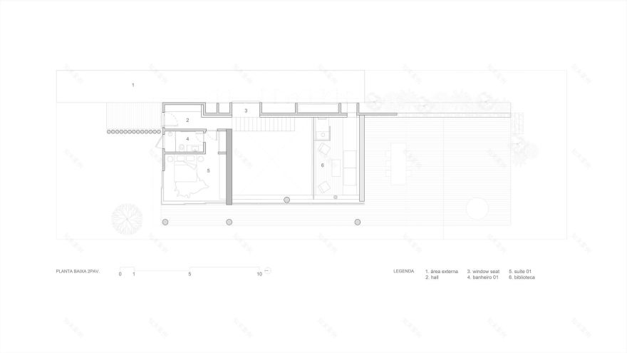
屋顶由桉木原木和夯土墙支撑,遵循曼蒂凯拉山脉的山势。 房子的中心是一堵高7米、厚50厘米的墙,墙体是直接从土壤中收集的夯土制成的。 它将房子的一侧划分为双层高的客厅,另一侧划分为两间双人套房。
拆除、碳化、itaúba、cumaru、桉树,我们使用不同类型和应用的木材。 从地板、墙壁和天花板到我们设计的家具。
从房产周围收集的粗糙且无接缝的野生石头覆盖了结构墙,该墙将房屋与土地沿其整个长度分开。 这些石头覆盖了房子的双高延伸部分,从夹层到大厅,并到达地下卫生间,那里有一条失去岩石的隧道来接收阳光。
自然融合
我们建筑最强大的特征之一是不断尝试打破建筑与自然之间的障碍,同时在野外环境中伪装我们的几何形状。
在 Solo Luminosa,乍一看,碳化木立面将房屋的一半隐藏在挖掘的山坡后面。 唯一的开口是靠窗的座位,这是一个阅读角,可以让您透过房子的双层天花板看到另一边的山脉,并在寒冷的日子里让早晨的阳光照进来。
与此同时,在另一侧,整个立面都面向色彩缤纷的山日落,将整个房子像一个大阳台一样开放。
设计
从建筑到家具设计和装饰,我们参与完成每个 Solo 过程的每个阶段。
我们设计了原创作品,放置在房子的每个小角落。 电灯开关、门、桌子甚至餐巾纸。 我们在巴西和世界各地回收反映我们精髓的物品。 无论是旧水龙头、古董黄铜装饰还是老式设计师家具。 我们关心每一个细节。
项目设计:CONTRA arquitetura
项目面积: 1507 ft²
项目年份:2022
项目摄影:Rafael Visentainer, Vitor Hugo
首席建筑师:Candice Ames e Luísi Fajardo
Team: Laís Porcino, Mayara Gessie, Alessandra Damasceno, Luca Ames
Construction Team: Marquinhos
Program: Cabana com 2 suítes, mezanino, lavabo, sala integrada com cozinha, deck e ofurô
项目国家: Brazil
设计师:CONTRA arquitetura
语言:英语
客服
消息
收藏
下载
最近



























