查看完整案例

收藏

下载
胡同肌理
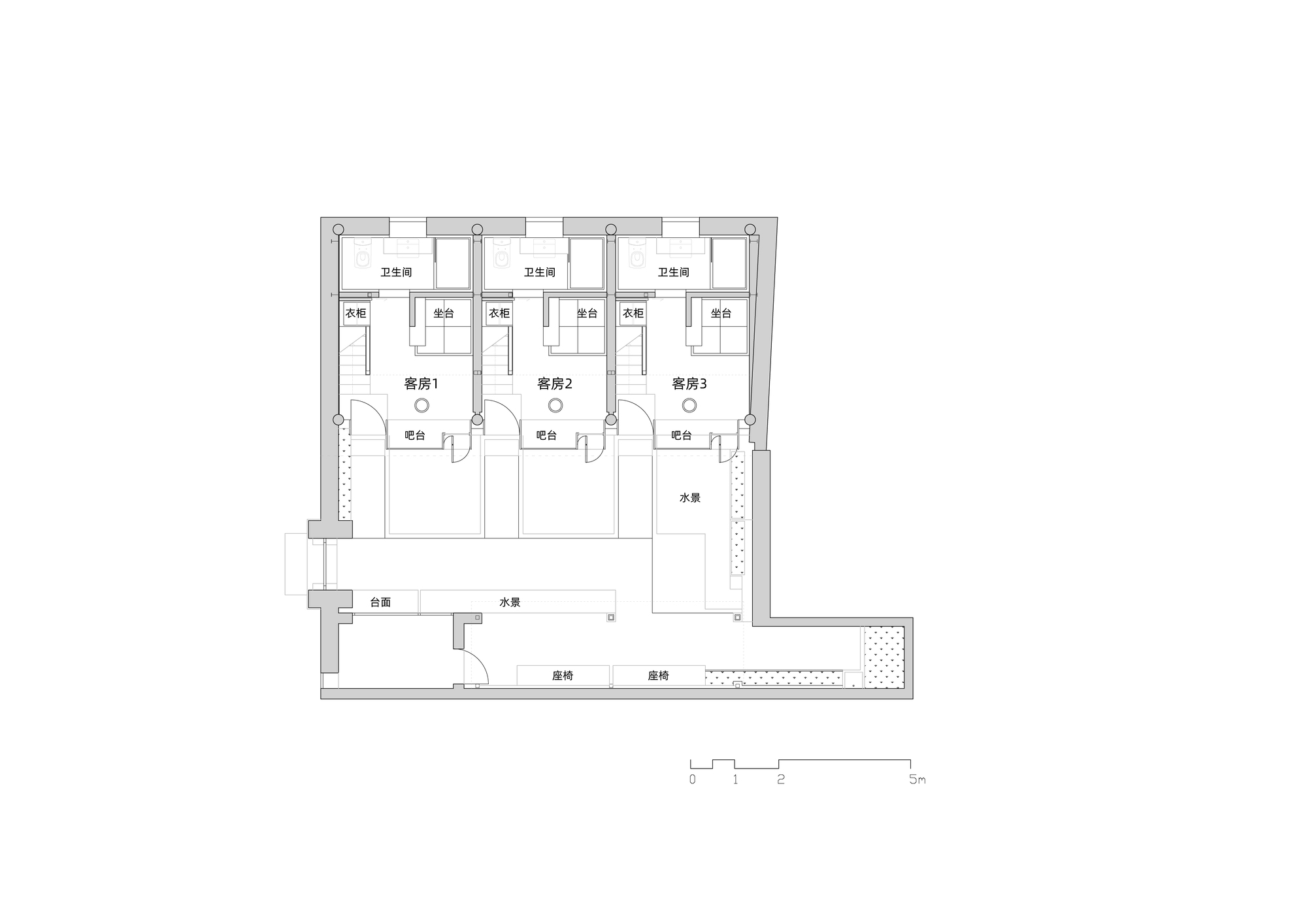
由胡同肌理推测,刘海胡同是南北向三进大院北侧最后一进分割出来的小院,北房南院的格局。在厘清产权和保留范围后,设计重点落在院落景观的空间界定与北房室内外的空间互动,同时将南面存留的线性空间,发展为合院民宿社区的厨房与半户外公共空间。
院落景观
在紧凑的院落内,透过铺地与景观界定空间层次,力求在小环境中创造丰富而整体的空间体验。材质细节由室内延展到院落,整合内外起居和社区空间。设计通过北房三开间的结构空间,界定上铺下居、前厅后室的剖面关系,转化传统柱间的装折体系,成为现代竹钢窗台的墙体深度与多元互动的门扇开关,反映家居身体尺度与院落内外的视线感知。
内外联系
加厚的竹钢立面既作为室内外的区隔,也通过身体感知和视线贯通将室内外联系在一起。在建筑层面,它处于传统民居结构框架中的填充或者门窗的位置,但是通过竹钢窗框仅3cm的厚度表达、木色为主结合白色和深灰烤漆金属的材质感,获得了一种现代的语言。台面以下的搁板满足民宿的日常物品摆放,一侧的玻璃窗将住客的视线引向室外地面的青瓦、水池。最上的玻璃转角无框,为窗前空间纳入一小片天空。从外侧看,竹钢材料的厚度和凹凸为院落带来亲切的尺度感。
上下区分
在保留原有建筑结构的北房室内,新增夹层设置在满足下方卫生间足够的使用高度上,夹层设床垫,用作卧室。竹钢与玻璃组合的矮架代替扶手,保持夹层至院落的视觉联系。夹层通过木楼梯与入口相连。一层为小休息厅,设计将家具整合到房间周边,如衣柜嵌入楼梯下方,鞋架在休息平台下方,桌面、小型储物与立面框架整合。暖灰色的质感水泥漆统合了夹层高度以下的墙面,产生细腻的包裹感。
建筑师: 王维仁建筑设计研究室
面积: 118.2501349m²
项目年份: 2021
摄影师:高文仲, WWJ ARCH
厂家: 洪雅竹元科技有限公司
主创设计师: 王维仁
设计团队: 王维仁、钱健石、王浩然
立面深化: 洪雅竹元科技有限公司
施工单位: 北京韩建集团有限公司
完工年份: 2020/01
委托方: 北京天恒正宇投资发展有限公司
照明设计: 同原照明设计有限公司
项目城市: Xicheng District
项目国家: 中国
设计师:王维仁建筑设计研究室
客服
消息
收藏
下载
最近

































