查看完整案例

收藏

下载
该项目位于福州仓山区仓前路 129-131 号,是一栋沿街的三进式宅院。原建筑由清光绪末年福州的橄榄大王、第一个开发出多种橄榄制品的福州人、有着“橄榄五”之称的郑则铭兴建。因此它也得名“橄榄五大厝”。▽临街立面© 邹训楷
结合郑家后人回忆及建筑形态考证,建筑始建于清光绪年间,完工应晚于 1900 年。经历了上世纪 50 年代的“公私合营”、“社会主义私房改造”,以及 1970 年代特殊历史时期仓前新村的建造,它的功能和归属权不断发生切分、流转。百十年的时间里,它可以说见证了一个家族、街区,甚至一个时代的兴衰起落,自身也在缺乏修葺的时光里日渐凋敝。近年得益于烟台山区域的整体改造,才又显露出容貌。
▽临街入口©邹训楷
▽临街第一进室内空间©邹训楷
▽空间一角©邹训楷
▽柜台©邹训楷
▽室内通高空间©邹训楷
▽开放的室内空间©邹训楷
▽座椅细节©邹训楷
▽室内一角©邹训楷
如今它的新委托方,是一个同样起源于福州的食品品牌——“驯”。虽然上百年来不论是这座城市的食品行业、加工技术,还是福州人的饮食习惯、生活方式都发生了巨大变化,但“橄榄五大厝”和这个专注于野生酵母(Sourdough)发酵、尊重天然本味的烘焙品牌之间,仍然存在着一种冥冥的连结。▽第一进二层©邹训楷
▽建筑和时间共同的肌理©邹训楷
我们的设计因此承担了在过往和当下中间建立起这种连结的使命。充分了解它、修缮并复原出它最好的状态、在此基础上融入功能需求、当下的材料、工艺和设计语言,比重新去搭建一个符合现代审美的消费场景,更应该成为我们的工作共识。在这点上,品牌方也给予了充分支持。▽通桥第二进的栈桥©邹训楷
▽台阶细部©邹训楷
而当它的表皮被一点点剥开,露出建筑和时间共同的肌理,它也给了我们正向的反馈。我们将更多精力花在了找到以前的工艺修补,以及用现代技术去保护它原有的沉静和温度感,或者用一些新材料去辅助它将自己的气质散发出来,而不是过分矫正咯吱作响的木楼梯,或者没有任何一条直线的墙面。这些松动同样可以视为它的一部分,既是闲适的,也是不那么理所当然的。金属细线结构被引入到这些松动当中,也克制了松动。
▽连接第一进与第二进的阶梯©邹训楷
后来品牌方告诉我们“驯”的含义,是敬畏、尊重,是一个相互的过程,而非驯化,它与设计动机相谋合。▽内部庭院概览©邹训楷
▽第二进入口©邹训楷
▽从第二进室内望向入口©邹训楷
▽第二进室内概览©邹训楷
另一个我们的共识是:比起一个闭塞的消费空间,我们更希望它是足够开放的,因此你会看到这个三进式宅院的第一进被充分展示给了街道,入口释放了它递进式的结构,大的橱窗将街上的人轻松引入。只有少量的商品在第一进被展示,人们走进这座百年大宅里闲逛、休息、观看。▽第二进二层概览©邹训楷
▽就餐区©邹训楷
传统的建筑结构,比起商铺它更像一个具有公共功能的空间,但这种“奢侈”的空间使用也将激发进一步探索的好奇心。
一二楼之间、一二进之间,被天井、拉窗、连通廊打通。原本狭小封闭的“柴栏厝”(柴楼)被打开,宽的窗台成为座位区,柴楼和大埕之间过大的高差则被阶梯座椅消化,整个户外是贯通的,人可以随意就坐下。
而原用于晾晒橄榄的大埕,如今是自然粗粝的景观。我们垒砌石块、撒下石砾和草种,下次再去时,繁茂的植物已经从石砾中冒出来,将一条小路藏在其中了,我们希望它不同于别致的园林和精致刻画的造景。
▽室外楼梯©邹训楷
▽传统的建筑结构©邹训楷
▽大埕阶梯座椅©邹训楷
▽大埕概览©邹训楷
▽景观©邹训楷
家具的使用上,户外家具和立面整理一样,呈现了一定的秩序感,室内家具则杂糅了现代设计师家具、传统的庭院石台、工匠手打的铁桌、上世纪七八十年代的中古家具或更有年代感的欧洲椅子。温润的砖、木、草木灰墙和这栋建筑的历史都足以包容不同时期、风格的混合。
▽秩序感的家具©邹训楷
我们很高兴看到这个曾经风光过的“橄榄五大厝”最终没有被驯化成一个崭新的、有界限感的消费空间,它延续了自己的温度,只是在被擦拭打磨后露出原有的光泽,和当下的生活重新连结在一起。▽庭院室外座椅©邹训楷
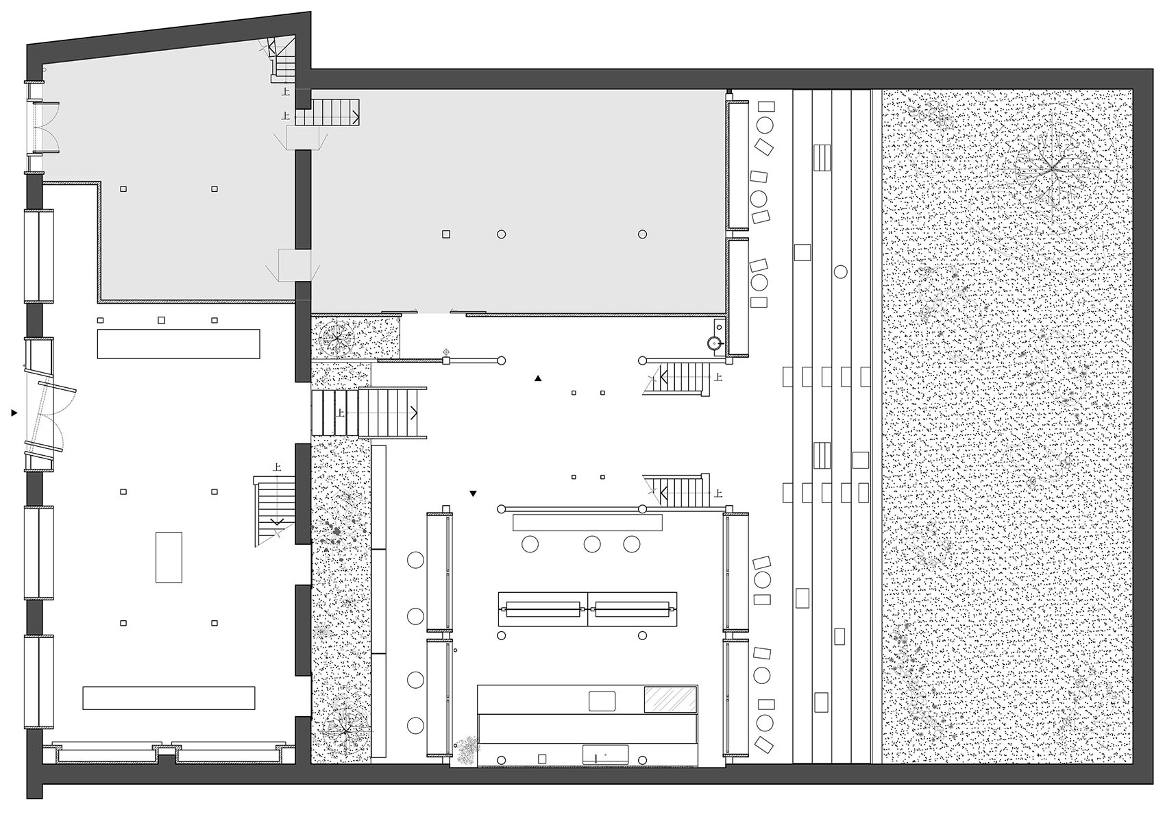
▽一层平面图© 退化建筑
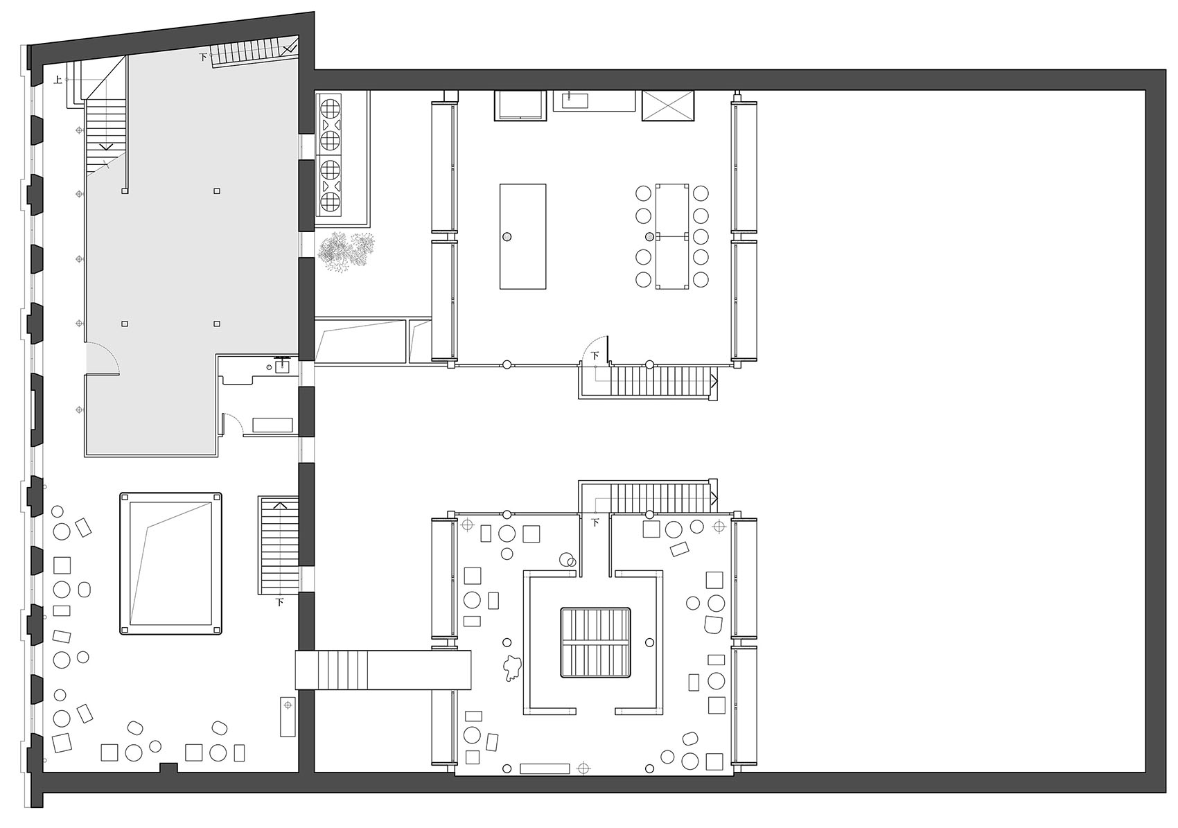
▽二层平面图©退化建筑
▽立面图©退化建筑
▽剖面图©退化建筑
撰文:王琦
项目名称:驯·烘焙(烟台山)
业主:驯·烘焙
项目地址:福建福州
主创设计:汤建松、王琦
设计团队:黄龙涛、林程辉、王二璇、张钰涵、Kaki
项目面积:1800.2501349㎡
项目时间:2023 年 10 月
主材:乱纹不锈钢、泉州白石、老杉木、石灰涂料
项目摄影:邹训楷
施工方:EMCC 结庐
景观工程:老白
灯光设计:ELA 寻光
客服
消息
收藏
下载
最近





































































