查看完整案例

收藏

下载
The client wanted to open a restaurant that would be used as a late-night diner in one of the rooms of a building in Ikejiri-Ohashi. Accordingly, we chose wood-grain sheets as the main material, as they are often used for tables and countertops in general dining establishments.
In recent years, wood-grain sheets have tended to be avoided as a superficial material, but this time, we focused on their popular cultural background of Showa-ish old-fashioned style and decided to carry on this tradition. The main materials are wood-grain sheets as the surface material and plywood as the structural material, and they are ironically and symbolically coexisting with each other.
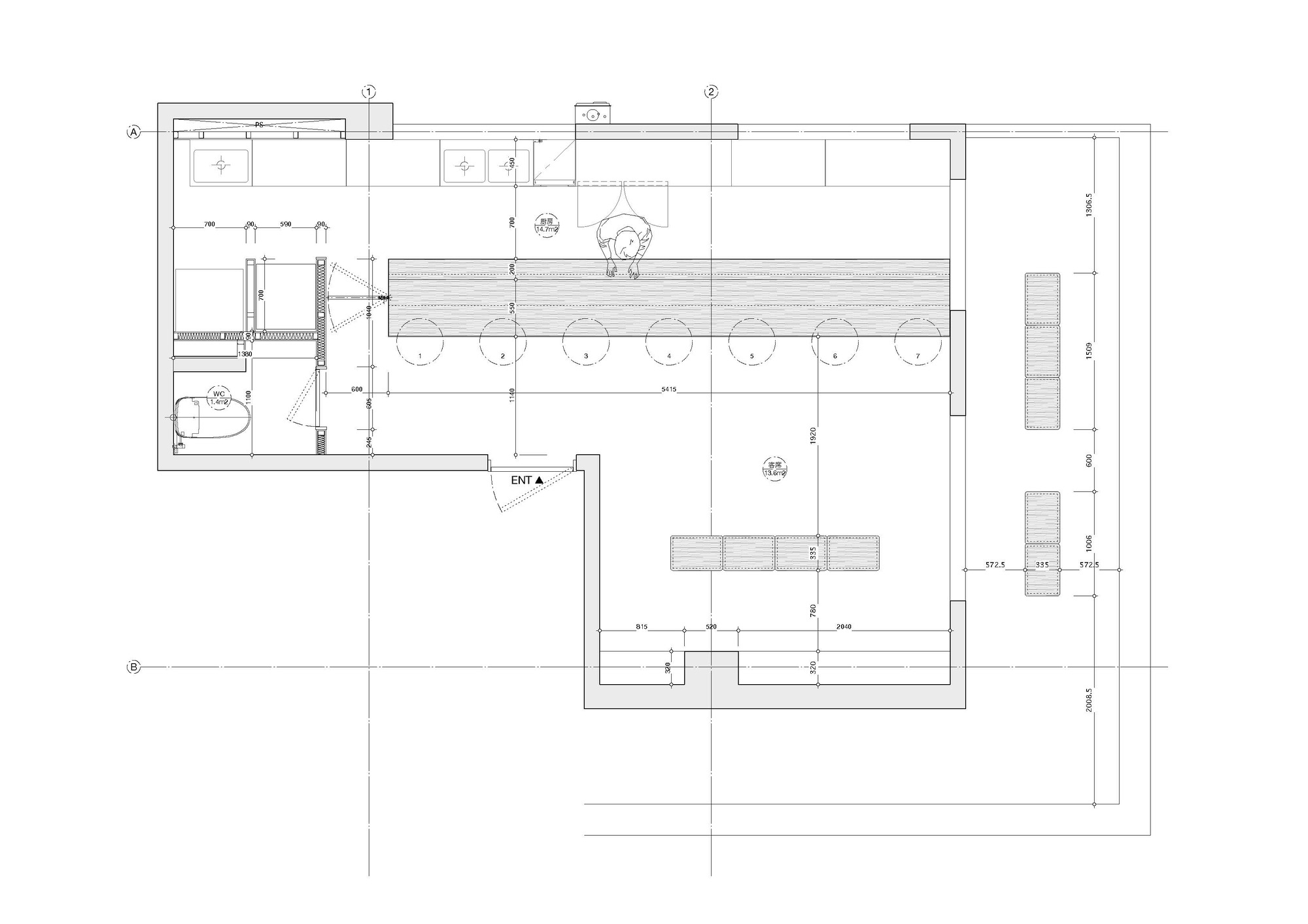
In line with the owner's wish to place importance on communication with each customer, a large counter was created, not only with an awareness of the relationship that induces communication but also to separate the functions of the customer seating and the kitchen.
On the other hand, in a space other than the counters, beer cases that can be reconfigured in small modules were used as fixtures so that the place can be flexibly utilized according to various situations. We hope that this cafeteria will be loved by many people.
项目设计:Souta Yoriki Design Office
项目年份:2023
项目摄影:Tomoyuki Kusunose
供应商: ENDO Lighting Corporation, Lintec
首席建筑师:Souta Yoriki
Lighting Design:Souta Yoriki Design Office
项目建造:Sunrich
项目国家: Japan
设计师:Souta Yoriki Design Office
语言:英语
客服
消息
收藏
下载
最近













