查看完整案例

收藏

下载
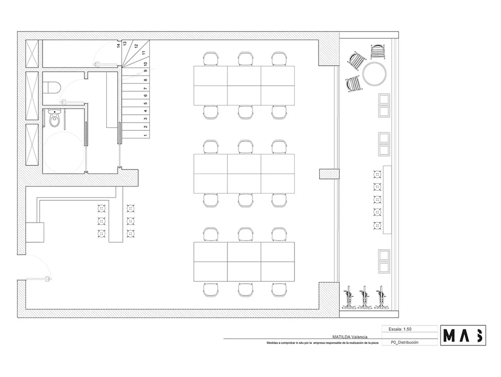
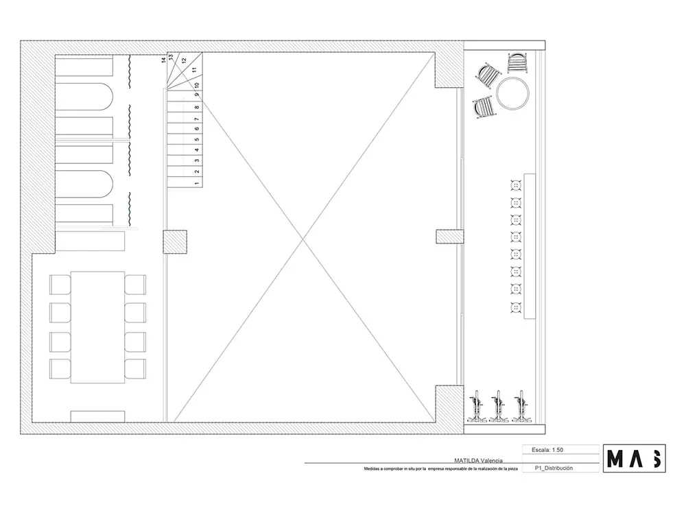
项目名称:瓦伦西亚联合办公空间
位置:西班牙
设计公司:Masquespacio
摄影师:Luis Beltran
在西班牙港口城市瓦伦西亚,有一个色彩柔和且异想天开的Cabinette联合办公空间。其设计灵感来自法国导演雅克·塔蒂(Jacques Tati)1967年的喜剧电影《嬉戏时间Playtime》。如此别具新意的戏剧化空间由Masquespacio设计团队打造。Masquespacio设计团队以其兼收并蓄、时尚且极简的设计而广受大家欢迎。他们的设计通常以华丽、矛盾和非传统的主题为背景。Cabinette 亦是如此,以“性感、奢华和趣味”为灵感,用粉蓝和粉紫去营造六七十年代经典的巴黎形象,精彩而独特的设计语言带来全新的感官体验。Cabinette联合办公有着自己清晰的理念和世界观:绝不允许陈词滥调。这里就是为那些想要逃离传统空间的人而创、为那些想要沉浸在充满魅力和美好明亮氛围中的人而创、为那些寻求灵感环境的人以及设计者而创。喜欢Cabinette,你可以自由选择或月租、或周租、甚至按天来计算。Cabinette意味着生活在过去和未来之间;Cabinette是灵感和智慧的传递者;Cabinette意味着天马行空、创意无止境!
瓦伦西亚联合办公空间室内实景图
瓦伦西亚联合办公空间室内实景图
瓦伦西亚联合办公空间室内实景图
瓦伦西亚联合办公空间室内实景图
瓦伦西亚联合办公空间室内实景图
瓦伦西亚联合办公空间室内实景图
瓦伦西亚联合办公空间室内实景图
瓦伦西亚联合办公空间室内实景图
瓦伦西亚联合办公空间室内实景图
瓦伦西亚联合办公空间室内实景图
瓦伦西亚联合办公空间室内实景图
瓦伦西亚联合办公空间室内实景图
瓦伦西亚联合办公空间室内实景图
客服
消息
收藏
下载
最近
















