查看完整案例

收藏

下载
▽项目视频© 尚恩设计
把历史建筑作为“重写本”
有个英语单词叫做 Palimpsest,意思是重写本。古代文明如古埃及、古希腊和古罗马,都使用纸莎草、羊皮纸或犊皮纸卷这样具有相当质量和价值的“纸张”来书写。由于这类材料造价高昂,为了能重复利用珍贵的羊皮纸,人们把之前的墨迹刮去,然后重新书写。但墨迹早已浸透纸张,并不能完全刮除。因而有时纸张表面残留着一层甚或多层的信息,这类纸卷也因此被叫作“重写本”。如此这般使用多次后,无数文字层层叠叠,让后来者着了魔般地想知道历任书写者们的故事。
▽改造后沿街立面© 尚恩设计
历史建筑的改造正如书写一张“重写本”。当建筑建成数百年后,原先的主人们早已烟消云散,但不论经历怎样的沧桑剧变,建筑会作为见证者留存下来,会不经意地保留下它曾经主人生活过的痕迹。轻轻地为后人讲述,当年的人是怎样敲一扇门,怎样推一扇窗,怎样等一个人。
▽中庭设置玻璃天窗© 尚恩设计
Chapter 1
重现——寻找历史建筑的“初写本”
何物经久不衰,何物不复存在
重现是历史影像的复刻,历史建筑的改造不仅是物理空间的修复,更是对于历史建筑的激活与重现。福州市上下杭,自明清以来,便是福州的商业中心和客运码头。历史的记忆中,在并行的两条古街上,行栈林立,商贾云集,厚重的商业文化使其成为“闽商”重要的发祥地之一。项目位于台江区三捷河与闽江之间,北邻上下杭历史文化街区,南临闽江,与闽江南岸的烟台山隔江对望,东临八一七历史文化中轴线和中亭街商圈,东南与解放大桥相连,西与苍霞新城相接,具有“苍山烟霞、高丘低江”的景色。
▽项目周边环境© 尚恩设计
2017 年之前,建筑由多家租户聚居,建筑本体保存较为完好,屋面存在破损、坍塌、漏雨、沉降不均等情况,外墙部分砖体风化,门窗损坏较严重,存在年久失修的问题。▽改造前© 尚恩设计
2017 年,建筑进行了整体修缮,损坏的屋面得以修复,加建砖房进行了拆除,剥落的灰板壁也做了修复。
当正式开始改造设计时发现,区别于建筑本身的修缮,历史建筑的改造不仅是物理空间的修复,更是对于空间活力的激活与重建,用设计去赋予历史建筑新的意义与生命。而在进行设计之前,我们第一步需要做的是透过这一重重的历史变化去找到这栋建筑最原始的“初写本”。▽改造前建筑俯视图与轴测分析图© 尚恩设计
对于福州古厝来说,组成建筑核心的构件是木构架、山墙以及屋面。闽地盛产杉木,不仅在本地的民居营建中大量使用,还大量出口至台湾甚至南洋等地。因此闽东、闽中、闽北等地的民居多采用全木结构,尤其是闽东、闽中地区,工匠充分发挥了木结构的灵活性,建筑单体体量往往很大。▽改造前剖轴侧分析© 尚恩设计
中平路 53-59 号保留了完整的穿斗式木构架,这也是支撑建筑的主体结构。建筑的山墙采用砖石材料,一方面可作为风火山墙与邻居分隔开来,另一方面也可抵御饱含盐分的潮湿海风。古厝内部采用双层屋面的设计手法,来调节屋顶尺度对室内氛围的影响。此外,作为围护结构的灰板壁、门窗则经历了数轮拆建。因此,在改造之初,我们拆除了大部分的灰板壁隔墙与年代门窗,对木构架、山墙以及屋面进行了整体的保留,重现了建筑的“初写本”。
▽改造后剖轴侧分析© 尚恩设计
Chapter 2
重写——描绘历史建筑的“重写本”
何物将被改写,何物将被利用
重写是新旧场景的融合,我们对于历史建筑的改造着力于建筑边界的变化:一是利用原始空间的物理性能重建古厝的气候边界,另一方面是置入新的功能去塑造回应当下的生活边界。在改造的过程中挖掘旧物的价值,描绘一段新的建筑故事。
▽分析图© 尚恩设计
▽周测图© 尚恩设计
内外之间:创造口袋空间反哺城市
在空间设计上,首先是咖啡厅入口部分的处理,我们重点关注房子内外之间的联系:将街道延伸到室内,玻璃橱窗退进来,形成一个能够遮蔽风雨的灰空间。这是建筑对于街道的关怀,用内外之间的这一个口袋空间去反哺城市。
▽咖啡厅剖面© 尚恩设计
▽建筑内退形成的灰空间© 尚恩设计
上下之间:垂直中庭连接建筑与环境
往二楼拾级而上,我们设计了一处高耸的中庭区域,整个房子的木构架在这里全部裸露出来,顶部是朝南的大面天窗。这里是咖啡厅上下楼交通的枢纽,也是空间情绪变化的高潮。白天太阳升起的时候,阳光从顶部天窗洒落,整个中庭会亮起来;这种通高的空间在炎热的天气也会形成烟囱效应,热空气从底部向高处流通,冷空气从一楼室外流入,形成了自然通风的条件。同时,我们在中庭放入了建筑模型为主题的展览空间活化咖餐厅的体验。
▽咖啡厅剖面© 尚恩设计
▽改造后咖啡厅一楼© 尚恩设计
▽咖啡厅中庭区域© 尚恩设计
▽办公室与咖啡厅© 尚恩设计
新旧之间:钢材与木材的对比与协作
在进行整体改造之初,我们对原有木结构进行了局部的加固:采用钢结构去做一个结构上的支撑,两片 C 型钢左右包裹着木柱,仍然把原始的木结构裸露出来,它们共同形成了一个新的结构体系去更好的支撑整个重新设计的三层建筑。这种钢材与木材的对比与协作呈现出了新旧之间的共生之道。
▽改造前后对比© 尚恩设计
▽咖啡厅木结构加固© 尚恩设计
前后之间:阳光院落串联工作与生活
办公空间的改造设计核心是在建筑的内部创造新的风景,通过前后三进院落与两处边庭的风景营造,串联建筑与室外的关系,营造一个内聚、稳定的工作氛围。
▽办公室剖面© 尚恩设计
▽第二进庭院空间改造前后© 尚恩设计
▽第二进庭院空间© 尚恩设计
▽第一进庭院空间© 尚恩设计
冷暖之间:重塑古厝的气候边界
传统古厝里,中庭是院落的生活和视觉的中心,天晴时节,阳光在此汇聚,下雨时节,雨水自屋檐滴落,四水归堂,宁静致远。我们重新设计了古厝的物理边界,呈现出一种对人工与自然两相宜的办公方式。天窗的设置与外墙的拓展塑造了良好的室内条件,开门又能方便地亲近自然。
▽第三进庭院空间改造前后© 尚恩设计
▽中庭设置玻璃天窗© 尚恩设计
▽仰视第一进庭院空间© 尚恩设计
Chapter 3
重生——历史建筑以当下的生活方式重新复活
何物获得新生,何物依稀可见
重生是空间活力的焕新,改造后的古厝形成了一个复合型空间。仅仅一墙之隔的咖啡厅和办公室成为了忙碌城市生活的一部分。
▽改造后沿街立面© 尚恩设计
古厝活力的重现
沉寂多年的古厝慢慢沉浸在当下的城市生活中,我们欣喜地发现这些历经沧桑的青砖木柱在新的生活方式之下重新焕发了活力。而在新媒体已经成为日常的当下,这家以建筑模型为主题的咖啡厅迅速成为了网红饕客的打卡地。
▽改造后咖啡厅一楼© 尚恩设计
▽咖啡厅座位区© 尚恩设计
▽改造后咖啡厅二楼© 尚恩设计
设计师们陆陆续续从南侧入口进入办公室,开始一天的工作。建筑间的庭院留出了大片的自然生长空间,在工作的间隙,为人与自然间的积极互动创造了可能性,也成为了人们休息交流的中心。“即使屏幕里的工作千篇一律,但是抬起头便有自由的阳光、空气和风景。”▽古厝南入口© 尚恩设计
▽办公室入口© 尚恩设计
▽办公区© 尚恩设计
▽办公区与庭院© 尚恩设计
▽材料室与办公区© 尚恩设计
在午后,阳光缓缓西落,设计师们结束了一天的工作,庭院逐渐安静;灯光亮起,迎接城市另一面喧嚣的夜晚生活。办公室里的人们推开咖啡厅的后门,嘈杂的声音立刻铺面而来;这是咖啡厅一天之中最热闹的时候,城市里的人们在这里汇聚,沉寂多年的古厝慢慢沉浸在当下的城市生活中。
▽办公区与庭院© 尚恩设计
赋予历史印记新的意义与生命。
如同史蒂夫·米德尔赫斯特描述的建筑重写本:“建筑师将重写本当作幽灵,也就是过去影像的重现。每当空间重新布局、重建或改建,都会留下过去的影子:即便支撑它的结构早已拆除,涂了焦油的屋顶轮廓线依然在建筑曾经的位置存在;移走的楼梯在原先墙面漆无法覆盖的位置留下记号。家电搬移后会在原来的位置留下灰尘边缘线。古代废墟诉说着它们曾经的完整。重写本以考古学的方式提醒我们过去建造的真实情形。”
▽办公室入口天花板© 尚恩设计
▽办公区木构斗拱© 尚恩设计
随着建筑改造的完成,古厝也迎来了整个环境新生的起点。在整个建筑的三进院落空间里,新与旧的比例在悄然地发生着变化,建筑与城市生活的互动也逐渐多样。改造后的古厝保留着原始的建构逻辑,木构架经过时间的洗礼,犹如一幅述说着故事的古画。▽办公区采光天窗与木构栏杆© 尚恩设计
我们在古厝里刻意保留的历史印记显露出了时间和空间的魅力,这些不经意露出的“历史的一角”暗示着建筑蕴含的斑驳质感,并且将在未来不断叠加新的使用可能性。▽一层平面图© 尚恩设计
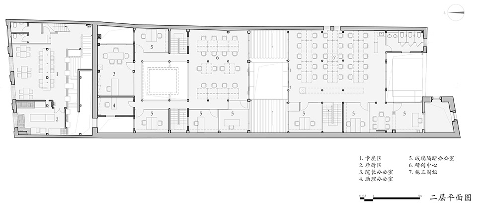
▽二层平面图© 尚恩设计
▽三层平面图© 尚恩设计
项目名称:福州中平路 53-59 号改造:传统建筑的重写本
项目类型:古厝改造
设 计 方:尚恩设计
项目设计:2022 年 07 月
完成年份:2022 年 12 月
设计团队:吴杰元、周衍、赵非齐、缪竞鸿、王克跃、黄旻、王翀、权美妍、陈立华、蔡颖、高乐舟
项目地址:福建省福州市台江区中平路 53-59 号
建筑面积:1170.2501349㎡
摄影版权:郑斌、王道怀、喦建筑摄影、晨小药
客户:尚恩设计
客服
消息
收藏
下载
最近

























































