查看完整案例

收藏

下载
Waku Waku是一家位于墨尔本中央商务区的全新的当代日本餐厅,引人入胜的室内结合其品牌符号,捕捉到低调的优雅和简朴的侘寂美学。我们采用古老的日本哲学,以具有丰富纹理的色调,在瑕疵和短瞬中发现美的存在,颂扬物质的自然美学。
▽室内概览© Timothy Kaye
人字形木地板、棕褐色瓷砖和软粘土粗抹灰的墙壁共同创造了一个温暖亲密的空间。洞石钛质柜台和桌面、栗色点缀的木质座椅以及沙色的褶皱皮革家具为用餐体验增添了丰富的触感。这种色调揭示并突出了天然材料的不规则和纹理,帮助顾客在享受用餐时感受到宁静,增进对美的欣赏。
▽整体内饰采用人字形木地板和棕褐色瓷砖© Timothy Kaye
▽吧台区域© Timothy Kaye
▽软粘土粗抹灰的墙壁© Timothy Kaye
▽栗色点缀的木质座椅以及沙色的褶皱皮革家具© Timothy Kaye
头顶的发光灯罩,让人联想到传统的“障子”屏风,散发柔和的环境光,带来温暖和热情的印象。在室外,醒目的标牌捕捉到CBD巷道的喧嚣,借鉴了日本充满活力的街道氛围。
▽就餐区© Timothy Kaye
▽就餐区细部© Timothy Kaye
▽头顶的发光灯罩© Timothy Kaye
Waku Waku翻译过来是“令人激动的”或“令人兴奋的”。从日本的卡哇伊文化和餐厅的名字中汲取灵感,我们更新并提升了现有的品牌标识,将其充分融入到用餐体验中。简化的色调,大胆的图形和俏皮的标志吸引着大量年轻的食客,在社交媒体、营销活动、贩卖的货品和工作服上都十分有趣,令人耳目一新。
▽招牌© Timothy Kaye
Waku Waku餐厅平衡了侘寂风格的内装与现代、俏皮的品牌,提供了在墨尔本独有的难忘的、热情的用餐体验。
▽品牌标识设计© Timothy Kaye
▽大胆的图形和俏皮的标志设计© Timothy Kaye
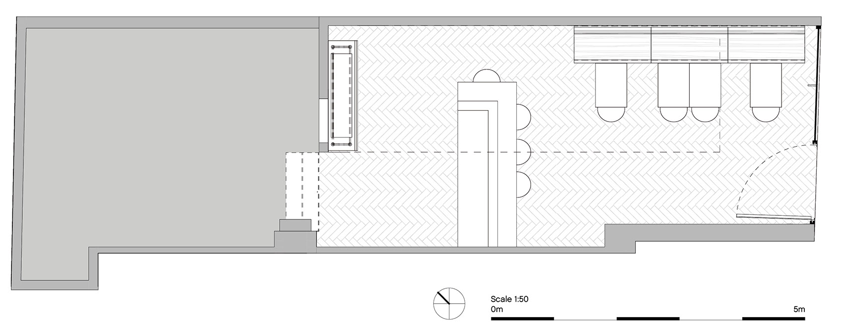
▽平面图© Timothy Kaye
▽带有剖面的立面图© Timothy Kaye
客服
消息
收藏
下载
最近

























