查看完整案例

收藏

下载
关于 Pyvnyi Prostir(啤酒空间)是精酿啤酒厂 MOVA Brewing co 的一个项目。这是一个多功能空间,设有餐厅、啤酒厂博物馆、儿童游乐区和舞台,布置在乌克兰第聂伯罗的一家啤酒厂。设施面积为 1,160 平方米。餐厅设计可容纳 190 位客人;夏季露台上还提供了另外 90 个座位。
地点:Pyvnyi Prostir 位于第聂伯罗的工业区之一,位于两个大型住宅区 - Topolia 和 Sokil 的交汇处。此前,MOVA 的旧址上有不少建于 1970 年代和 80 年代的工厦。其中一栋以前的厂房有一个有趣的结构特征——支撑上层的横杆系统。在由 ArchObraz 局负责的重建过程中,这些建筑被组合成一个单一的空间组合。横杆系统得以保留,新的金属框架覆盖着夹层板。
重建后的空间,现在是 MOVA Brewing co. 的所在地。啤酒厂和办公室与新的两层餐厅大楼相连。参观者可以通过玻璃隔断观察酿造过程,这个过程过去是在闭门造车的情况下进行的,现在与美食体验密切相关。毗邻大楼的是一个大型开放区域,举办集市和节日活动。在活动期间,可以在 MOVA 附近设置舞台、贸易摊位和额外的桌子。
任务
客户清楚地了解 MOVA 应该执行什么功能。我们的任务是将此功能结合到一个风格连贯的空间中。
由于啤酒厂面向大量客人,尤其是家庭,因此我们必须为空间配备多功能座椅,并为孩子们开发一个娱乐区。还要求为行动不便的群体设计电梯和浴室。
在二楼,由于厨房和休息区之间的中转区较大,需要为熟食订单提供服务电梯。最后,决定围绕这部电梯设计一个成熟的第二个酒吧。另一个重要特征是现场表演的舞台。重要的是要考虑一个替代家具布置的计划,这样可以在需要时轻松地重新安排舞台前的座位。
Pyvnyi Prostir 的特色之一是啤酒免下车服务——您无需下车即可在该窗口取餐。还需要组织一个零售区,用于展示 MOVA Brewing co 的商品和其他产品。会被卖掉。
概念
我们的团队力求创造一种与客户理念产生共鸣的室内设计——一家重新诠释传统啤酒并仅使用天然原料的精酿啤酒厂。
设计概念的工作始于一张集思广益的地图,该地图将我们引向了两种完全不同的美学。空间的光线和通风启发了我们玩弄自然图案,而该地点的历史暗示了一种工业风格。
我们决定将这些想法结合起来,并运用人是自然与工业之间的中介这一概念。Pyvnyi Prostir 的内部试图在这两个世界之间架起一座桥梁:表明可以与自然和谐相处,同时享受文明带来的好处。我们决定用木头和石头勾勒出与自然的联系。天然材料、真正的植物和大型立面玻璃实际上模糊了外部和内部之间的界限。
为了增强建筑的工业氛围,内部使用了大量的混凝土和金属。从细节中可以看出该场地工业历史的典故:一楼的装置是由脚手架制成的,工厂标记留在巨大的金属楼梯上。Pyvnyi Prostir 的内部装饰有许多具有历史意义的东西,例如经过重新诠释的苏联灯具和家具,无需磨损即可显得复古。正因为如此,这个刚刚开门的空间似乎已经有人居住、舒适和真实了。设计
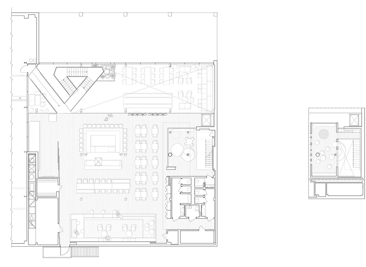
1 楼我们进入餐厅,到达玻璃门厅,屋顶上有一个花坛,里面种满了真植物。在右边,在玻璃后面,矗立着另一个绿色区域。随着时间的推移,植物会生长并覆盖整个区域。
在门厅后面,入口右侧,我们可以看到空间的主要亮点——一个巨大的金属楼梯,由重达 4 吨的天然石材支撑。
在楼梯后面,面对吧台,设计了几个休息区。为了柔化从生产区散发出来的冷光,车间和大厅之间的玻璃隔断部分覆盖了啤酒色亚克力。
酒吧位于入口对面,以造型独特的啤酒柱迎接客人。在它后面可以看到艺术家 Marharyta Kolor 的壁画。
酒吧的中央部分由不锈钢制成。休息区的外观为混凝土通道(U 形轮廓),桌面由天然木材制成。吧台后面是厨房,透过玻璃隔断可以看到厨房,玻璃隔断的前部装有不锈钢,与吧台保持一致。
酒吧区域通过水泥地板上的接缝标出,就好像有人用钢笔勾勒出轮廓一样。变形缝使这个想法成为可能,并保持了浇注混凝土地板的完整性。
座位主座位区位于入口左侧。供六位客人使用的实木桌子靠近窗户,而一张长长的公用桌子则立在吧台旁边。
为了平衡休息区,在大厅的尽头设置了一个休息区,配有矮桌和古董店和跳蚤市场中常见的软家具。在脚手架装置下,一张卡其色大沙发沿着墙壁延伸。
我们决定借助由三种不同色调的木板制成的木板来突出休息区。走近看,面板像地毯,从二楼看,图案就像玉米穗。
浴室
一楼设计了三间浴室:女士浴室、男士浴室和无障碍浴室。它们以不同的方式装饰,但具有相同的工业风格。厚重质朴的门旁边放着一块瓷砖面板。
男士浴室用开裂的单色瓷砖装饰。用于卤素灯的玻璃管与 LED 灯相结合,以实现温暖的琥珀色照明。灯的摆放位置营造出一种穿透所有舱室的错觉。灯的形状由细长的镜子模仿。
女洗手间的墙面选用了切割成不同厚度方块的天然石板。带有小碎片和不规则处的涂层使这个地方充满活力,触感舒适。水槽上方放置了一面带有柜台照明的大镜子。天花板上覆盖着带穿孔的波纹板。门的颜色与红色背光相得益彰。
无障碍浴室铺着类似生锈金属的瓷砖。一个可拉出的尿布台被隐藏在一个壁龛里,这样它就不会干扰坐轮椅四处走动的客人。控制台水槽周围也提供了通道。
二楼
当我们爬上二楼的楼梯时,我们可以通过滑动的网状隔断看到博物馆空间。在您的右边是通往封闭办公空间的通道。
休息区占据了地板的中央部分。在它的背后,大殿的深处,有着一个戏台。左侧设计了儿童游乐区、零售区、仓库和浴室。
几乎整个楼层——地板、酒吧的前部、讲台、儿童区的上层——都是用木头装饰的。正因为如此,该空间执行了多种不同的功能,并且和谐且视觉上连贯。
酒吧
接触酒吧的立面是用木头做的,而在视觉上支撑金属柱的残酷桌面是由热轧钢制成的。连接厨房和二楼的订单服务电梯内衬强化玻璃,保持谨慎。
座位
这一层的每张桌子上方都没有集中照明。座位是可移动的,这意味着在派对和音乐会期间可以轻松地重新布置家具。在没有活动的日子里,客人可以直接坐在舞台上。讲台分为几层:软座放在较低的一层,然后是几个豆袋,最后是舞台本身的桌椅。屏幕下方的栏杆上还提供了几个座位。为了避免让讲台看起来过于庞大,我们照亮了它的周边,让它看起来很失重。
儿童区分为两层:上层是木头饰面,突出于下层玻璃层之上。得益于玻璃窗、灯光和黄色边缘,该区域甚至可以从一楼看到,并吸引了 Pyvnyi Prostir 年轻客人的注意力。
为了尽量减少噪音,儿童游乐区使用双层玻璃和吸音材料制成的隔板分隔开来。为了安全起见,一楼和二楼的玻璃都贴上了强化膜。
在儿童区内,放置了一个软木平台,将空间划分为适合年幼和年长儿童的区域。
胶合板楼梯涂上了耐磨漆。为了让巨大的悬臂结构达到失重的外观,在柱子之间焊接了一个大通道,然后隐藏在装饰元素后面。坚固的网用作扶手,一直延伸到桥上。
儿童区的上层像一个树屋:这一层的高度只有 160 厘米。在第二层,有一个带玩具和电视的壁橱,大量的坐垫和地板上的一张网。使用黄色香肠垫将玻璃隔开,柱子表面覆盖有软泡沫。
一张幻灯片从第二层蜿蜒而出。在底部,提供了 PVC 插入物,以便儿童可以滑下并轻轻着陆。
为了保持这个区域的嬉戏气氛,儿童浴室被设计成玩具屋的样子。这个空间用熟料瓷砖装饰,并配有两个不同高度的盆。浴室由头顶 LED 背光灯和黄色(几乎是琥珀色)装饰灯照亮。
博物馆区,从中可以看到生产区的全景,由滑动隔板隔开。隔板可以用来贴海报。
我们的任务是组织一个方便的展览空间并强调其时间顺序。一些展品的背景是当地一家工厂生产的稀有 Katerynoslav 砖。形式也强调了从过去到现代的过渡:历史区的旧啤酒桶与用于新展品的现代控制台相邻。
MOVA 的品牌浮雕在其中一面墙上,从一楼就可以看到,吸引了客人的注意。徽标上的尖刺可以被视为导航:箭头指向展览空间。
零售区我们摒弃了粗糙的隔断和庞大的结构,让零售区变得开放和欢迎。所有人都可以拿到商品,货架上的高度可以调节。
浴室
二楼的浴室装饰与一楼的浴室相似。不同之处在于墙壁上的图形,每个浴室的图形都不同。
露台分为两个座位区。在入口的右边,沙发后面,有公共桌子和用重新加工的烧烤制成的定制抽屉。
在左侧,安排了一个休息区,在花盆的帮助下与过境区隔开。U 形沙发封闭了这个区域,您可以在上面放松身心。
露台可以全年使用相同的设计元素。由于其模块化,家具易于拆卸和重新组装。
定制元素金属楼梯
重达 10 吨的金属楼梯是 Pyvnyi Prostir 的主要拍照区之一。我们计划将结构漆成黑色,但随后在金属上看到了奇怪的工厂标记,并决定不隐藏它们。负责品牌设计的设计师 Sasha Blagov 建议在上面添加自己的铭文,例如,为步骤编号,但不是按照正确的顺序。
其中一个平台由一块巨大的天然石头支撑。一块重达 4 吨的石块来自 Kryvyi Rih 的一个采石场。由于技术上不可能将整块石头运到里面,所以我们把它锯成四个较小的部分,分别运进来。然后我们将它们放回原处并整齐地完成接缝。
灯具内部有许多经过改造的工业灯,暗示着第聂伯罗的工业历史。它们远非完美(生锈,到处都有油漆剥落),因此它们与啤酒厂的精神相得益彰。一楼公共桌子上方的灯是由几盏相同的工厂灯组成的。
六人桌上方的圆灯也是特制的。带有金属“裙子”的旧灯被用作底座,中间从一个灯上切下来,放在下一个灯的“裙子”下面。哑光罐被用作色调。
二楼吧台采用工业灯点亮,根据我们的设计进行了提炼。这些是用新的丙烯酸管加长并连接在一起的旧工厂管。
脚手架装置我们尝试在从两层楼都可以看到的大墙上放置一幅巨大的壁画或木板。然而,我们决定在其位置安装老化和涂漆的脚手架。该结构还用作展览空间:当地艺术家的作品可以借助电缆悬挂在这里。该装置由旧舞台聚光灯制成的大灯照亮。
浴室瓷砖 苏联时期,由于建筑材料短缺,公共场所经常用开裂的瓷砖装饰。Pyvnyi Prostir 的浴室就是向这种技术致敬。当我们用剩下的瓷砖买了托盘并开始铺设它们时,我们意识到图案太斑驳了。40 余种深浅不一的黑、灰、白并没有形成一幅连贯的画面。由于我们缺少某些颜色,我们决定购买一种具有所需阴影的瓷砖并将其分成小块。由于承包商的辛勤工作,获得了接缝最少的整洁面板。
来自 MOVA Brewing co. 的 Pyvnyi Prostir(啤酒空间),是第聂伯罗居民的新景点。在这里,与朋友喝啤酒、聚会或与孩子安静地共进晚餐同样舒适,因为知道会有一些事情可以让他们忙碌。我们设法创造了一个巨大的多功能空间,具有小酒吧的氛围,舒适而私密。这绝不是为了美丽的画面而打造的单调乏味的室内环境,而是一个充满活力的地方,一切都有自己的故事。设计团队
项目名称:MOVA BEER SPACE
设计团队:Slava Balbek, Anastasiia Vinidiktova, Kateryna Denysenko, Bohodar Lysenko, Anastasiia Marchenko
设计概念:Andrii Berezynskyi
产品设计:Alina Vovkotrub, Serhii Havrylov
3D 艺术:Yevhenii Zavitaiev
项目管理:Anton Lebediev
项目面积:1160 sq. m
完工年份:2023
项目地点:Dnipro, Ukraine
项目摄影:Andrey Bezuglov, Maryan Beresh
作者:balbek bureau
图片@balbek bureau
语言:英语
客服
消息
收藏
下载
最近










































































































