查看完整案例

收藏

下载
西湖婉转与花厨美学,打开女性时光的多重纬度
▽项目一瞥© 孙骏
逃离冷冽的城市,投入满是鲜花环绕治愈之地,这里不是一个简单的餐厅,这里是 Tomacado 花厨和梁筑一起走过的这七年。围绕一城一花、一花一餐的品牌美学体系,它拥有着绝佳的地理位置,坐落于杭州湖滨银泰 in77A 区,直面西子湖畔,以“荷”为设计线索,设计师将女性优雅揉进流动的时光,为餐厅空间赋予丰饶的生命之姿。▽餐厅外观© 孙骏
▽入口细部© 孙骏
设计思考 | Design Thinking
建筑与物体
设计师通过建筑的语言和思维方式与空间发生关系,物质既承载功能,也可以是环绕空间的动线载体在空间设计中探索和实践。在思考建筑与物质的构造关系中,空间将呈现其特有的节奏和层次,同时不同界面的关系可以被贯通、模糊、再关联,空间与物体相辅相成的存在既充满趣味,也赋予空间多重价值。
▽用餐区© 孙骏
▽吧台区© 孙骏
花厨西湖店内,荷花所营造的物质界面与餐厅建筑界面彼此照应,在一静一动、一实一虚的平衡中构成饱满生动的整体。▽卡座区© 孙骏
▽用餐区© 孙骏
结构&内外 | Structure & Enclosure
纳入四时光景
花开西子湖,通过重建内外空间关系,设计师将四季荷塘、湖畔叠影、流水廊桥一并纳入空间。通过楼层结构调整,设计打破原建筑局限性,将二层与三层沿湖就餐区打开视觉通道,完成了自上而下和自下而上的视觉贯通,解决了原本的层高压迫感,大大提升了就餐体验。由商场进入餐厅的入口则以金属镂空铜板包覆,与临街开阔明朗的落地窗形成对比呼应,轻盈与隆重并序。
▽走廊© 孙骏
从户外向内望,依稀可见实现挑空后的楼层曲面结构与内部餐位,优雅舒阔的通透感与入口的怀旧的时光意趣构成反差张力。室内拱形结构形成三层向二层的围合式挑空,与花艺装置产生对话,光影洒落在花朵上,硬朗的空间被注入柔软的情绪,细腻的材质与淡雅的色彩更好地贴切女性的温润柔美。▽挑高空间© 孙骏
荷花 | Lotus
重塑视觉记忆
荷花作为西湖最富代表性的视觉符号,设计师以《西湖荷塘》为灵感,在都市中感受闹中取静的清雅,也成为杭州花厨阐释在地理念与主题形态的载体。
▽荷花装置© 孙骏
设计师提取了荷花的概念来诠释花厨的品牌理念体系,作为楼梯空间的载体,充满着西湖雅韵。自三层屋面垂下的荷花主装置内部载有机电结构,使巨大的荷花主体可以盛放、闭合、摆动,丝绸质地柔韧轻盈,把花的美丽最大程度地展现出来。设计的路径来自于花的自然形态和美丽,从墙缘门洞探出在垂直空间贯通就餐区,同时也作为视觉线索引导就餐者。▽自屋面垂下的荷花装置© 孙骏
荷花有节律地绽放© 孙骏
▽室内细节© 孙骏
墙面浮雕是荷花作为视觉记忆的另一种体现。雕塑硬朗的恒定感与动态立体的荷花彼此辉映。桌花与橄榄在此基础上点缀,共同完成了内部以荷花为主题的完整生态场景。花的形态借由建筑空间实现了完整丰富的表达,自然之美与生命能量在此生发。
▽墙面浮雕© 孙骏
设计师将室内美学与外部自然相结合,自然光照入室内,与荷花形成绝妙搭配。花与影子相依相随,落在墙壁和盘中,为拍照摄影爱好者营造氛围感和双重视觉享受。▽沐浴在自然光下的用餐区© 孙骏
伴随着日落© 孙骏
▽光点© 孙骏
品牌基因 | Brandgenes
创造“她”时代
黄昏,阳光投入临街玻璃窗,也透过金属板孔洞跃动。光影落在轻薄的丝绸叶片上,荷花仿佛被注入生命,悠然开放,这些由自然馈赠的意外之喜为设计又添一份迷人和珍贵。灯光低垂,西湖水微波,花厨、城市与自然从未分离,一花一世界,一城一故事,花厨借餐厅空间孕育“她”时代,永不止息地创造女性哲学当代生活方式。
▽一花一世界© 孙骏
▽一层平面图© 梁筑设计事务所
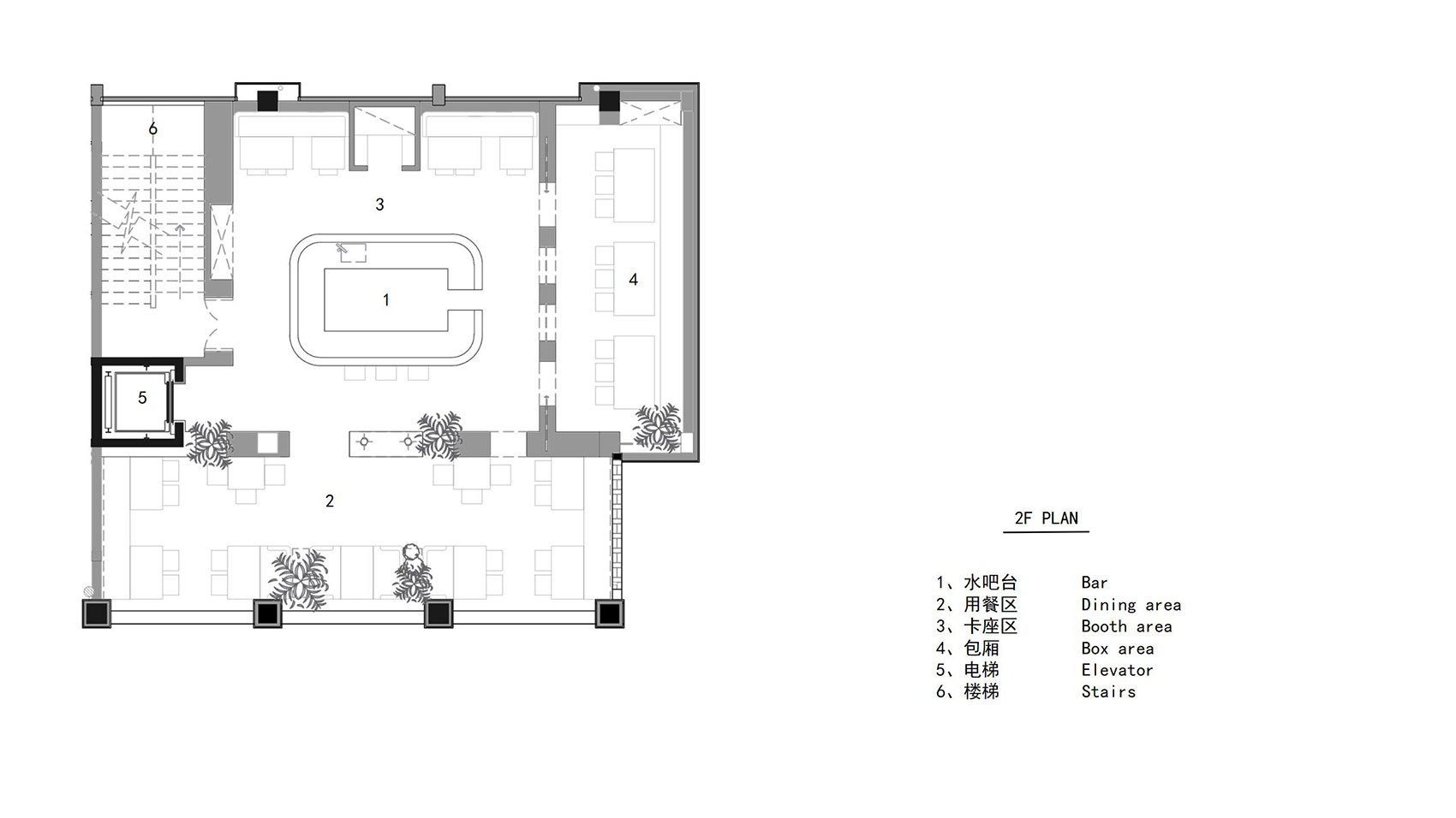
▽二层平面图© 梁筑设计事务所
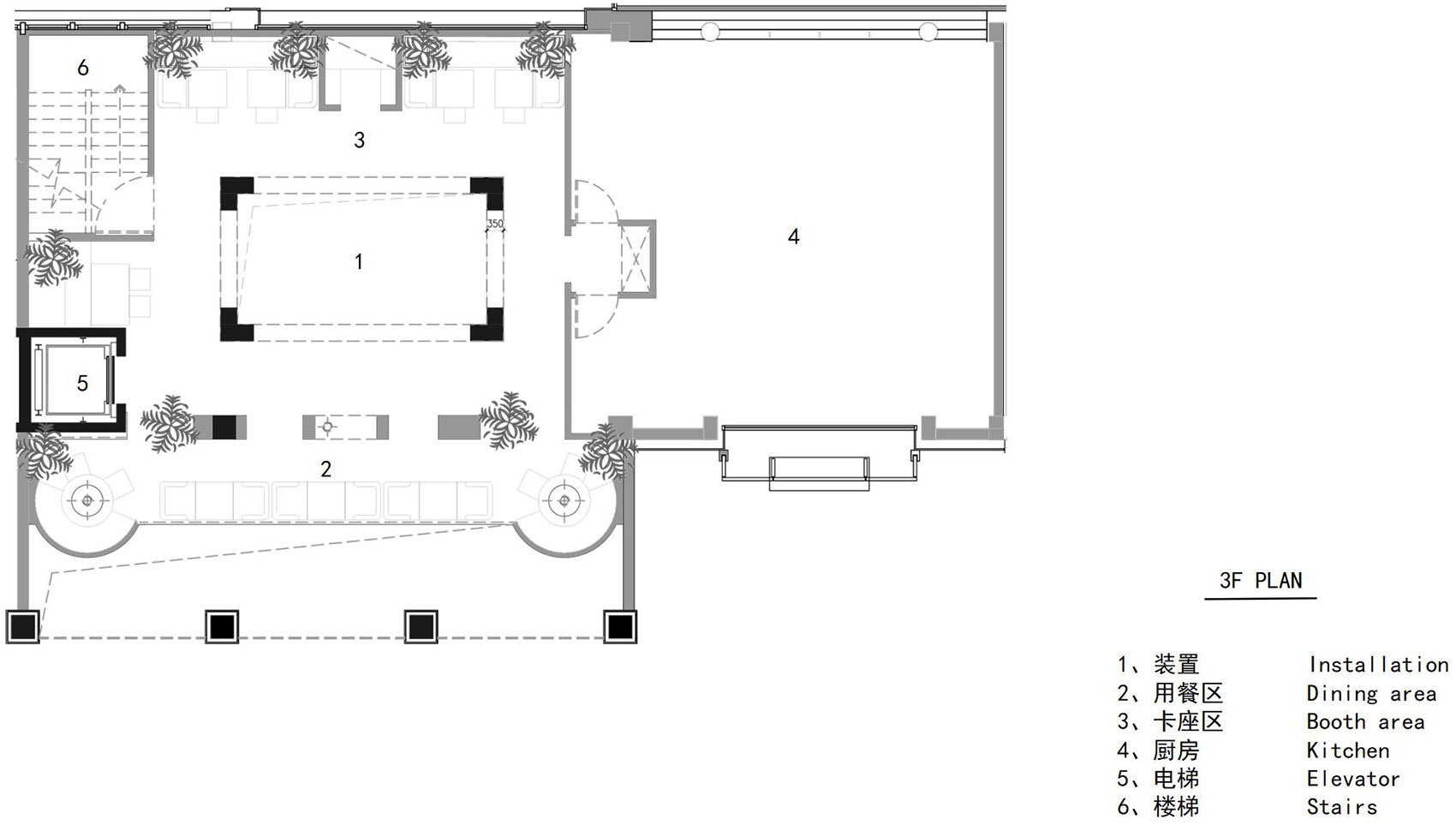
▽三层平面图© 梁筑设计事务所
项目名称:Tomacado 花厨
项目类型:商业空间
设计方:梁筑设计事务所
完成年份:2021 年 12 月
创意设计总监 :徐梁
设计团队成员:周泽思、王心妍、李晴、陆鑫 、徐梁
项目地址:杭州
建筑面积:390.2501349㎡
摄影版权:孙骏
灯光设计顾问:杨可
灯光设计:Yaank 向杨照明设计
施工单位:芝麻装饰工程有限公司
客服
消息
收藏
下载
最近









































