知末
知末
创作上传
VIP
收藏下载
登录 | 注册有礼

Mediterranean W in d 设计丨越南丨Wonnderwall VN

2024/06/04 17:44:23
查看完整案例
微信扫一扫
收藏
下载
翻译
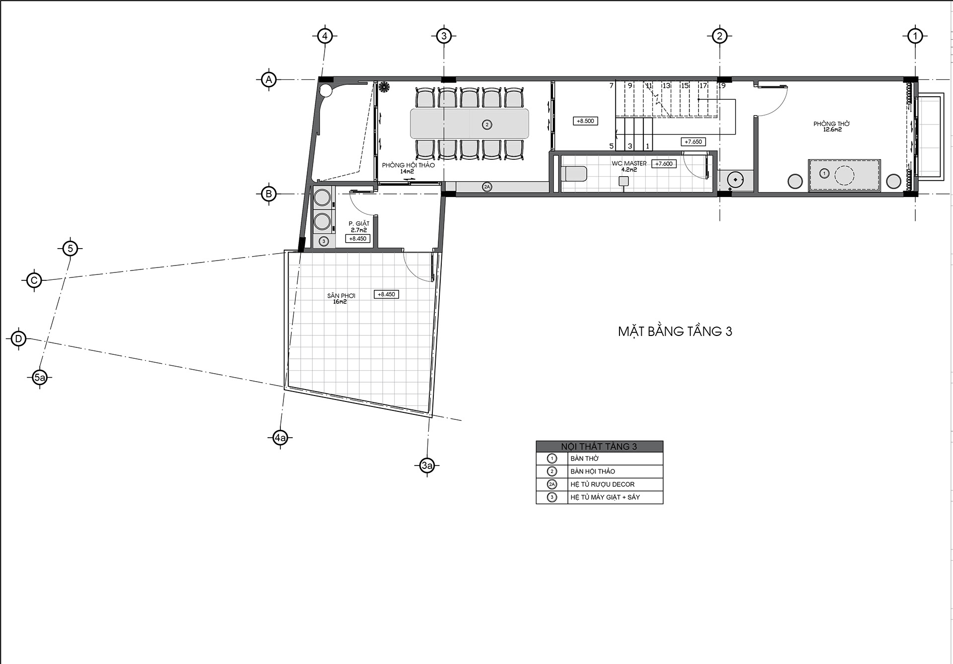
Mediterranean W in d 设计丨越南丨Wonnderwall VN-0
Mediterranean W in d 设计丨越南丨Wonnderwall VN-1
Mediterranean . W in d
Design | Visualization | Wonnderwall VNLocation |  Thai Binh city - Viet Nam
Type | Detached House
Year | 2023
Mediterranean W in d 设计丨越南丨Wonnderwall VN-6
Mediterranean W in d 设计丨越南丨Wonnderwall VN-7
Mediterranean W in d 设计丨越南丨Wonnderwall VN-8
Mediterranean W in d 设计丨越南丨Wonnderwall VN-9
Mediterranean W in d 设计丨越南丨Wonnderwall VN-10
Mediterranean W in d 设计丨越南丨Wonnderwall VN-11
Mediterranean W in d 设计丨越南丨Wonnderwall VN-12
南京喵熊网络科技有限公司 苏ICP备18050492号-4知末 © 2018—2020 . All photos and trademark graphics are copyrighted by their owners.增值电信业务经营许可证(ICP)苏B2-20201444苏公网安备 32011302321234号
客服
消息
收藏
下载
最近