查看完整案例

收藏

下载

翻译
Firm: Atelje Ostan Pavlin
Type: Residential › Private House
STATUS: Built
YEAR: 2020
SIZE: 0 sqft - 1000 sqft
Photos: Virginia Vrecl (10), Atelje Ostan Pavlin (4)
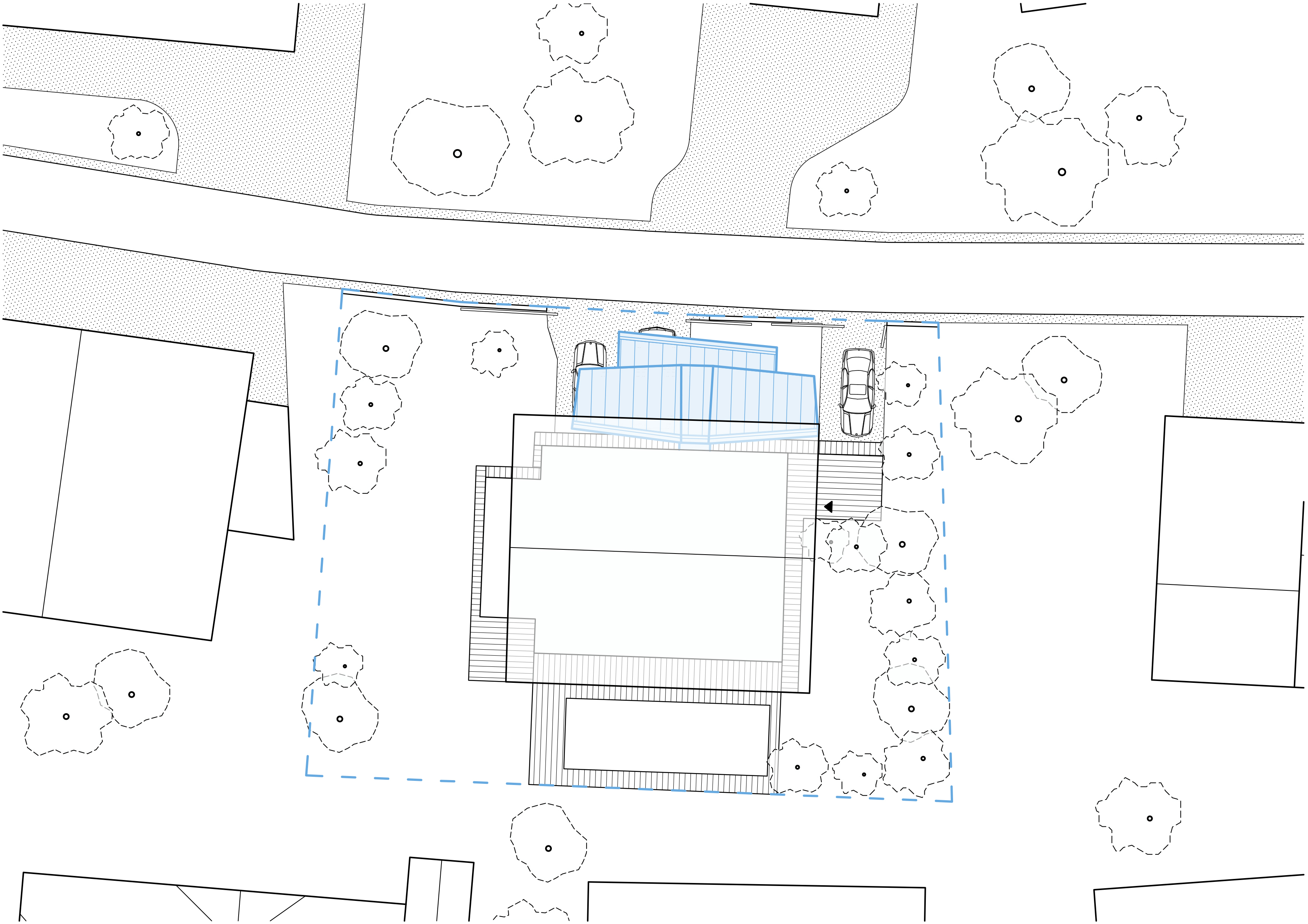
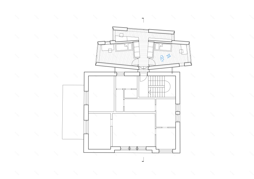
In a typical Ljubljana suburban street, a colourful array of varied single-family houses of dubious taste are arranged one after another in a boring, uniform development scheme. A precedent is set and one multi-generational family urgently needs an extension for their two teenage daughters, but the parents don't do it with self-builders, etc., but commission architects to do it!? The task becomes a challenge: how to design a small, sustainable, modern extension in the midst of this cacophony of houses? There is very little space around the house, we don't want to build on what garden there is, and the family parks their cars in a narrow lane facing the road. We decide on a design that makes the grandparents very reticent, the parents happy and the girls delighted: we squeeze the narrow slat, which hides the entrance, two rooms, a library and wardrobes, between the road and the house, and put it on steel columns, between which it is still (also) possible to park. The steel-pile house is made entirely in solid wood, with sheet metal roofing: in the pictures you can see it floating between the sky and the ground.
客服
消息
收藏
下载
最近
















