查看完整案例

收藏

下载

翻译
Firm: Oikonomakis Siampakoulis architects | Οικονομάκης Σιαμπακούλης αρχιτέκτονες
Type: Transport + Infrastructure › Parking
STATUS: Built
YEAR: 2023
SIZE: 100,000 sqft - 300,000 sqft
BUDGET: $500K - 1M
Photos: Yannis Drakoulidis (15), Oikonomakis Siampakoulis architects | Οικονομάκης Σιαμπακούλης αρχιτέκτονες (6)
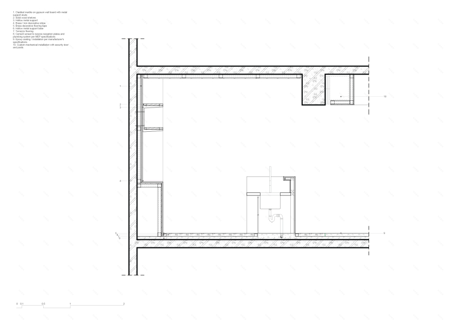
Right at the business heart of Athens, our studio was assigned to renovate the entire 1200 sqm ground floor of a parking garage facility. The 7 storey parking building that serves approximately 1000 customers per day is located in an area known for its law and medical practices, flagship stores and business headquarters, while it is in close proximity to important public buildings including the University of Athens, the National Library, the Academy of Athens, the Law School of Athens, the Council of State, and the City of Athens Cultural Centre. The facility has 2 main entrances as it is situated at the intersection of Solonos st and Asklipiou st, two very active routes of the city center. In an area that suffers from severe traffic issues and absence of available parking spaces, multistory parking garages play a significant role to the regular operation of the city center; however, most of these facilities are often downgraded and without particular care to their design and user experience. Therefore, this project gave us the opportunity to reinterpret the way this infrastructure facility affects both the beginning and the conclusion of the business day of its customers. Being on the same page with us and since the very beginning of the design phase, the project owner presented a visionary brief wanting to create something that will be unique, and will impress and surprise the customers of the garage. Our scope included the overall renovation of the entry level, arrangement of circulation and parking stalls, improvement of finishes, as well as the design of a new reception area to welcome customers. It was very important to create a welcoming area in the facility that will have a strategic position, be visible from the two main entries of the property on Solonos st. and Asklipiou, and also be the operational center of the garage. We decided to utilize the location of the facility’s old accounting office and create an open plan layout using the existing triangular shape of this previously enclosed area. To enhance the visibility of this zone we proposed a bold contrast of materials: a white ‘look and feel’ for the main circulation and parking area of the ground floor, and a natural marble clad with brass details for the reception. The use of this strong materiality for the reception area signals a key design concept of this project: to create a jewelry-like, elegant centerpiece within the infrastructure.
Project credits
Architect: Oikonomakis Siampakoulis architects (Ilias Oikonomakis, Angelos Siampakoulis)
Electrical, Mechanical & Plumbing design: 2 lamda energy (Panagiotis Lykouras)
Permitting consultant: Panagouleas Constructions (Dora Apostolopoulou)
Architectural Supervision: Oikonomakis Siampakoulis architects (Ilias Oikonomakis, Angelos Siampakoulis)
Architectural Project Photos: Yannis Drakoulidis
Model Photos: Oikonomakis Siampakoulis architects (Ilias Oikonomakis, Angelos Siampakoulis)
Seating: El Greco Vitra
General contractor, construction management and project management: KUBE Contractors (Alexandros Karantinos, Nicholas Karantinos, Kalia Michail, Giannis Tsifoutis)
客服
消息
收藏
下载
最近





































