查看完整案例

收藏

下载

翻译
Architects:31/44 Architects
Area:1640m²
Year:2024
Photographs:Nick Dearden
Structural Engineering:Price & Myers
Main Contractor:Altlant Construction
Landscape Architecture:Aarde
City:London
Country:United Kingdom
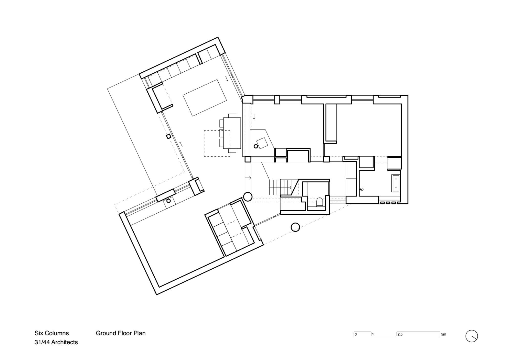
Text description provided by the architects. 31/44 Architects’ highly bespoke home for its architect owner and family sits on what was a large side garden in Crystal Palace, southeast London. From a distance, the brick structure sits comfortably alongside its neighbors, but as you approach and enter, a personality rich in architectural character is revealed - the synthesis of eclectic fragments of architecture: borrowed details of the house next door, abstract references to places visited, shared family trips, buildings appreciated and memories of houses inhabited over the years. The house twists and steps to make the most of its sloping trapezoidal site. Internally, the result is a series of intimate spaces over three floors, with multiple views between, across and through, that create a sense of spaciousness despite the modest size of the rooms.
Conceived as part farmhouse and part California Case Study House, Six Columns captures the optimistic spirit of post-war American experiments in housing and, in its construction detail, the directness of 1950s British architecture. Though discreet and considerate of its setting, the house is not meek in character or detail. Sited within a previously undeveloped side garden featuring a large, protected sycamore tree, the plan addressed the constraints of the site: following the existing pattern of the street, the house steps forward and twists to resolve a change in the character of the boundaries, while accommodating the tree to the rear. Two gardens have been created, divided by a light-filled kitchen and living space. A stepping brickwork wall, ‘rustication’ and ‘pilasters’, and a green marble panel create a formal but inviting street elevation which captures memories of buildings visited from Denmark to Barcelona via Milan. The composition makes a positive contribution to the street, adding detail and a sense of civic luxury to the entrance area, whilst illustrating 31/44’s tenet that all houses should contribute to the city, offering more than the individual expressions of the occupants.
The house continues to evolve since practical completion in 2021; the ethos behind the design is that it will always remain unfinished, its interiors a loose fit that can adjust to future requirements and tastes. Simply finished bespoke joinery allows for easy adaptation over time. Paint finishes and high embodied carbon plastering have been eschewed, while oiled, unpainted pine has been used for many of the fittings and joinery, with details inspired by Enzo Mari’s self-design furniture project, Autoprogettazione, and early modern joinery by Le Corbusier. A Brutalist approach of exposed, self-finished materials on the ground floor includes painted brick, spruce paneling, and a concrete frame - with joinery subdividing the spaces.
Six Columns’ form and layout have created bright, warm living spaces while preserving privacy and mitigating summer solar heat gain. The house prioritizes shared spaces for gathering, and minimizes individual sleeping spaces and corridors, employing a deliberate strategy to complement contained rooms with more open areas.
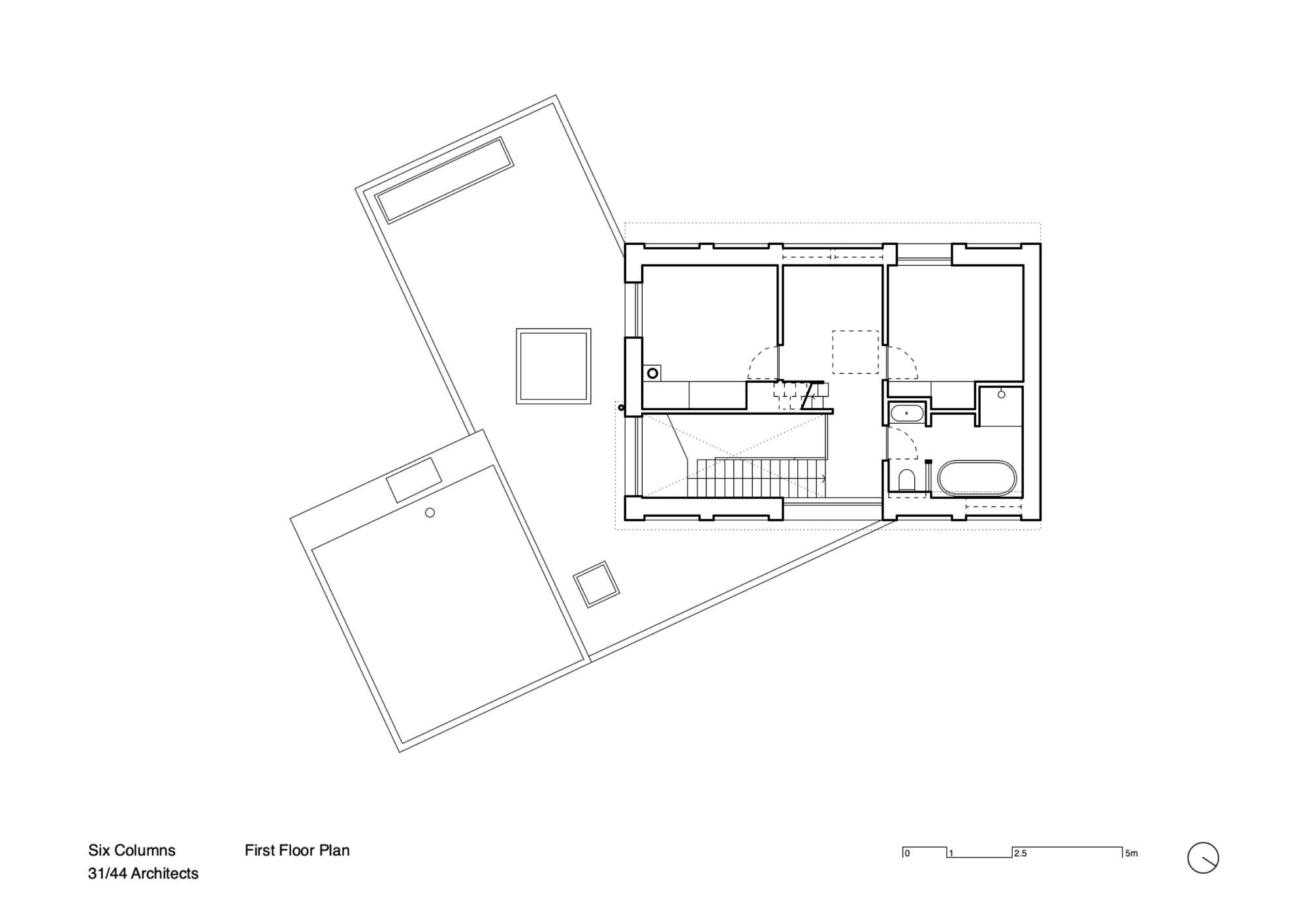
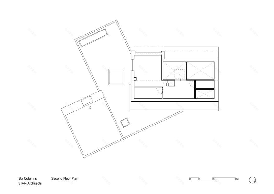
From the entrance hall, a junction with stepped level changes, views extend through the kitchen and living space into the gardens; a bedroom and family room are hidden from view. The restrained palette and timber joinery of the ground floor continue up to the two bedrooms and bathroom on the first floor; playful outsized steps lead to an open loft and bedroom on the second floor.
Structurally the house avoids the use of concrete-piled foundations and sits on a series of steel screw piles positioned to avoid major tree roots. The ground floor features exposed brickwork and a concrete frame with joinery subdividing the spaces; a small number of concrete beams allows for wide openings to the two gardens and internal flexibility of layout. Upstairs the internal masonry is replaced with a timber frame with open loft volumes. All timber spans were carefully arranged to design out the need for structural steel.
Externally, the house is constructed of a brickwork outer leaf with concrete beams with the eaves and roof edges built from timber clad with a lightweight 6mm cement board. The tight joints give the appearance of heavy lids and components: a strategy for visual weight, if not literal weight, and a significant reduction in the use of carbon-heavy concrete.
The house is fully electric. An air-source heat pump fulfills all heating and hot water requirements, supported by triple-glazing where possible and underfloor heating largely within tiled floors. Ventilation follows traditional principles – a roof light within a double-height first-floor space facilitates passive stack air movement, keeping the house cooler in the summer. During construction in 2020, the upfront carbon consumption of Six Columns (436 kgCO2eq/m2) exceeded the targets of the LETI Guide and is a milestone for the practice in working towards the 2030 targets (300 kgCO2eq/m2). In actual performance, the house produces 1.78 tonnes of CO2/year compared to the standard home of 6 tonnes/ year. Through post-completion analysis, it functions as a test model for reducing the carbon footprint of future projects.
The whole house wraps around two rear gardens with distinct characters: a low maintenance west-facing rainwater garden, which brings evening light into the kitchen, living room, and ground floor bedroom, and a south-facing terrace, accessed directly from the kitchen which is planted as a drought-resistant garden rich in insect-friendly planting. As a former garden plot, achieving consent for the site was contingent on a robust strategy for the preservation and future enhancement of the existing landscape. The positioning of the house, the levels of its ground floor structural slabs, the choice and design of foundations, and the consideration of the provision of rainwater - which is channeled from the roof into a water butt with overspill into the rainwater garden so that run-off is managed on-site - have been central to the Six Column’s design, form and eventual use.
Project gallery
客服
消息
收藏
下载
最近

























