查看完整案例

收藏

下载
家,是内心的精神宇宙,并非表面铺陈,而是内在美学展演,给予生活治愈灵魂的温暖,安心、自在、舒适,让家充满爱意,便是一种有温度的表达。
本案业主是四口之家,有两个小孩,希望整体的居家氛围偏向柔和自由,需要给到小朋友足够的成长玩耍空间。业主新房景观无敌,餐厅朝湖、客厅朝山,需要尽可能放大这个优势。风格上,更偏好极简中古,硬装干净利落,软装注重氛围感,希望能以简约的设计手法诠释不简单的美好。
经过与业主充分细致的沟通之后,设计师便大刀阔斧开始新家的打造。阳台和次卧打通纳入客厅,给到全家人更开阔的互动空间,软装都倾向于选择简单而灵活的造型,给到生活更多自由度。整体设计围绕业主需求与审美,以简约又复古的设计语言,营造柔和慵懒的氛围感,让家散发着历经时光洗礼的素雅与质感。
part.1
业主需求
❶风格倾向极简中古,注重整体的柔和氛围感,材料更倾向自然质朴与环保轻肤。
➋4 房改 3 房布局,需要最大化利用空间和功能,收纳部分能做到每一个空间适中。
➌喜欢没有约束的空间布局,要给到小朋友充足的学习玩耍空间,注重设计的安全性。
part.2 设计思路
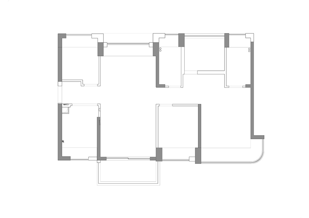
原始户型解析:
❶原始户型为四房,进门视野空间局限,且客厅动线不够宽敞。
➋阳台承重柱过大,压缩客厅整体面积,空间感较差。
➌临近主卧空间的次卧较小,收纳不足,整体空间利用率不高。
空间改造解析:
❶阳台和次卧纳入客厅,放大整个公区面积,通透而开阔。
➋巧妙利用阳台包柱空间打造壁炉装饰,增加客厅氛围感与设计亮点。
➌临近主卧空间的次卧较小,利用主卧过道空间补充面积。
part.3
实景照片
01中古之风
极简之美
LIVING ROOM
漫步进入客厅,能瞬间感受到开敞松弛的简约之美。墙面冲筋找平,以米色微水泥缓缓包裹,为达到简而有序的效果并未设计过多造型。天花平顶不设置灯槽,打造嵌入式空调百叶,每一处细节都保持着纯粹而干净的质感。
最大化放大通透感,将次卧打通纳入客厅,靠墙定制沉木书架,方寸之内,兼具收藏展示及杂物收纳,留下一室简洁静好。同时,设计师打破传统,拿掉了沉闷常规型的电视墙,转而以可移动式电视替代,沙发同样选择自由轻量化款式,可以随意挪动,随心摆放,创造出足够充裕的空间,让孩子自由玩耍,肆意成长。
阳台打通并入客厅,放大空间之余,也创造了独特的亮点,让家中光影更充满氛围感。打通的次卧飘窗与阳台之间,多出一个比较鸡肋的包柱,影响实用性和视觉整体性。设计师利用台柱内部空间设计壁炉,暖色焰火散发影影绰绰的光芒,堪称氛围感神器,让浪漫无限蔓延。
游弋于开阔空间之中,淡淡的怀旧气息融合了极简的审美艺术,整个空间都散发着舒适诗意。人字木地板温柔铺开,花纹地毯随着木色指引延展,隐形门与墙融为一体,目之所及,简约的松弛感如影随形。布艺沙发、中古茶几、绿植于错落光影之间,叠变出空间的复古美感。
在全开放的空间里,细节显得尤为重要。柔和的底色之下,风口、踢脚线、岩板等硬装则用黑色,在深与浅对比间呈现干净利落的质感。考虑到家有小朋友,在所有阳角的位置都设计了小圆角,为家增添一丝安心的柔软,也让亲子互动多了些温情。
02 食光知味 温润四季 DINING ROOM
开敞式的客餐厅,光线透过窗户洒进房间,与奶白色墙面相互映衬,使整个空间更加明亮通透。餐厅本身湖景优越,因此飘窗不作多余设计,保留开阔视野,可以随心设置小茶座,喝茶聊天办公休憩,都是一个安静去处。
餐桌采用黑色木质圆桌,搭配造型各异的简约餐椅,为空间增添了无限质感。桌面放置禅意陶罐,斜插枯枝,看似朴素的审美赋予了整个空间宁静而雅致的中古气息。一盏白色吊灯轻盈悬挂,自然的色调和柔和的灯光笼罩而下,弥漫着安静内敛的朦胧之美。
空间设计语言虽然以简约为主,也不失功能性的强调。咖啡柜与玄关处相接为整体,以米色烤漆材质包裹,散发出温暖的光泽,为空间增添一分优雅。大而深的餐边柜足以容纳大件电器设备,更宽的台面也给予日常简餐更多操作空间,让此处成为更理想的烹饪之所。
03温柔包裹
安然入梦
MASTER BEDROOM
主卧延续了全屋的基调,墙面以大面积奶油色包裹,温柔软糯的氛围和宽大柔软的布艺床,轻松拂去一身疲倦。床头取消了常规的成品设计,采用黑色半墙护墙板延展,深浅色的对比让视觉更具冲击力,也让复古感更加强烈。
利用床尾空间放置 600mm 深的衣柜,收纳功能极强。
~
干净大气的白色,也给人渲染了安心与放松的氛围,使卧室显得更加整洁明亮。靠窗位置利用飘窗台与衣柜咬合穿插,打造极具设计感的梳妆台。黑色造型不仅呼应了床头设计,也增加梳妆台的质感。阳光洒落,怀旧复古的格调悠然荡漾,每处细节都透露着舒适精致。
项目名称:山栖流年
项目设计:深圳漾空间设计有限公司
软装实施:深圳漾空间设计有限公司
项目地点:深圳汇城茗院
项目面积:116 平
装修风格:极简中古
客服
消息
收藏
下载
最近




























