查看完整案例

收藏

下载

翻译
Firm: Play Arquitetura
Type: Residential › Multi Unit Housing
STATUS: Built
YEAR: 2016
SIZE: 10,000 sqft - 25,000 sqft
With rare exceptions, where innovative programmatic issues form the basis for a residential building project, most of the time the work of architects is compressed between the restrictive Land Use and Occupation Legislation of municipalities and the hasty greed of the real estate market, factors that contribute to the low architectural quality of our cities. Many architecture firms adapt to this harsh reality, while others end up not participating in the game. The context of the Flor de Liz building was not very different from this and after some attempts by Play Arquitetura to facilitate studies with varied typologies, in which the external areas were better explored in apartments with private areas.
The program requested by the client was summarized in 1 apartment per floor, with 4 of them being 2 suites, the maximum number of parking spaces and other standards known in the market. The difference, however, arose from the fact that this is a family enterprise, of people who are not addicted to formulas dictated by brokers and other real estate agents. It was there that we architects found some room to propose different materials, a greater diversity of door and window openings and other less standardized details.
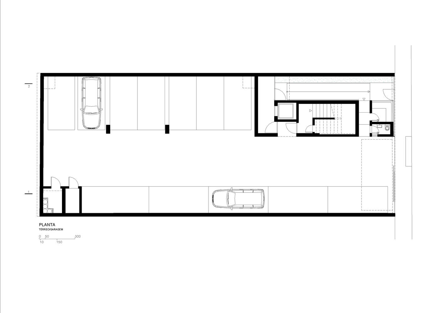
The plan is organized longitudinally, concentrating the vertical circulations (elevator and stairs) and environments with hydro-sanitary facilities (kitchen, bathrooms and service area) on one side, northwest, and the social area and bedrooms on the other, southeast. The volume and use of external materials reinforce this sectorization. The northwest façade is marked by an irregular composition of square pre-molded windows, of varying sizes, by Neo Rex. The southeast, in turn, is made up of larger, regular windows and the difference was the covering created with Gail ceramics of different colors, some of them already discontinued and found in the brand's warehouse in Belo Horizonte, which contributed to a significant cost reduction.
The 10% of the floor area not computable according to the legislation in force at the time was used to create a comfortable balcony at the front of the building, with a barbecue and bench with sink. On this balcony, the design of the railing stands out, made up of vertical iron bars that appear isolated from each other, since the horizontal bracing has been transformed into a large wooden bench. On the front facade, the volume that houses the social area of the penthouse apartment stands out as a unique element in the general composition of the building.
客服
消息
收藏
下载
最近































