查看完整案例

收藏

下载

翻译
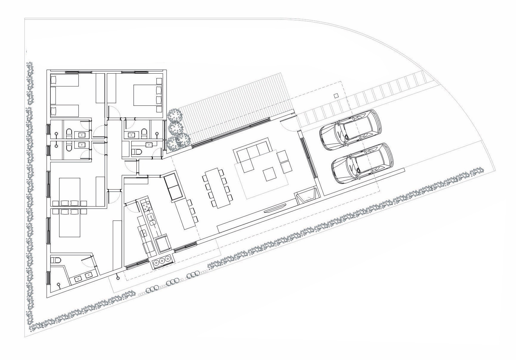
Located on the beach of Xangri-lá, north coast of Rio Grande do Sul, the house Malibu H25 is located in a corner of 414sqm facing a small square with predominantly east sunlight. It is a 226sqm ground floor residence consisting of four suites, guest toilet, laundry area and social area with living and dining areas integrated into the kitchen. The needs program seeks to meet a family in which parents, grandparents, can get together with their children and grandchildren for the summer.
Thus, the project was designed to provide privacy and comfort to the residents while using vacations in which rest and recreation activities can occur simultaneously. For that, the intimate area of the dorms was conceived in a distinct wing from the social area resulting in an architectural party in "V" - also due to the geometry of the lot. At the center of this "V", the social area opens onto a courtyard in direct confrontation with the street. In this patio, of north insolation, is positioned the garden with configuring the "space for the chimarrão of the afternoon" –typical tea of the gauchos.
The house have parking space for two cars in open courtyard. It was designed to minimize the automotive emphasis of the space using windows that connect the place to the social area and can be used as a balcony. The apparent brick façade, earth-shingle shingled roof and solid wood pergola seeks to contribute to the space's accommodation through the use of natural materials combined, drawing in simplicity on the aesthetic of Frank Lloyd Wright's prairie houses and the purity of the sections of Glenn Murcutt.
The interiors of the house reinforce the intention to promote a cozy but also practical and informal environment, with the use of the apparent wood lining and cement floor that generate little reflective planes and atmosphere of rest / resting. Lighting and natural ventilation are provided by large spans in cross-planes predominantly east and north. The construction work, from the marking of the template to the delivery - equipped and decorated - lasted 9 months.
客服
消息
收藏
下载
最近







































