查看完整案例

收藏

下载
项目背景
牛排家创立于2016年,是隶属于三盛未来公司旗下的一个西餐品牌。产品从食材产地、烹饪技法、系统培训、菜品口味上做细节科学的设计把控。服务从细节流程、餐酒文化搭配、礼仪文化、产品文化起源,做深耕和打磨沉淀。并决心创建一家中国人自己的无国界厚牛排馆,以打造中国人自己的西餐品牌为己任!故决定于2022年对产品和服务全面改革升级,创建升级新品牌:US' PRIME 1885丨牛排家。
牛排家杭州城北店,位于杭州城北万象城一层,一个新的商圈,主要为城北商圈提供新的能量补充,以及写字楼饮食配套。
基于牛排家品牌的年轻时尚基因,空间营造中以黑白调性,笔直的线条与温和的色彩勾勒出空间张弛有度的轻松环境,极简的态度更好的阐述了当代年轻人的审美取向。打造以人流为导向的用餐空间,强调用餐过程的体验感,在消费降级的当下,打造一个降维的用餐环境。
入口/ 开门见山,张弛有度
餐厅位于商场的一层户外中心广场,是商场的核心位置。在外立面的打造上我们强调与建筑玻璃幕墙的统一协调性。
在入口前区置入了一个方盒子的负空间做为灰空间,具有强烈的指引性,让客人进入餐厅便感受到在空间的情绪价值,引人入胜。
厨房的两个面与餐厅的两个大厅有效地链接,更好地营造了餐厅的烟火气。牛排柜,红酒柜与器皿摆设,分散地点缀于整体的空间中,更好地优化了服务的动线,展示了餐厅的文化与实用性。客人进入空间即感受到牛排家的餐饮文化,对牛排的用心烹饪。
大厅/井然有序,自由空间
品牌运营本身以大厅为主要效益来源,其重要功能之一是将顾客和品牌之间的距离拉近。为此,在空间的设计上我们最大限度地利用了大厅的位置,延伸空间的室内界限,互动链接户外空间,增加了空间的流动性、餐厅的互动性和整体用餐氛围。
同时,我们在通道设置了功能柜,在增加空间私密感的同时也让整体的服务更具有品质感,营造出一种不经意的高级感。
大厅的另一侧与商场的公区毗邻,设计师在与幕墙的链接处设置了矮隔断,强调客人用餐过程的私密感与高级感。
空间中的多处隔断的设计,强调西餐的安静浪漫氛围同时给空间带来了更加丰富的层次感。透光云石造型隔断分割了通道与用餐区的作用,同时作为空间视觉的传递,输出着强烈的力量感与自然的影像,一种温和的情绪涌上心头。
平衡之道/文化无国界
在空间的设计上,我们并不会因为是一种西方的饮食就特别强调西方的设计感。相反,设计表达着牛排家中国人自己对牛排馆的无国界理念,打造一个没有强烈西方文化的中国牛排馆,让用餐体验者更好的享受中国人自己的西餐品牌,这也是艾克建筑为牛排家品牌环境打造的核心输出。
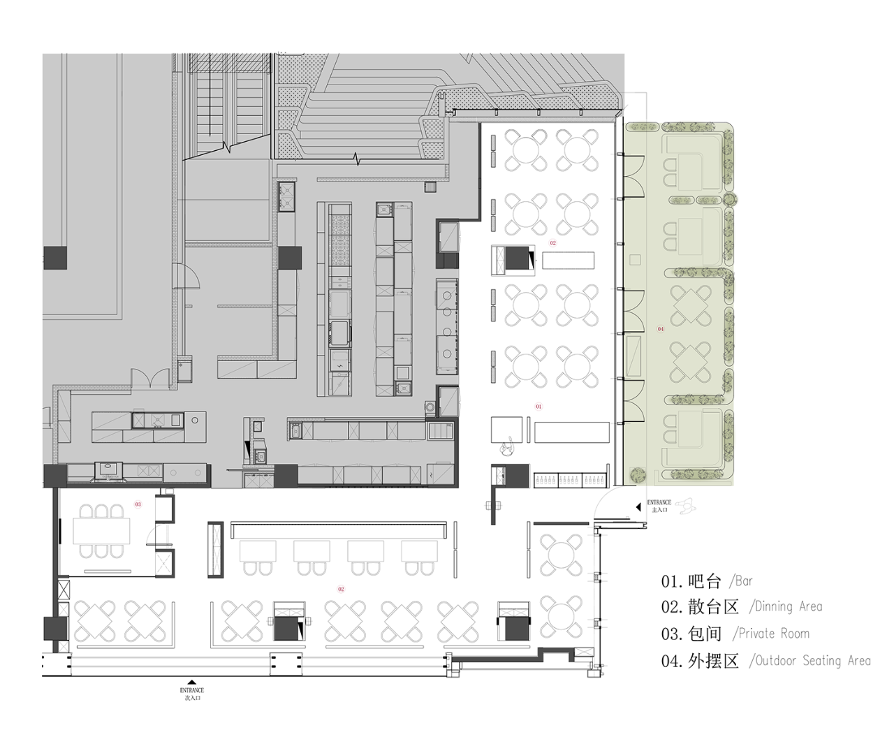
▲平面图
项目信息
项目名称:US' PRIME 1885丨牛排家
项目业主:三盛未来
设计机构:AD ARCHITECTURE ∣艾克建筑设计
总设计师:谢培河
项目地点:杭州
建筑面积:700.2501349㎡
主要材料:石材、玻璃、木地板、艺术漆、不锈钢、透光石皮
施工单位:杭州旭昕建筑装饰有限公司
设计时间:2023年8月
竣工时间:2024年3月
摄影师:欧阳云
谢培河
AD艾克建筑设计创始人及总设计师-谢培河怀抱强烈的情感张力和原创精神,主张以感性丰富驾驭理性简约,高妙且自然地融合空间功能与个性。在简单与复杂的动势中呈现空间美学,让人心与空间精神同振共鸣。凭借商业、住宅和办公领域的一系列极致空间作品,在过去几年内斩获了一系列国际知名奖项。其独具先锋性的“极简派艺术”空间设计语言,也已融贯东西方的认知并在全球业界得到极高的认可。
客服
消息
收藏
下载
最近






















































