查看完整案例

收藏

下载

翻译
Architects:Fino Lozano,Moro Taller de Arquitectura
Area:1345ft²
Year:2022
Photographs:Rafael Palacios Macias
Manufacturers:AutoDesk,Adobe Systems Incorporated,American Standard,MOEN,Trimble Navigation
Lead Architect:Arq. Delfino Lozano Salcedo
Collaborative Architect:Arq. Mauricio Rodríguez / Moro Taller
Administration And Purchasing:Lni. María Fernanda Rodríguez Lozano
Senior Construction Manager:Arq. Daniel Villalba Diaz de Sandi
Workshop Manager:Arq. Jesús Sánchez Guzmán
Architectural Design And Representation:Arq. Daniela Paulette Zurita Alvarez, Arq. Valeria Macias
Design And Construction Of Structures:Ing. Delfino Lozano Armenta
Construction / Earth Walls:Arq. Mauricio Rodríguez / Moro Taller
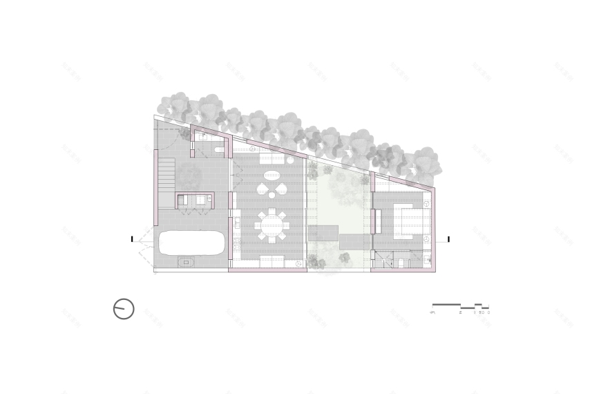
Program:Ground Floor: Garage, service closet, entrance patio, half bathroom, kitchen, living/dining room, patio. Bedroom with bathroom Upper floor: Terrace
City:San José de Gracia
Country:Mexico
Text description provided by the architects. Located in San José de Gracia, Michoacán, Casa Nandi is a 2-story house, in which we had the opportunity to collaborate with moro taller for its execution; this integrates on the second floor a terrace that allows panoramic views of the landscape, inviting contemplation of the immediate context.
It is located on a north-south facing lot, and has a construction area of 125m2; this project was a challenge for the workshop because, fortunately, it made us leave our city to study other landscapes of Mexico and thus be able to integrate our ideas with a new and exciting context.
The project seeks as its main objectives to be economically and environmentally viable, developing bio-construction techniques that contribute to developing a work that mimics the landscape, always taking into account the simplicity of the place, making the most of the orientation to generate an illuminated but private atmosphere, which is naturally ventilated generating moments of harmony and tranquility for the inhabitant.
With these objectives in mind, we propose a sustainable and simple structure, which at the same time works to generate large clearings inside the house, having as a base some pine wood beams and on them a handmade mud brick that receives the slab filled with concrete, this exposes the natural mud and the wooden beams in the lower bed, without the need to cover the material that by nature is pleasant.
In the walls we see an ancient system of rammed earth, fused with contemporary techniques of concrete casting that tells us how timeless architecture is when the right design and materials are selected for the project, The use of concrete walls and rammed earth walls were combined, in this way the function of these walls is not only structural, by incorporating these construction techniques we generate thermal and acoustic insulating atmospheres, which in addition to being functional, generate a very good contrast with the black stone floor, the ironwork windows, and the furniture finishes in carpentry and polished cement bars, achieving a monochromatic palette but with subtle accents that show great honesty in the materials.
The architectural program is designed to be traveled in a simple way allowing the contemplation of every corner, considering on the first floor the entrance to the courtyard hall, garage, laundry room, half bathroom, living room and kitchen, having a transition patio to enter the master bedroom that contains a full bathroom and closet; at the entrance there is a staircase that, if desired, will allow us to contemplate the awakening of the sun or a starry night on the terrace.
Project gallery
客服
消息
收藏
下载
最近



























