知末
知末
创作上传
VIP
收藏下载
登录 | 注册有礼

40㎡小宅设计

2024/06/07 21:53:02
查看完整案例
微信扫一扫
收藏
下载
40㎡小宅设计-0
小宅设计
40
㎡小宅
40㎡小宅设计-4
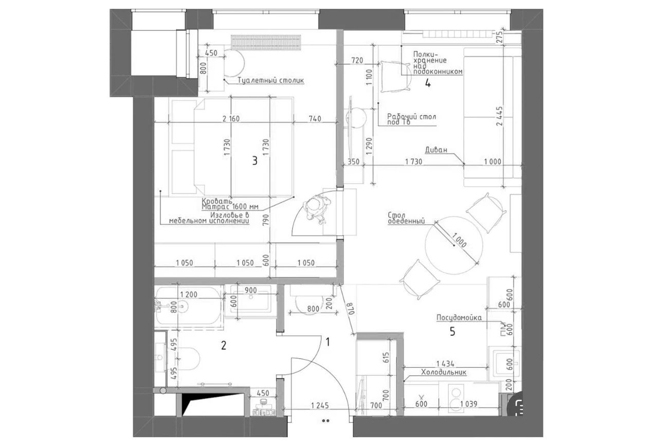
空间布局
40㎡小宅设计-6
设计师以古老传统与新技术的结合,保留了民间文化的基础,没有多余的装饰,体现了主人的性格。房子的主要特征是框架中的优雅镜子、用面板装饰的独立墙壁部分、整齐的桌椅以及木制建筑的常见装饰元素。
40㎡小宅设计-8
40㎡小宅设计-9
40㎡小宅设计-10
40㎡小宅设计-11
40㎡小宅设计-12
40㎡小宅设计-13
40㎡小宅设计-14
40㎡小宅设计-15
40㎡小宅设计-16
40㎡小宅设计-17
40㎡小宅设计-18
40㎡小宅设计-19
40㎡小宅设计-20
40㎡小宅设计-21
40㎡小宅设计-22
40㎡小宅设计-23
40㎡小宅设计-24
40㎡小宅设计-25
40㎡小宅设计-26
40㎡小宅设计-27
南京喵熊网络科技有限公司 苏ICP备18050492号-4知末 © 2018—2020 . All photos and trademark graphics are copyrighted by their owners.增值电信业务经营许可证(ICP)苏B2-20201444苏公网安备 32011302321234号
客服
消息
收藏
下载
最近