查看完整案例

收藏

下载
■ LJID - 肖懿展独家专访
在同类竞争白热化的当下,自助餐作为曾经风靡的餐饮形式再次回温,随之而来的,是就餐形式的日益灵活和产品力的提升。这些变化悄无声息地影响着每位就餐者的选择。
01
BIDIRECTIONAL FUSION
双向融合
一展设计认为,真正的体验变化发生在餐桌之上。
在钱小奴品牌的升级黑金店中,设计师肖懿展将酒店芭菲的空间质感与社会餐饮形式相融合,让自助餐饮体验回归它本来的样子,在“日常的仪式感”中给出了具体的形象。
P. 01
02
BACK TO ORIGIN
回归本源
现代自助餐起源于东京帝国酒店的首创,随着文化的交流渗透到世界各地的餐饮日常中。
在钱小奴黑金店的营造中,设计师运用大量的金属材质和暖色肌理来强调空间质感,还原了昭和时代美学中的奢华畅想,细节与体验挣脱墙体,延展成为空间中的流动美学。
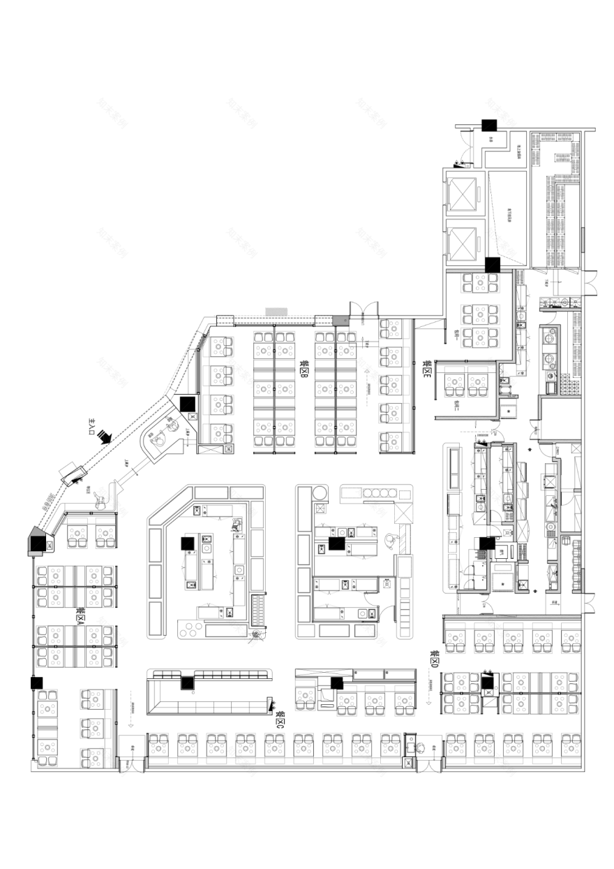
作为空间中功能与视觉的核心场域,在取餐台的设计中,通过金属、镜面与玻璃的交织,营造绵延不断的体块感受和层次变化。
由于商场内面积与结构的限制,室内空间感主要以材质、光线反射与顶面的关系来呈现,空间在虚实交错的视觉波动中,撩拨就餐者的精神世界展开想象。
面对琳琅满目的食物品类,设计师需要在有限的空间中,通过格局优化来规避取餐时的拥堵状况。围绕中心的对称岛台与四面取餐区域分布,令人们在选择时可以在空间中自由穿梭,再根据不同区域的餐食陈列,在上方显眼位置设置标牌,就餐者能够在种类繁多的食物中,快速锁定最钟爱的佳肴。
这种材料与灯光构成的秩序感,在视觉上弱化了空间中食物和食客繁多的拥挤感,也是品牌希望借此传达给每一位食客的愉悦感受。
03
WHILE THE LIGHTS LASTS
灯火阑珊
每个人心目中都有关于吃饭的美好记忆:一束灯光、一声呼唤,就可能勾起脑海中熟悉的温馨画面。
这种的情感链接,或许来自于家人、朋友、恋人的不同期待,而这些关联的画面,都汇聚成了餐厅中星星点点的灯光,紧密链接着每一位食客的味蕾。
而在就餐区域,设计选择摒弃喧宾夺主的装饰,用温和雅致的金色墙体与家具,衬托出食物的鲜香诱人,让就餐者的注意力回归到体验新鲜多样、加工精细精致的海鲜美食,或许成了空间中最动人的装饰。
不同的就餐片区通过夹丝玻璃分隔,营造出宛如和纸的半透明光影效果,在人影绰绰中,空间的情绪被唤起;同时减少了清洁难题,是设计基于后期运营维护的特别思考。
每一个餐饮空间都承载了有关过去与当下的生活片段,之于好体验、好味道,都至关重要。
一展设计以视觉语言制造情景,在平凡生活中遇见出乎意料的惊喜,是其始终坚持的营造准则。设计需要做的不是创造崭新的生活场景,而在于将每个动人片段抽丝剥茧,在日常的丰满中向就餐者传递对于美味与生活的理解。
分析图
平面图
- 项目名称 -钱小奴海鲜自助黑金店
- 设计机构 -一展设计
- 主创设计 -肖懿展
- 设计团队 -毛建雄 陈利亚 王忠天 王鹏飞 张来建
- 项目面积 -870.2501349㎡
- 项目地址 -中国杭州
- 项目摄影 -戚朔迁
-施工负责 -李松奇
DESIGNER
肖懿展
一展设计创始人 & 主持设计师
一展设计位于杭州,项目包括住宅/商业及餐饮空间,设计理念围绕以人的感官需求为核心,希望通过材质、色彩、灯光、声音、气味唤醒人与空间的互动体验。多年设计实践深度研究及挖掘场地的独特性,转换为空间的独特性,以简练去风格化的手法创造新的空间关系。
客服
消息
收藏
下载
最近

























