查看完整案例

收藏

下载
恰与《诗经》中对终南山美景的描绘相仿,Snow Peak紫旸山庄店坐落于北京潭柘寺西北山谷之间,林深木茂,清幽闲寂。它既是顶级户外品牌Snow Peak的门店,又是藏于无边风月里的咖啡厅,亦是北京经典骑行路线上惬意休憩的驿站。
▽零售空间概览©李晓光
▽咖啡店概览©李晓光
01. 自然而然,户外之外
Snow Peak作为日本顶级户外品牌成立于1958年,创办人山井幸雄本身就是一位热爱山岳的登山家,秉承他的精神,Snow Peak也成为一个崇尚自然、注重品质的户外品牌,在户外运动爱好者圈层中有着极高的知名度和美誉度。
“野游人生”是Snow Peak长期以来倡导的品牌理念,将人与自然联系起来。项目所在区域森林覆盖率达80%以上,弘石团队希望充分利用“自然而然”的力量,将品牌对户外生活方式的理解,通过不同方式和场景进行重现,让自然展现户外美学,让空间传达生活美学。
▽轴测图© 弘石设计
▽店铺门头入口处©李晓光
02. 隐于峰岭,原生共生
民间素有“先有潭柘寺,后有北京城”的谚语,本案位于潭柘寺其畔紫旸山庄二期的最高处,自然风光尽收眼底。选址于此的另一原因在于建筑一侧紧邻北京经典骑行路线潭王路,沿途景色宜人,山道蜿蜒。Snow Peak门店的出现将成为该路段上户外爱好者的打卡地。
▽周边环境©李晓光
建筑主体原为一座三层别墅,每层均有一处开放式露台。为适应门店与咖啡厅的新角色需要,建筑在不同高差上的设置骑行线与山庄线两个入口。建筑空间布局上延续现状,使其与紫旸山庄整体风格保持一致,在每一层穿插不同的功能体块,以满足各层的使用需求。利用原有玻璃天窗和贯通三层的楼梯,让居于室内的客人也能沐浴阳光,拾级而上,抵达不同空间。
▽露台视角远眺山峦©李晓光
03. 骑行友好,曲径漫游
Snow Peak紫旸山庄店的骑行路线入口紧邻潭王路,主要服务于户外爱好者,弘石团队结合Snow Peak中国提出的需求,共同打造“骑行友好”的概念,划分人行车行两条动线,为骑行者的爱车提供独立停放处,自行车采取“垂直停放+一车一锁”的方式。
▽店铺位于北京经典骑行线路上的必经之地©李晓光
▽骑行友好独立停放处©李晓光
前场景观利用锈板硬朗的质感结合现代几何的造型,为项目入口带来鲜明的昭示性。园无石而不秀,利用岩石、碎石结合不同植被,营造不同的景观节点,让粗犷的自然元素遍布其间,山野的气息便随之而来。
▽入口处以岩石、碎石营造的景观节点©李晓光
▽不同高差上的景观节点©李晓光
依托现状地形,为Snow Peak的经典产品呈现不同的体验场景,或结合旧墙围合出一隅静谧;或结合几何锈板与花箱,打造一镜到底的空间纵深感,给予客人“庭院深深深几许”的期待感与探索欲。
▽粗犷的自然元素与锈板的结合使用©李晓光
▽利用旧址原生环境营造新空间©李晓光
04. 若即若离,往来其间
建筑首层为Snow Peak服装和模块化家具的展示区,采取开放式空间设计,在适宜的天气状况下,可将窗户折叠至一侧,水洗石地面由室内延伸至室外,模糊室外与室内的界限。
▽首层Snow Peak展示空间©李晓光
▽空间层次©李晓光
▽户外用品陈列和零售区©李晓光
二层为户外用品陈列和零售区,涵盖Snow Peak各系列的产品。为满足露营产品的展示需求,设计整墙的原木洞洞板,为不同的产品展示提供灵活性。中央区7米长的岛台,采用台面为仅厚10毫米的整张无缝氟碳喷涂钢板,纤薄的台面下置入篝火木,精致与粗犷相得益彰。空间端头的造景区是Snow Peak的经典产品,供露营爱好者尽情体验产品。
▽拾阶而上©李晓光
▽Snow Peak Cafe全国首店©李晓光
三层是Snow Peak Cafe全国首店,同时也是骑行路线的入口层,有着优越的采光,整体作开放式布置,客人可以自由选择室内或者室外,创造出更多人与人的交流场所,每个座位的视线互不干扰,人们可以一边喝着咖啡,一边眺望远山。
▽总平面图© 弘石设计
▽1F平面图© 弘石设计
▽2F平面图© 弘石设计
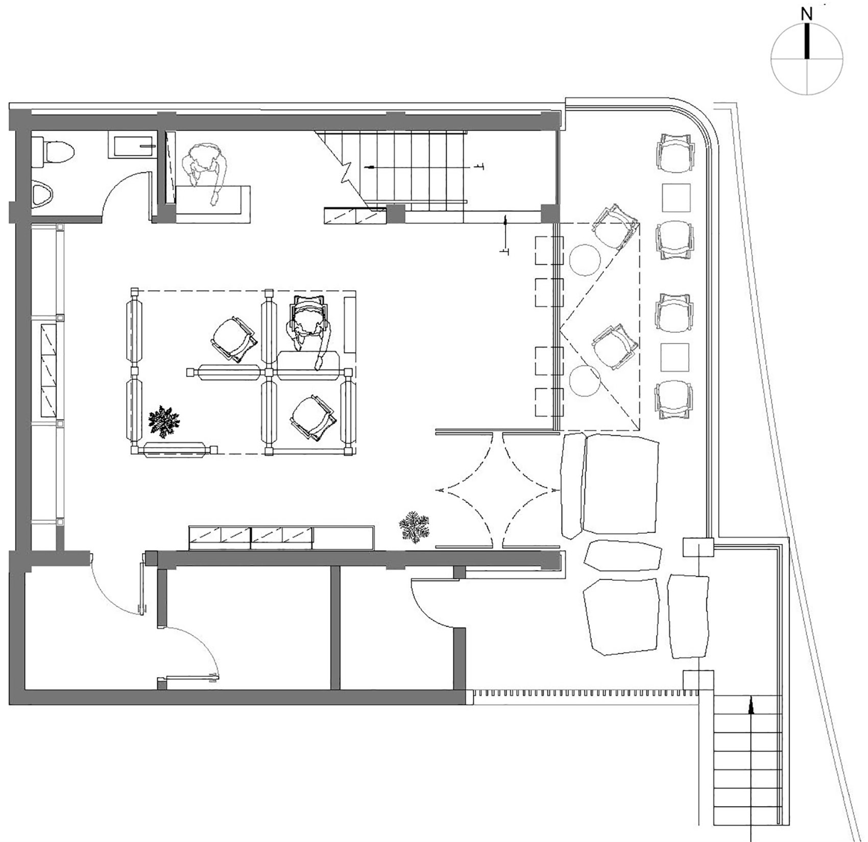
▽3F平面图© 弘石设计
▽剖面图© 弘石设计
项目名称:Snow Peak 紫旸山庄店 & Snow Peak Cafe
业主单位:Snow Peak中国、北京沐山酒店管理有限公司
设计单位:弘石设计
设计范围:建筑设计、室内设计、景观设计
项目面积:1,122.2501349㎡
设计时间:2023
竣工时间:2023
设计总负责:张兵
项目经理:霍兴海
设计团队:白雪琪、李一黄、臧新运、余阳、任奇、魏晟
项目摄影:李晓光
客服
消息
收藏
下载
最近





























