查看完整案例

收藏

下载
▽项目视频© 己盒概念
这是己盒概念和崔酱合作的第四家店,有别于传统炸鸡店,崔酱一直推崇轻松不拘束的社交用餐理念,希望每家门店都能有一个独一无二的用餐体验。
▽远望门店© 己盒概念
项目选址位于福州万象九宜城的外围东北角。原始场地经过商场的外立面二次改造出现了一个独特的玻璃采光天井,于是崔酱与天井的对话就成为了本次设计的起点。
▽门头概览© 己盒概念
场地整体呈长方形,靠近西侧有一条商场通道可以纳入规划使用,正好将入口及点餐台设置在这个无法摆放家具的区域,后厨放置在场地的中部,重新界定后的场地动线被刻意拉长,为进入用餐空间做足铺垫。
▽入口空间© 己盒概念
沿着幽暗光线的通道继续深入,拐角过后是一个黑色用餐区域,我们试图通过这样一个全黑的过渡空间,完成一次空间感受上的跳转。
▽黑色用餐区© 己盒概念
▽空间过渡© 己盒概念
黑色用餐区的尽头由一个窄隧道连接着庭院空间,之前一切的克制,都是为了步入庭院的刹那有一种豁然开朗的惊喜。
▽庭院就餐区概览© 己盒概念
▽庭院豁然开朗的庭院© 己盒概念
庭院空间设计了不同的用餐形式;有二人卡座、多人聚餐桌、以及轻松围坐的天井,让就餐体验充满舒适感和趣味性,满足当下年轻群体的用餐和社交需求。
▽天井座位© 己盒概念
▽从幽闭的用餐区望向庭院用餐区© 己盒概念
▽多人聚餐桌© 己盒概念
超宽幅的外窗将人的视线一直延伸至户外,室内与室外的景色互动互融,坐在庭院观望着店外的车水马龙或许也是一种对都市的逃离。
▽超宽幅的外窗© 己盒概念
由此,天光、落叶、古砖、屋檐,结合崔酱本身的理念和对空间体验的追求,构成了一个庭院中野餐的美好回忆。
▽数字模型© 己盒概念
▽轴测图© 己盒概念
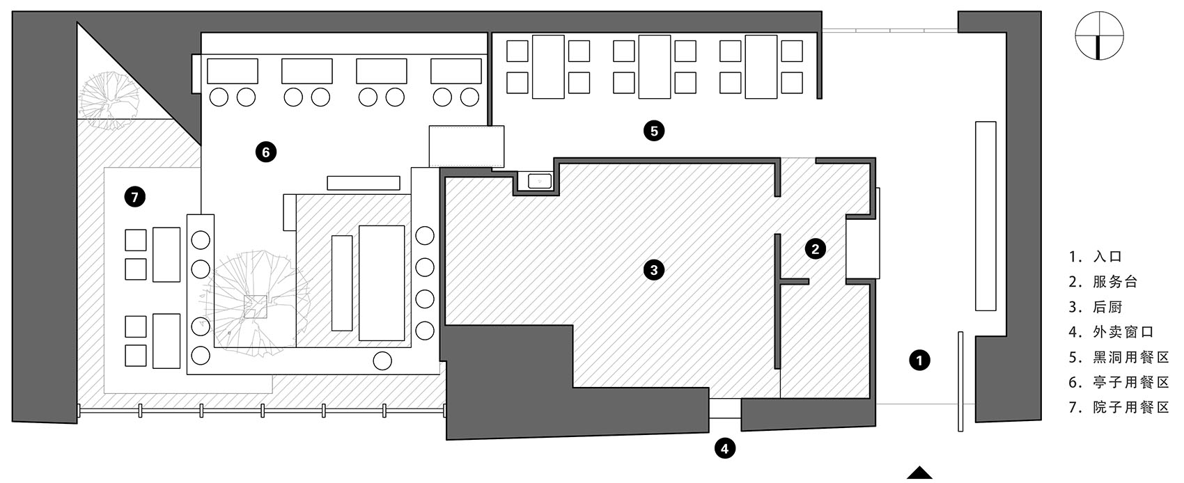
▽平面图© 己盒概念
项目名称:三角亭
项目类型:餐饮
设计方:己盒概念
完成年份:2022年
设计团队:己盒概念设计团队
项目地址:福建省福州市万象九宜城
建筑面积:150.2501349㎡
摄影版权:己盒概念
合作方:五维装饰
客服
消息
收藏
下载
最近



























