查看完整案例

收藏

下载
葉外致力于创造基于纯茶的创新空间体验,以及独特的东方美学生活方式;不管是空间还是产品都传递出主理人对于当代东方美学的热爱与探寻。品牌的本质是对时间的接纳。▽店铺门头© yuuuunstudio
如室承接了葉外的第五家门店,配合产品线的更新对空间风格同步进行了重拟与升级。▽logo© yuuuunstudio
在城市中营造与东方美学和自然体验融合的空间© yuuuunstudio
檐与台
叶外海岸城店位于海岸城的门户位置,在观察了现场纷杂喧闹的环境后,我们选择了用克制的手法去回应与表达。此时此地不是去创造一个“新”的空间形式,而是试图唤起那些存在我们心底的美好场景。通过空间的搭建,使其历久弥新。
▽东方美学和自然体验融合的空间© yuuuunstudio
重檐的设计一方面是对盛夏深圳阳光的过滤与控制;另一方面则是在框景,搭建出世的意趣。悬架的设计让受力结构隐匿,保证了内外视线的通透;同时遮蔽掉外部的高楼大厦,只留下水平向的长轴画幅。▽帆布构造示意图© CIVO-LAB
▽就餐区© yuuuunstudio
内部空间的尽端设置了抬高两步的私密卡座区,使处于深处的客人也能享受被画框选择过的户外景观,于台前安置的天然石级像是步入一个更隐匿世界的提示。▽抬高的私密卡座区© yuuuunstudio
枯笔
“先有落墨,方得留白”
▽沈周《溪山秋色图》© 大都会艺术博物馆
画的要义在于每一处落笔皆如其所是,不增不减,我们试图在空间设计中去接近这个境界。吧台是空间中不可忽视的视觉点,同时也是日常运营最繁忙处,翻边的设计减少了吧台设备的露出,确保其干净与整洁。通过对隐蔽设备及结构的精确设计,减少不必要的视觉干扰,使空间得以留白。品牌的输出也是寥寥几笔,跃然墙上,反而印象深刻。▽吧台空间© yuuuunstudio
▽吧台细部© yuuuunstudio
▽就餐区概览© yuuuunstudio
皴法
相同气质下用不同肌理进行书写,让空间保持纯粹的同时不失回味的细节。
▽木材肌理© yuuuunstudio
作为底色的肌理涂料,局部拉槽的墙面处理,棉麻质感的坐垫,脚下的自然边木板,就像水墨的层次,统一而丰富。▽统一而丰富的层次© yuuuunstudio
茶席
“户庭无尘杂,虚室有余闲”——陶渊明
于中心位置放置了一张超日常尺度的茶席,我们试图借由传统美学中的仪式感,为喝茶增添更多深度的体验。与茶席呼应的是其上悬挂的长灯,提取传统灯笼的结构与形制,同样做了超日常尺度的变体,表皮与结构之间的“间”让其轻盈如跃然纸上,微弧的线条让水平向的阔远画幅增加了一抹趣致。
▽超日常尺度的茶席© yuuuunstudio
雅集
“中园屏氛杂,清旷招远风”——谢灵运
户外庭院尝试还原文人墨客于自然间席地而坐,无拘无束,吃茶言欢的自在场景。
▽户外庭院© yuuuunstudio
户外家具的设计转译了古代的“榻”,中间同样是一排超日常尺度的长塌,缀以禅意的造景,延边则是轻松舒适的坐塌,背靠丰盛的绿意,共同形成自成一格的独立小院。▽户外庭院© yuuuunstudio
如室的“insight-观”系列源自心经的“观”。
一者“内观”,关注自我审视和对东方美学的持续学习;一者“行观”,用我们对传统文化和生活方式的提炼去尝试唤起人们对美好生活的记忆和向往。
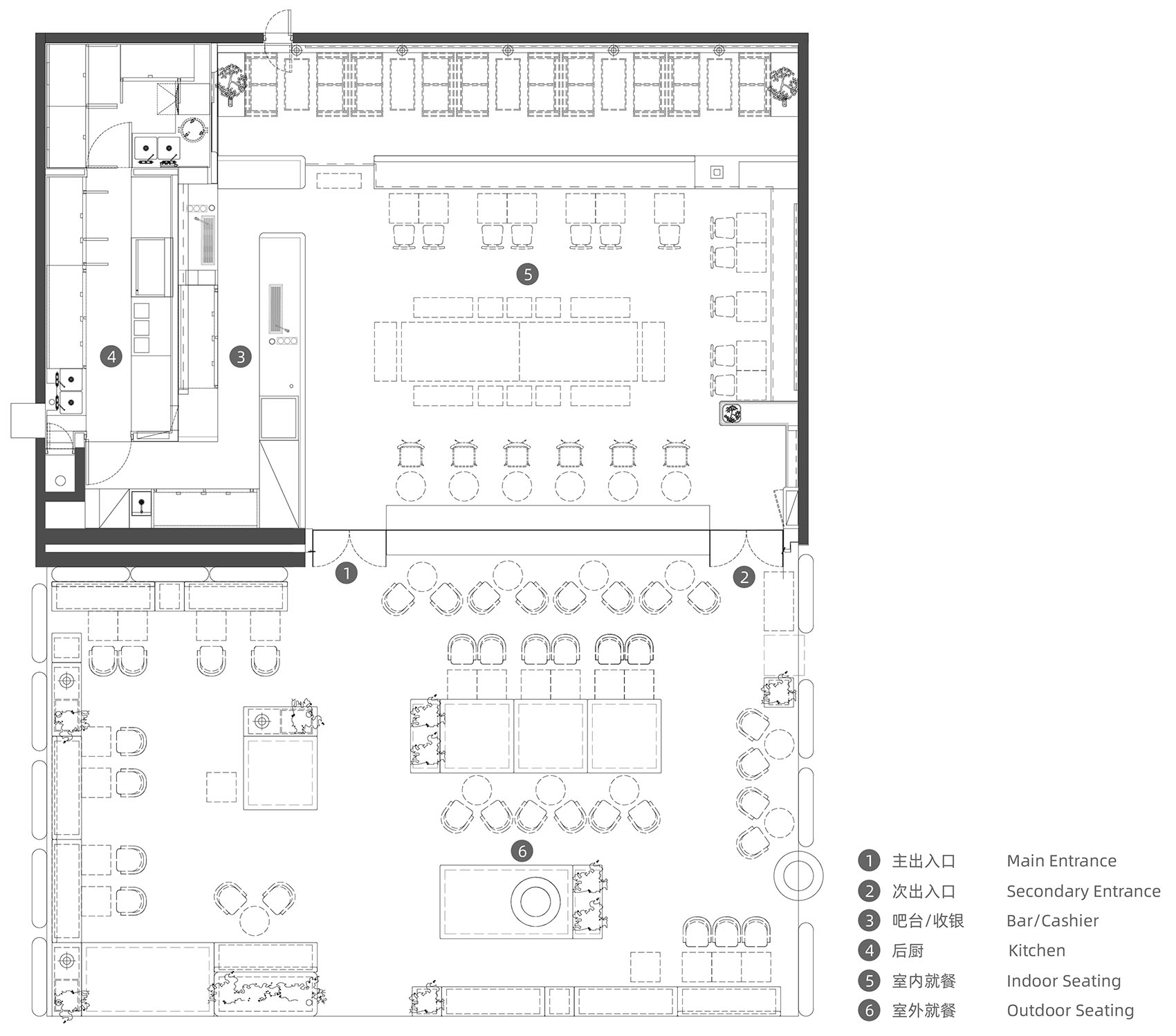
▽平面© CIVO-LAB
▽立面© CIVO-LAB
▽剖面© CIVO-LAB
项目名称:叶外
设计方:Ruhaus Studio
项目设计 & 完成年份:2023
主创及设计团队:朱丹丹,王艺儒。林诗婷,梁晓东,周敏。
项目地址:深圳市文心五路 33 号海岸城广场二层 261-2(lululemon 隔壁)
建筑面积:室内 130.2501349m² 外摆 100.2501349m²
摄影版权:yuuuunstudio
合作方:领尚装饰 卢文虎
客户:叶外
品牌:凡塞奇艺术涂料 abc-stone
客服
消息
收藏
下载
最近





































