查看完整案例

收藏

下载
项目位于杭州滨江区孔家里,属于白马湖生态文化创意城的一部分,孔家里是被规划改造过的城中村,项目基地主楼为一幢三层高砖混结构农民自建房,主楼朝向西南,东北靠山且有高低错落的后院及山体护坡,主楼西侧另有两幢一层高的砖混结构附属房屋,三幢房子围合出一个朝南前院。
▽项目外观©壹山设计
项目定位为需符合当下流行消费场景文化的网红商业空间集合店,空间需满足咖啡、书吧、服装等小型零售经营需求且兼具服装拍摄或网红打卡等商业需求。
▽庭院©壹山设计
▽室内入口区域©壹山设计
▽入口区域通高空间©壹山设计
拆改加固
拆除建筑周围多余的构筑物和围墙,最大限度拓展前后庭院空间。对原建筑进行结构加固,由砖混结构改为混凝土框架结构,重新规划室内空间格局。
▽改造前现状©壹山设计
▽庭院空间©壹山设计
▽餐饮空间©壹山设计
▽室内细部©壹山设计
意料之外的设计
建筑基础加固开挖施工过程中地底挖出大量颜色斑驳的黄麻色花岗岩,设计师现场发挥根据每块石头的形态进行景观节点设计,这些“意料之外的设计”成为庭院景观的点睛之笔。
▽挖出的黄麻色花岗岩成为景观节点©壹山设计
未完成的设计
剥除原建筑墙体及顶板的粉刷涂层,使用不锈钢、混凝土、未经打磨的涂料、水磨石、胶粘石等质感粗犷的材料,营造出“未完成的”空间效果。
▽质感粗犷的材料选择©壹山设计
▽洗手间©壹山设计
采光及灯光设计
局部拆除主楼二三层楼板,形成一二层和二三层两个镂空的通高空间,南面设置大面积的落地玻璃保证室内采光,也使得室内高低错落的空间结构直接展示于观看者的眼前。
▽上下交通©壹山设计
▽柔和的室内照明©壹山设计
以人体工程比例为尺度,不同区域采用不同的照明方式,在观看距离过短区域采用柔和的间接照明设计。
▽不同区域采用不同的照明方式©壹山设计
▽室内一瞥©壹山设计
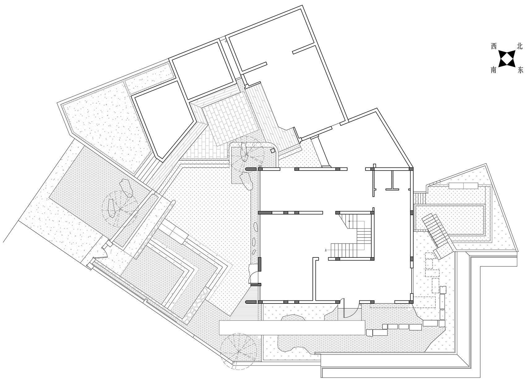
▽总平面图©壹山设计
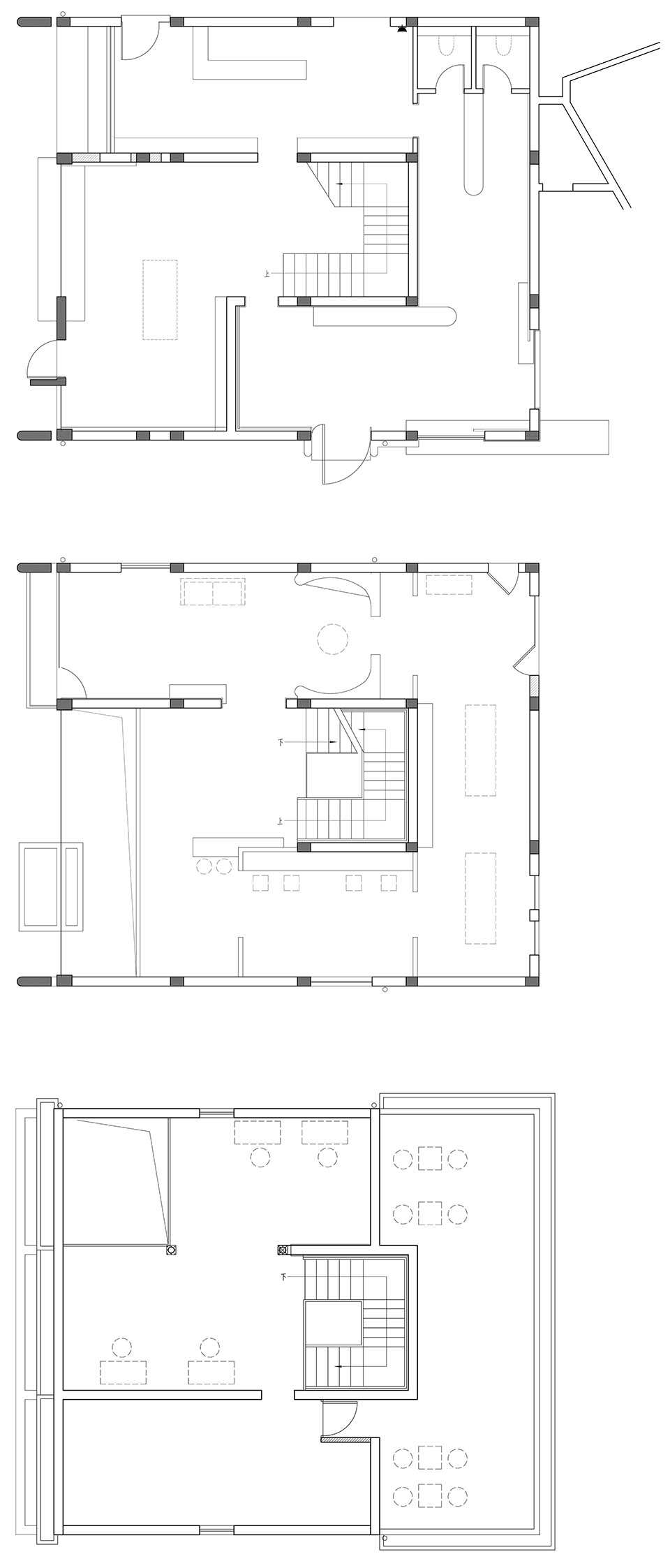
▽各层平面图©壹山设计
▽立面图©壹山设计
▽剖面图©壹山设计
项目名称:MINI 101 SPACE
设计:壹山设计
主创:朱凯
设计时间:2020.7
完工时间:2021.7
面积:570平方米(建筑面积)+ 450平方米(庭院面积)
摄影:壹山设计
施工:杭州如旺装饰有限公司
项目地址:杭州 滨江 孔家里
客服
消息
收藏
下载
最近






































