查看完整案例

收藏

下载
Café good & goody 是一个翻新项目,位于韩国金海。 以“只为平凡的生活提供美好的事物”为口号,希望它能成为您每天都想去的舒适舒适的空间。
外观采用深酒红色,醒目的颜色,以克服位于离市中心和主要道路稍远的地方的障碍。
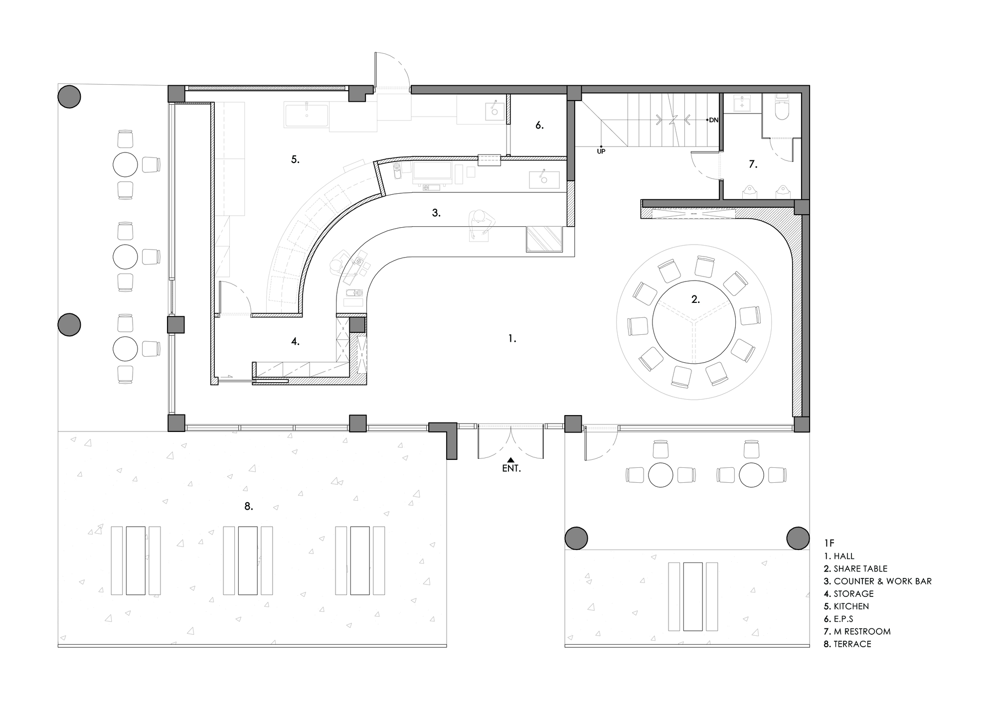
沿着深酒红色的外观从一楼的主入口进入,整体薄荷色的底座映入眼帘,似乎舒适地包裹着它的柜台和入口不远处的圆形共享桌。
考虑到客户的意见,由于早午餐咖啡馆的特点,需要一个宽敞的厨房区域,而不像一般的咖啡馆,它与柜台一起在功能上放置,赤陶砖瓷砖饰面旨在强调质量的体积 可以感受到团结感的地方。
此外,位于分享桌顶部的生产挂件和通往二层楼梯的扶手设计,与巨大体量的曲线形成了和谐的形式。
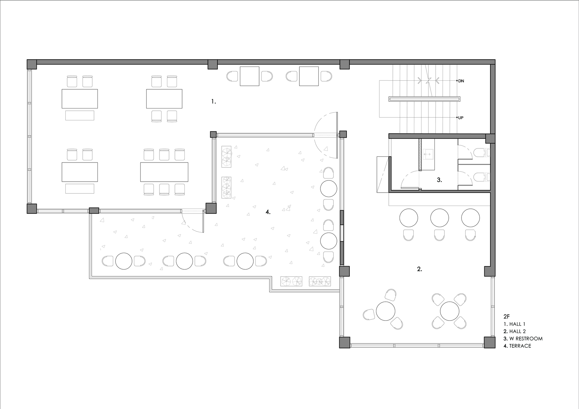
2楼的空间布局舒适,让任何人都可以舒适舒适地享用咖啡,地板采用与1楼相同的酒红色赤土砖,并涂上薄荷色涂料,因此整体设计 很和谐。
项目设计:design by 83
项目面积: 255.2501349m²
项目年份:2023
项目摄影: Dong-gyu Kim
设计团队: design by 83, Minsuk Kim, Donghyun Nam, Chanun Park, Sehyun Lee
项目建造: design by 83, Sehyun Lee
品牌:hypt design
项目成市: Gimhae-si
项目国家: South Korea
设计师:design by 83
语言:英语
客服
消息
收藏
下载
最近






















