查看完整案例

收藏

下载

翻译
Architects:Inverse Project
Area:350m²
Year:2022
Photographs:Andres Garcia Lachner
Lead Architects:Richard Hammond, Daniela Hammond
Design Team:Melissa Rodriguez, Camila Arce, Priscilla Chacon
Engineering & Consulting > Structural:S3 Ingenieros Costa Rica
Engineering & Consulting > Lighting:Illumination Strategic Design Group
Landscape Architecture:Vida Design Studio
Country:Costa Rica
Text description provided by the architects. The site is a rectangular lot right on the beachfront in the central Pacific area of Costa Rica with a very gentle slope towards the ocean. The large grove of existing coconut palms, retained as an important foreground to ocean views, is often visited by sloths and macaws.
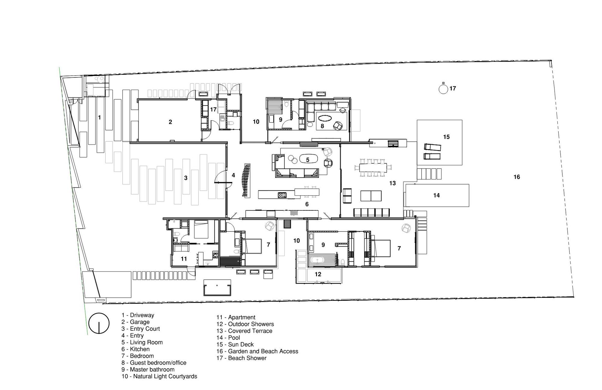
The owners sought a functional, single-level home that would flow seamlessly from the inner to the exterior. The concept of the house is a form derived from a large barn roof with north and south pitches at different levels to create a clerestory window to capture morning sunlight. It encourages natural ventilation with hot air escaping through a slot running the length of the structure. The barn roof atop two large, parallel stone walls, forms a strong axis from the front entry to the seaside. They form the enclosure of the main open living space and extend beyond the central area and reach out like arms to create two outdoor areas, the arrival courtyard on one side and the outdoor living terrace on the other.
The main entry to the home is via a tropically abundant courtyard through a large, wooden, off-center pivot door made from Guanacaste wood. Its long pull made by a local metal worker resembles a piece of driftwood typical of what can be found on beaches. A see-through, 16’ bespoke wooden sculpture designed and commissioned by Inverse using parametric software, depicts an ocean wave and partially screens the open-plan living area ahead.
All the features one would expect to find in a home of this caliber, designed to take full advantage of the Pacific coast’s mild and agreeable climate are included: a generous terrace for outdoor living, dining and barbecuing and a floor level, salt water, infinity-edge pool. This latter feature is especially hypnotic when the setting sun reflects from its surface, mirroring that of the ocean. When it is necessary to protect the dwelling from the elements, a large, wood-framed sliding door shelters indoors from outdoors.
A broad description of the home’s interior would be a substantial central space, and four spacious modules pulled away from each other to create three bedrooms and a garage/utility room. These separated volumes create garden courtyard spaces bringing ever-changing patterns of natural light and greenery into the bedrooms and living space.
The nautical theme continues into the master bedroom where the wall behind the bed is fashioned from Guanacaste wood in panels that are derived from the abstracted concentric ripples formed when raindrops land in water. The bedside hanging lamps resemble these drops of water made from hand-blown glass. The master bedroom faces directly out to the ocean with large windows that reach up to a sloped ceiling. Bathrooms have the same seamless polished concrete floors but transition to flush slatted wood in the shower areas. All bathroom lighting is indirect below floating sink counters and behind mirrors.
Large format Brazilian Gneiss stone flanks the two walls of the central living space. Floor lighting reaching the ceiling grazes the stone and accentuates the robust texture for which the stone was carefully selected. Inverse Project’s dedication to green architecture is evident on the roof as it is throughout the house. Clay tiles soften the fall of heavy downpours and carry solar hot water panels reducing reliance on grid power. All living spaces and bedrooms have large ceiling fans to encourage cooling air movement and diminish reliance on AC.
Lighting design by Ilumineisn was an important component in bringing the architecture to life with a strategy of indirect lighting. Dimmable LEDs both save energy and control ambiance. The main living space has a lighting control system that allows for a variety of light scenes to be pre-set. Motorized roll-down window shades control light and views. Floors are structural mat slabs that have been polished, bringing out the natural aggregate and with a 50% mix of white cement replicating beach-like coloring.
For interiors, Inverse worked closely with the client to create sophisticated yet calm and comfortable experiences. Colors chosen for fabrics and accents were derived from the natural surroundings. To compliment certain key areas, decorative pendants and floor lamps were chosen.
Consistent design from Architecture to Interior inverse worked closely with the owner. Living room, comfortable relaxing space to retreat indoors during a tropical rainstorm. L shape sectional Nature sofa by Camericha was the centerpiece. The coffee table inspired by the sand dollars collected on the beach is a Scighera by CASSINA with a Carrara marble top. Gubi chairs and miniforms glass side table complete the arrangement.
Landscaping was an important component of integrating the house into the site. For this, Inverse selected Vida who created a lush tropical garden using local species as much as possible. The hardscape was designed using a combination of local stones. Landscape lighting was used to create a general glow to walking areas but also to accent specific plants, palm trunks and feature walls. The garden wall facing the street was built from local volcanic rocks and then covered with lush tropical planting to create a privacy screen for the street. Once a sliding horizontal gate opens up, you enter into a tropical sanctuary and home that seems like it has always existed here.
Project gallery
客服
消息
收藏
下载
最近





















