查看完整案例

收藏

下载
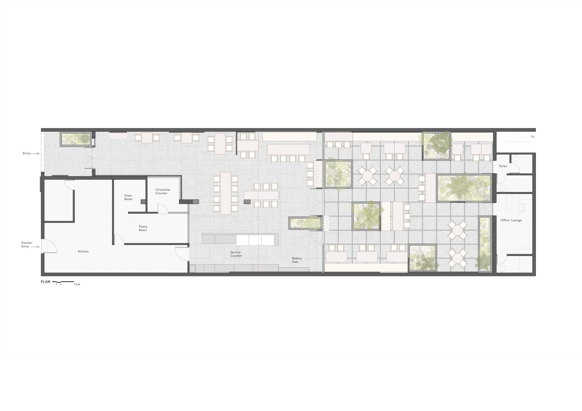
米色,这个名字,在其含义上有很多层次可以展开,设计解释来自基本的中性色调,微妙、简约和谦逊。 这家咖啡馆位于昌迪加尔 Madhya Marg 商业带的后方通道。 每个海湾都有两个区域:一个开放的天空和一个结构板。
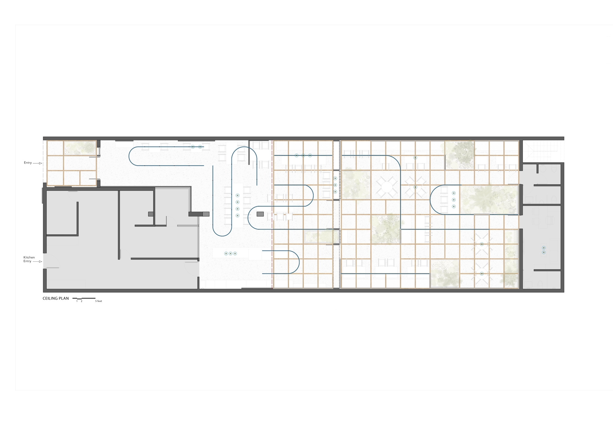
已经有意尝试将两个区域之间的视觉连续性实现为一个单一的体积。 这本书被设想成一个丛林,在那里你会走向大自然,而不是一个驯服的版本来到你身边。 日光后部是设计的核心。 这意味着大自然可以在这里茁壮成长。 木质格子天花板有助于将体积降低到一个不起眼的高度,并充当遮阳板以打破太阳刺眼的光线并为空间增添温暖的色调。 这种漫射光落在战略性放置的大型花盆床上,形成休息区。 玻璃墙将内部与“外部”采光区连接起来。
我们为室内设计保留了最小的方法——混凝土墙饰面的背景覆盖着当地瓜廖尔石材和灰色水磨石地板的纹理饰面。 定制的灯具和轻木家具补充了体积内自然的存在。 两卷的物质性延续实现了两卷之间的无缝统一。 照明遵循透明和无缝连续性的主题。 漏斗形玻璃灯是为该项目定制设计的,一个轮廓标志着光源的存在,但在体积上的阻碍最小。 一个灵活的管道灯具在空间中流动,试图通过其低调的弯曲和转弯创造一种游戏感。
桌子布局以种植床为中心,营造私密性。 此外,还计划了一张社区餐桌供客人一起用餐。 社区餐桌旁边的裸露准备柜台包括现场咖啡师站和现场巧克力柜台,可实现视觉互动。
我们在入口处设置了一个温馨的凹槽,作为热和视觉缓冲。 朴素的混凝土立面、最小的标牌、凹处的种植园和景观都暗示着与自然的联系。 整体混凝土饰面、对日光的干预和微妙的物质性将柯布西耶的现代美学融入当代简约的室内设计中。
项目设计:Arch.Lab
项目面积:3800 ft²
项目年份:2023
项目摄影:Jeevan Jyot
供应商: Gem Furnishings, Kriglow, Raybright Technologies, Viero
首席建筑师:Mohit Vij, Harsimran Singh
承包商:Alpine Interiors
规划、图纸和现场协调:Shweta Kathuria
施工图:Aarush Taneja
简介:Amanjot Singh
程序/使用/建筑功能:Café and Bakery
项目成市:Chandigarh
项目国家:India
设计师:Arch.Lab
语言:英语
客服
消息
收藏
下载
最近

























