查看完整案例

收藏

下载
Wutopia Lab 设计的上海历史博物馆满坡栗咖啡馆,于 2023 年 2 月在博物馆西楼一楼落成开放。
▽视频©CreatAR Images
咖啡,上海
上海有世界上最多的咖啡馆,你可以找到日式,韩式,美式,台式或者东南亚的咖啡馆,甚至在永康路上还可以发现一间破败但还维持骄傲的 80 年代台湾日式咖啡馆,但就是没有上海的咖啡馆。不过上海的咖啡馆历史却很悠久,张爱玲 1945 年发表在《天地》杂志上的《双声》一文,打头便讲自己同好友出门,不论干什么,最后的终点大抵找一家咖啡馆。那时的上海咖啡馆是城市中的“公共空间”,提供咖啡点心之余,它可以是舞厅,可以是会议室,也可以是图书馆,是上海的信息中心,是日常的社交场所。
“作为人 作为人 真是不错啊”
▽项目概览©CreatAR Images
咖啡,广场
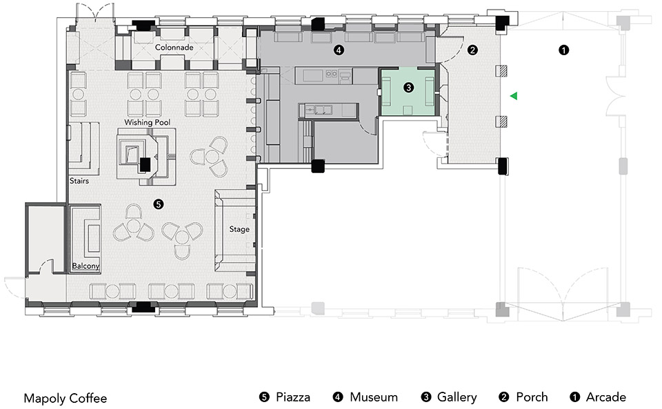
咖啡馆平面是一个刀把型。文物局要求不得改动外立面。加之西楼是原跑马厅的马厩,所以立面的窗子都是高窗而且要求都是磨砂玻璃,这造成室内采光不足同时无法把室外的风景引入室内。
▽分析图©CreatAR Images
咖啡馆被封印在西楼一楼里。我突然想,如果我把外墙内立面看成外立面,那么咖啡馆的主要空间就不是室外了吗?我把失去风景的注意力转移到室内,这样的室内室外化的处理可以解除封印。▽咖啡馆被封印在西楼一楼里©CreatAR Images
▽外立面细部©CreatAR Images
▽前厅被转化为灰空间©CreatAR Images
那么室内中心应该是啥,要知道中心还有一根巨大的柱子。最具社交性的场所在城市类型中是欧洲的小广场。我决定参考《建筑模式语言》,用各种建筑部件组合成一个抽象的广场植入西楼一楼的室内,而创造一个欢快的社交场所,一个上海的咖啡馆。
▽中心的巨大柱子©CreatAR Images
▽欧洲小广场似的社交氛围©CreatAR Images
▽中央的柱子改成带有许愿池的纪念碑©CreatAR Images
中央的柱子改成带有许愿池的纪念碑,背后刻有我的小说片段。围绕着它,有台阶,柱廊,带壁炉的舞台,作为阳台的玻璃包厢。可以有鲜花,咖啡,一点酒,爱情,八卦,宠物,脱口秀,突然一曲阿尔罕布拉宫的回忆以及即兴的探戈。喧闹,欢快以及隐藏的嫉妒。
“昨天不过是今天的回忆,明天不过是今天的梦想。”
▽许愿池©CreatAR Images
▽台阶与作为阳台的玻璃包厢©CreatAR Images
一段微型城市
顾客从黄陂南路过街楼进入,原先需要从咖啡馆和公共卫生间公用的前厅抵达咖啡馆,我们决定拆除三扇玻璃门,把前厅变成灰空间,一个呼应室内广场柱廊的外廊。由此推开大门上几步进入被称为博物馆的咖啡馆吧台区。黑色的吧台区是刀把的把手部分,服务空间占去主要面积。我们把过道变成展览区和散座。大门的一侧是用绿色手工砖打造的一个外卖等候区,同时也是一个和上海历史博物馆合作的小型画廊,你会惊喜地看到外卖咖啡会从一个暗藏的画框中递出来。
▽过道转化成展览区和散©CreatAR Images
▽绿色手工砖打造的外卖等候区©CreatAR Images
博物馆的尽头是一道不锈钢推拉门,门后是白色柱廊。柱廊地坪和博物馆一样被抬高,这样一来,高窗就变成正常尺度的窗户。从柱廊拾阶而下,就是那白色的广场。站在广场回望,黑色的吧台嵌在白色的柱廊里,我在那里给我留了一个可以躲起来喝一杯旁观广场喜剧的位子。而沿外墙的柱廊放满了低矮的沙发,那是我在伊斯坦布尔的水烟咖啡馆里的印象改写。阳光下,慵懒在柱廊里的烟雾缭绕,生活无非就是这么一些。▽白色柱廊©CreatAR Images
▽柱廊地坪和博物馆一样被抬高©CreatAR Images
满坡栗咖啡,从柱廊进入带展厅的博物馆再走到带柱廊的广场。它就是我设想的微型城市的一个片段。把它,这个 Piazza in a room 放大 100 倍,就是我理想的城市—上海。
▽由广场看柱廊©CreatAR Images
我要一点装饰▽由座位区看柱廊拱券中的黑色吧台©CreatAR Images
▽舞台区©CreatAR Images
▽座位区©CreatAR Images
装饰也来自于材料,我用黑色木材覆盖了吧台区,用白色石材覆盖了入口敞廊和广场。地面都是白色石材镶拼的弹格路地坪。石材转角包括壁龛都做了连续的折角处理。入口的地面壁龛有着蜡烛,而视线所及的壁龛其实是洞口,隐约可见绿色外卖区和背后的黑色吧台以及白色的纪念碑。这很不建筑师,但装饰从来不是罪恶,是我们需要满足自己的一点小意义。
▽由壁龛洞口可隐约看见绿色外卖区©CreatAR Images
我是一个面临危机的中年男人,我在历史博物馆里创作的这个咖啡馆满足了我一个年轻时候的愿望,让役所广司或者艾尔帕西诺可以在这里即兴跳一段探戈。
我端着香槟酒靠在台阶上有些微醺,台阶上的大门其实是个屏幕,让我的思绪能够穿越。
好朋友舞蹈家周吉天,朱丽千在广场里的探戈让我回忆起那个充满可能性又勇敢的 90 年代。
▽咖啡馆中的舞蹈场景©CreatAR Images
▽柱廊为舞台提供了优雅的背景©CreatAR Images
Shall we dance?我不会跳舞,但我想和你笨拙而放恣地一舞,纪念碑上的天花永远是晴天,无论外面刮风下雨。▽于柱廊中游走的舞者©CreatAR Images
▽由柱廊看广场中的舞者©CreatAR Images
这是我的上海。满坡栗咖啡馆可以展示日与夜交替的生活方式的城市,是我的某个上海的片段。我曾经一度失去对上海的信心,也因为在病床上挣扎而唉声叹气。可是当我推开厚重的黑色大门,那个熟悉而勇敢的上海扑面而来。嗯,上海一直活着。▽室外细部©CreatAR Images
▽平面图© Wutopia Lab
▽定制玻璃花窗图纸© Wutopia Lab
项目信息
项目名称:Piazza in a room/上海历史博物馆满坡栗咖啡馆
设计公司:Wutopia Lab
主持建筑师:俞挺
项目建筑师:孙丽然
设计团队:况舟,潘大力,高博龙(实习)
深化公司:上海呈煜空间设计有限公司
设计团队:戴云峰,郭佳女,吴晓艳,赵如意,崔销销,王彬彬,马川川,张敏敏
照明顾问:张宸露,杜雨轩
材料顾问:孙静
摄影:CreatAR Images
舞蹈:周吉天,朱丽千
业主:福德速(上海)企业发展有限公司
施工单位:万江建设
施工团队:王丽洋(施工总监),陈卫明(项目经理),吴吉顺(队长)
项目地址:中国,上海,上海历史博物馆西楼
建筑面积:170.2501349㎡
竣工时间:2022.12
客服
消息
收藏
下载
最近





































