查看完整案例

收藏

下载
ULA 咖啡厅位于科林伍德 (Collingwood) 的前约克郡啤酒厂大楼 (Yorkshire Brewery Tower),融合了新旧元素。 该设计展示了历史、现在和未来的共存,同时保留了遗产建筑的重要性和啤酒厂文化。
客户的愿景是利用原始建筑元素提供的独特机会,将遗产空间改造成社区咖啡馆。 我们的设计方法旨在创造新的手势以响应现有功能并永恒共存。 新建的形式反映了单独的门窗,桥接了内部和外部之间的联系。
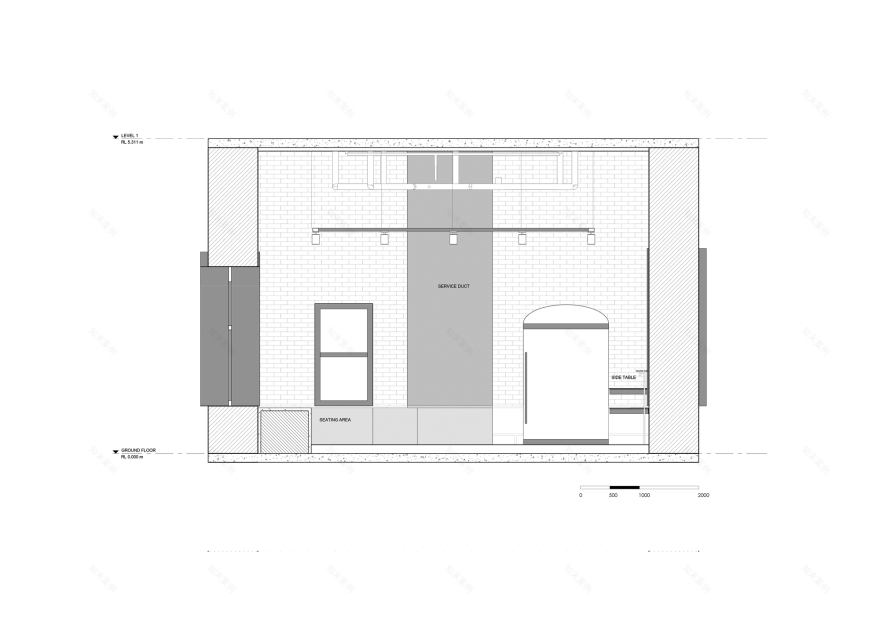
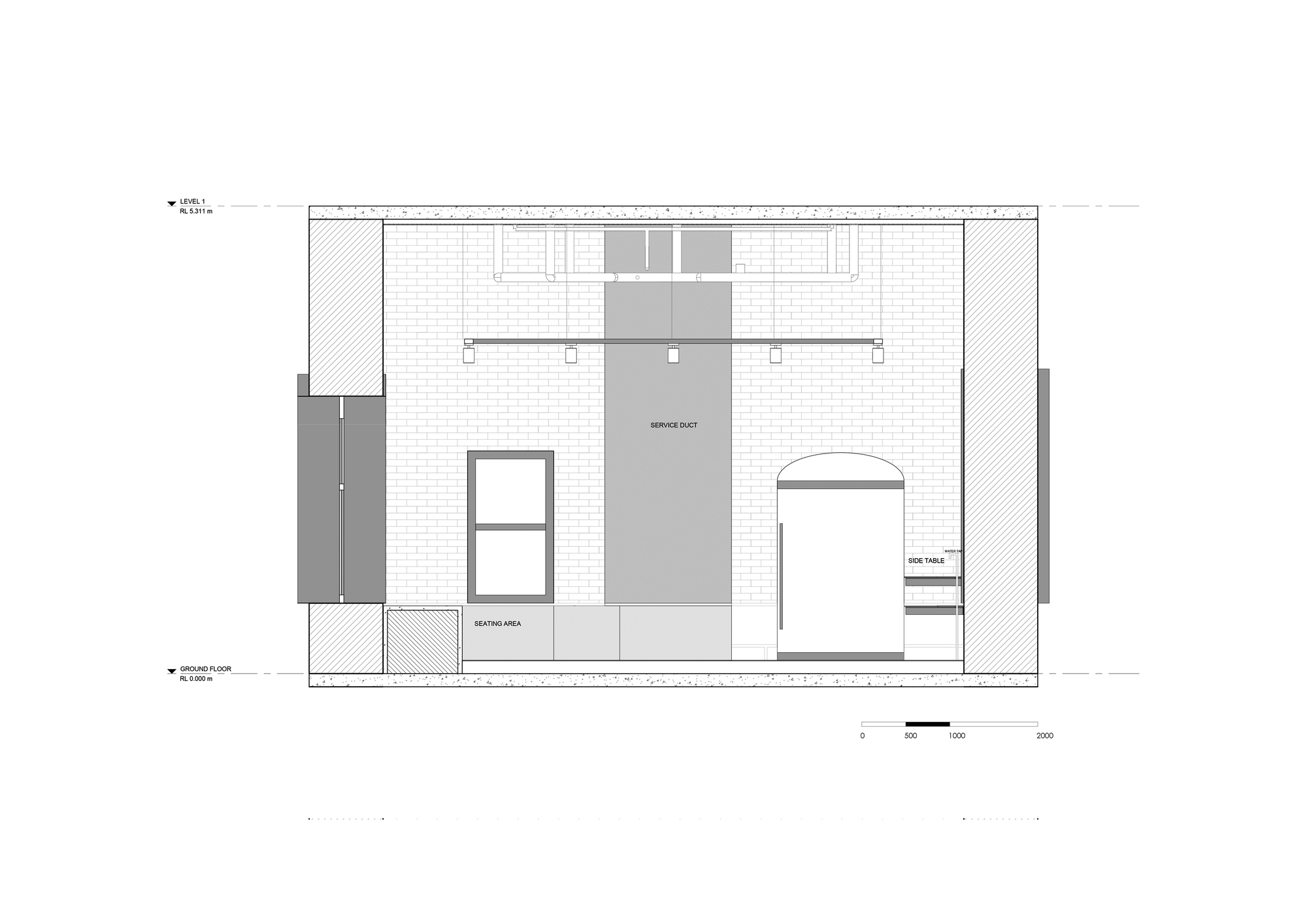
对细节的关注对于确保新元素与遗产墙及其意义无缝融合至关重要。 柜台颜色和断裂线细节延续了传统墙壁,同时因各种用途而异。 水泥打底带来坚固感并营造出永恒感,而楼板上带有高架地板的青石状瓷砖延续了外部地板饰面和传统塔基。 这种设计还在下方创造了一个缓冲空间,最大限度地减少了湿气和湿气对旧建筑结构的影响。
新的轨道照明位于原有特色钢梁的高度,为空间氛围增添了灵活性。 新的推拉门在关闭时与墙上的特色涂鸦图案相呼应,为空间提供了独特的触感。
该项目通过形式、材料、颜色和每个细节展示了历史元素与新干预措施之间的共存。 异同并存,邀请顾客参与一场跨越历史、现在和未来时间线的对话。 该项目采取了深思熟虑的方法来庆祝遗产特征和面向未来的保护和保护。 该设计表明,遗产地可以得到尊重的更新,同时保持谦逊和优雅的感觉,没有冲突或对比。 新空间与现有空间的连续性创造了与历史和未来感的更深层次联系。
处理遗产地的方法强调连续性、共存性和永恒性,而不产生冲突或对比。 这种方法在所有设计方面和规模上始终如一地实施,以确保新旧无缝集成。
项目设计:SuiL
项目面积:150.2501349m²
项目年份:2022
项目摄影:Peter Clarke Photography
供应商: Luxury Concrete, Signorino
项目建造:SGW Construction
项目团队:Jingcong Liu, Songyun Sui, Ke Chen
项目业主:ULA Café
项目成市:Collingwood
项目国家:Australia
设计师:SuiL
语言:英语
客服
消息
收藏
下载
最近



















