查看完整案例

收藏

下载
水南幼儿园位于三亚市崖州区水南村,2020 年开始设计,2023 年建成投入使用。总建筑面积 3490.79㎡,为 9 班幼儿园,地上三层框架架构(局部四层),设计以白色调、现代风格为主,融合多种设计思路,旨在为当地孩子打造一个功能性与体验性兼具,与一线城市接轨的高端成长空间。
The Shuinan Kindergarten is located in Shuinan Village, Yazhou District, Sanya City. The design will start in 2020 and be completed and put into use in 2023. With a total construction area of 3490.79 square meters, it is a nine-class kindergarten with three layers of frame structure on the ground (local four layers). The design is based on white tone and modern style, integrating a variety of design ideas, aiming to create a high-end growth space for local children with both functionality and experience, and in line with first-tier cities.
营造意境:文化传承,梦回桃源
Create artistic conception: Cultural inheritance, dream back to peach land
“珠崖风景水南村,山下人家林下门。鹦鹉巢时椰结子,鹧鸪啼处竹生孙。鱼盐家给无墟市,禾黍年登有酒樽。远客杖蔾来往熟,却疑身世在桃源。”北宋宰相卢多逊被贬流放三亚期间于水南村居住时写下了这样的诗句。
卢宰相博学多才,编著了《旧五代史》。他在水南期间积极传播文化知识,推广文化教育,深刻影响了海南地区的文化历史发展。
Pearl cliff scenery Shuinan village, under the mountain people under the forest door. A parrot’s nest is a coconut seed, and a partridge’s nest is a bamboo seed. Fish salt home to no market city, millet years have wine bottles. A stranger is familiar to each other, but he is suspected of being born in Taoyuan.” Lu Duoxun, the prime minister of the Northern Song Dynasty, wrote this poem when he lived in Shuinan Village during his exile in Sanya. Prime Minister Lu, a scholar of many talents, compiled the History of the Old Five Dynasties. During his stay in Shuinan, he actively spread cultural knowledge and promoted cultural education, which profoundly influenced the cultural and historical development of Hainan.
▼东向全景鸟瞰——桃源诗意,Panoramic east view©邹林(阿尔法摄影)
水南村是三亚市崖州区著名的古文化村落,水南幼儿园选址于近邻卢多逊历史文化研究所的位置。设计采用坡屋顶的形式回应卢多逊历史文化研究所的坡屋面,以现代语言致敬文化传播的先驱卢多逊。
千年前,卢多逊在水南播下了文化种子,施行教化,促进海南历史文化的发展。今天,在一大片杂乱的建筑群中,水南幼儿园作为一个文化教育和传播机构,如一盏明灯,照亮童心,连接千万个家庭。它既是大众心理的文化地标,又是家家户户积极参与的社区功能中心。
Shuinan Village is a famous ancient culture village in Yazhou District of Sanya City. Shuinan Kindergarten is located near the Ludosun Historical and Cultural Research Institute. The slope roof is designed to respond to the slope roof of Ludosun Historical and Cultural Research Institute and pay tribute to Ludosun, the pioneer of cultural communication, with modern language. A thousand years ago, Ludoxun sowed the seeds of culture in Shuinan, implemented education, and promoted the development of Hainan’s history and culture. Today, in a large complex of complex buildings, Shuinan Kindergarten, as a cultural education and communication institution, like a beacon, illuminates the childlike innocence and connects tens of thousands of families. It is not only a cultural landmark of mass psychology, but also a community function center actively participated by every family.
▼北望宁远河方向鸟瞰——河畔明灯,Looking towards Ningyuan River©邹林(阿尔法摄影)
从建成的效果和使用后的反映来看,该建筑不仅在城市关系、建筑体量和尺度等方面是得体和优雅的,同时,显示出它作为文化启蒙、传承机构的重要作用,它似乎在传递着一种力量,无论周遭环境如何,文化总是我们民族的“芯”,教育总是我们社会的那一方净土,是社会的桃花源,也是我们心中的桃花源。
净地藏诗意,文化焕新风。水南幼儿园传承文化,让人们回归到卢宰相诗句中“却疑身世在桃源”的美好境界。
Judging from the completed effect and the reflection after use, the building is not only appropriate and elegant in terms of urban relations, building volume and scale, but also shows its important role as an institution of cultural enlightenment and inheritance. It seems to convey a kind of power. No matter what the surrounding environment is, culture is always the “core” of our nation, and education is always the pure land of our society. It is the peach blossom source of society and the peach blossom source of our hearts. Poetry is hidden in the pure land, and culture is refreshed. Shuinan Kindergarten inherits culture, allowing people to return to the beautiful realm of “but doubting the life in Taoyuan” in the poem of Prime Minister Lu.
▼东面主入口架空灰空间与升起的二层活动平台,The east main entrance has an elevated gray space with a raised second floor activity platform©邹林(阿尔法摄影)
2 关照格局:水南肌理,融合城乡
Care pattern: Shuinan texture, integration of urban and rural areas
水南幼儿园所处区域对建筑高度、色彩等有着较严格的规定。远处城市的高楼鳞次栉比,周边环境则基本属于宅基地性质,水南幼儿园处于这样的城乡结合部位置。
它既是从乡村文化到城市文化的连接点,也是从乡村杂乱民房到城市现代化建筑的连接点。水南幼儿园的设计遵循当地对于建筑的严格规定,通过体型、色彩、高度等特色设计,在无序的空间当中寻找有序,在碎片当中形成整体,它既是一个独立的建筑,也跟周边环境互联互通,水乳交融,形成了独特的“水南肌理”。
The area where Shuinan Kindergarten is located has relatively strict regulations on building height and color. There are many tall buildings in the distant city, and the surrounding environment is basically the nature of residential land. Shuinan Kindergarten is located in such a position of urban-rural integration. It is not only the connection point from rural culture to urban culture, but also the connection point from rural chaotic houses to urban modern buildings.
The design of Shuinan Kindergarten follows the strict local regulations on architecture. Through the design of shape, color, height and other characteristics, it seeks order in the disorderly space and forms a whole in the debris. It is not only an independent building, but also interlinked with the surrounding environment, and the water blends with each other, forming a unique “Shuinan texture”.
▼西北向全景鸟瞰——水南肌理,城乡融合,Panoramic northwest view©邹林(阿尔法摄影)
水南幼儿园从方案到实施的过程中,用地边界几经变化,设计的过程就是在不停的“适应”:适应用地条件的变化、适应外部城乡融合的大格局、适应规划设计条件不断调整……
为了更好地“适应”,设计采用化整为零的策略,将功能单元、空间和尺度模块化。这一策略有效拆解了对“水南肌理”而言过于庞大的三千多平方米的建筑体量,同时单元之间的灵活组织又进一步提高了建筑群体对于不规则场地边界的适应性。
In the process from the plan to the implementation of Shuinan Kindergarten, the land boundary has changed several times, and the design process is constantly “adapting”: adapting to the changes in land conditions, adapting to the general pattern of external urban-rural integration, adapting to the planning and design conditions… In order to better “adapt”, the design adopts the strategy of breaking the whole into pieces, modularizing the functional units, spaces and scales. This strategy effectively dismantled the building volume of more than 3,000 square meters, which was too large for the “Shuinan texture”, while the flexible organization between units further improved the adaptability of the building group to irregular site boundaries.
▼西北向鸟瞰——化整为零的体量策略,Northwest aerial view©邹林(阿尔法摄影)
最终呈现的成果,谦和得体的体量不仅能够与近邻的“水南肌理”有机融合,也能与不远处蓬勃发展的新城建设积极互动对话。不仅适应了城乡融合的格局,也为城乡更进一步的有机共融,提供了一种新的思路和策略。
The final result shows that the modest and decent volume can not only organically integrate with the nearby “Shuinan texture”, but also actively interact with the booming new city construction not far away. It not only ADAPTS to the pattern of urban and rural integration, but also provides a new idea and strategy for the further organic integration of urban and rural areas.
▼西北向天际线关系——连接城乡,The relationship of the building and the northwest skyline©邹林(阿尔法摄影)
3 注重质量:创新策略,提升品质
Focus on quality: Innovation strategy, improve quality
当时,幼儿园周边建筑几乎都贴线布置,建筑之间的外部空间零碎而缺乏组织,缺乏看与被看的场所,总体外部公共空间品质不高。本着环保、便利、审美,高效利用空间提升生活品质的基本原则,水南幼儿园的设计采用“退”、“空”、“升”的创新策略,提升环境品质。
At that time, almost all the buildings around the kindergarten were arranged in line, and the external space between the buildings was fragmented and lacking of organization, and there was a lack of places to see and be seen, and the overall quality of external public space was not high. Based on the basic principles of environmental protection, convenience, aesthetics, and efficient use of space to improve the quality of life, the design of Shuinan Kindergarten adopts the innovative strategy of “retreat”, “empty” and “rise” to improve the environmental quality.
▼西北面沿街展示面,Facade along the northwest street©邹林(阿尔法摄影)
退,即建筑退离主要边界,形成更多退让的缓冲空间,营造出尺度适宜的街景环境。空,即在建筑外围布置绿化广场和活动场地,以较集中的“空”的状态与外界连接对话。升,即将建筑的公共活动平台抬升到二层,在首层入口门厅处形成巨大的架空灰空间,使外部街道空间延伸到架空的半室内,进一步减少外部空间的压迫感,而升到二层的景观活动平台,同时也是一个与外界外部公共空间对话的媒介。
Retreat, that is, the building retreats away from the main boundary, forming more buffer space for retreat, creating a suitable scale of the street scene environment. Empty, that is, green squares and activity venues are arranged outside the building to connect and talk with the outside world in a more concentrated “empty” state. To raise, the public activity platform of the building is raised to the second floor, forming a huge overhead gray space at the entrance hall of the first floor, extending the external street space to the elevated semi-interior and further reducing the sense of pressure of the external space. The landscape activity platform on the second floor is also a medium for dialogue with the external public space.
▼谦和退让的街角场景,The condescending street corner scene
©邹林(阿尔法摄影)
通过“退”、“空”、“升”的创新策略,一方面提升了幼儿园室内外活动空间场所的环境质量,另一方面,水南幼儿园与当地环境的融合,无论是远看、近观还是鸟瞰,它都是一道靓丽的风景线,它给予外部环境更多的可呼吸空间,以一己之力提升了该地区的整体环境质量。
Through the innovative strategies of “retreat”, “empty” and “rise”, on the one hand, the environmental quality of the indoor and outdoor activity space of the kindergarten is improved; on the other hand, the integration of Shuinan Kindergarten with the local environment, whether from a distance, a close view or a bird’s eye view, is a beautiful landscape, which gives the external environment more breathable space. It has single-handedly improved the overall environmental quality of the region.
▼适应水南气候的架空退让的遮阳防雨公共活动空间,The public activity space which adapts to the climate©邹林(阿尔法摄影)
▼升起来的室外活动平台空间,The raised outdoor activity platform space©邹林(阿尔法摄影)
4 创建空间:适应气候,对话自然
Create space: Adapt to the climate, dialogue with nature
水南村近海临湾,南依南山岭,北傍宁远河,全年高温多雨,日照充足,雨水丰沛,是典型的亚热带海洋性季风气候,每年 6 月到 10 月为台风季。结合其特殊的地域气候,在尽量减少能耗的前提下,幼儿园的设计既要给正常教学活动提供一个相对舒适宜人的空间环境,也要考虑降低高温、炎热、雨水过多带来的消极影响。
▼剖轴测,Axonometric section© 华工院
Shuinan Village coastal bay, south by the south mountains, north by Ningyuan River, the year is hot and rainy, sunshine, rain is abundant, is a typical subtropical Marine monsoon climate, from June to October every year for the typhoon season. Combined with its special regional climate, on the premise of minimizing energy consumption, the design of the kindergarten should not only provide a relatively comfortable and pleasant space environment for normal teaching activities, but also consider reducing the negative impact of high temperature, heat and excessive rain.
▼适应气候与呼应水南文化的建筑形式,The architectural form that adaptsto the climate and echoes the Shuinan culture©邹林(阿尔法摄影)
为此,设计从三个方面进行了创新:
第一,引入一个起拱的架空屋面平台,平台下是可以实现遮阳、通风、采光的敞开式活动空间,可全天候开展半室外教学活动;平台之上则是模仿自然山丘的户外活动空间。在高密度的“水南肌理”中引入自然要素,打造出人与自然、建筑与山海自然环境对话的平台。
第二,受限于本地区对建筑高度的严格管控和幼儿园使用功能的层高要求,设计选择了坡屋面的形式,以檐口的高度来满足规划条件对高度的管控。
第三,采用双坡屋架形式,一是呼应了近邻的卢多逊博物馆的传统坡屋面形式,二是在三层屋面形成了一个可以过滤日光的室外活动平台,了幼儿园用地紧张而活动场所不足的缺陷。镂空屋架仿佛给建筑穿起一层轻纱,使第三层建筑免于直接暴晒,减少热辐射。屋顶活动平台由于遮阳屋架的存在,而使得室外活动有了比较舒适的物理环境。
To this end, the design is innovated from three aspects: First, an elevated roof platform is introduced. Under the platform is an open activity space that can realize shading, ventilation and lighting, and can carry out semi-outdoor teaching activities all day long; Above the platform is an outdoor activity space that mimics a natural hill. Natural elements are introduced into the high-density “Shuinan texture” to create a platform for dialogue between man and nature, architecture and the natural environment of mountains and seas. Second, due to the strict control of building height in the region and the requirements of the height of the kindergarten, the design chooses the form of slope roof, and uses the height of the cornice to meet the control of the height of the planning conditions. Third, the form of double-slope roof truss is adopted, one is to echo the traditional slope roof form of the nearby Ludoson Museum, and the other is to form an outdoor activity platform that can filter sunlight on the third floor of the roof, so as to overcome the shortage of kindergarten land and insufficient activity places. The hollow roof truss seems to wear a layer of light yarn to the building, so that the third floor of the building is free from direct exposure to the sun and reduces thermal radiation. The roof activity platform provides a more comfortable physical environment for outdoor activities due to the existence of the sunshade roof truss.
▼景观视野开阔遮阳效果良好的二层屋面活动平台,Second floor roof activity platform ©邹林(阿尔法摄影)
依山傍海临湾,水南幼儿园的设计充分考虑地理、气候和人文居住的融合,形体和空间的设计服务于幼儿园特殊的教学活动,室内外空间的设计均体现其地域特色及其人与自然的融合。
Shuinan Kindergarten is built by the mountains, the sea and the bay. The design fully considers the integration of geography, climate and humanistic residence. The design of form and space serves the special teaching activities of the kindergarten, and the design of indoor and outdoor space reflects its regional characteristics and the integration of man and nature.
▼直接对话宁远河的二层屋面活动平台,Direct dialogue between the Ningyuan River and the second floor roof activity platform©邹林(阿尔法摄影)
5
感受乐园:特色空间,感受魅力
Feel the park: Characteristic space, feel the charm
水南幼儿园的设计在满足相关设计规范的同时,将更多的精力放在标准教学活动之外的公共空间的营造上。设计摒弃装饰性的元素,巧妙进行空间设计,通过特殊的结构设计形成新的空间,空间与形式互相表现,打通有形的空间与无形的想象、把人工环境与自然要素通过不同的融合方式形成一系列丰富多样的空间场所。在水南幼儿园,孩子们可以根据我们提供的线索去探索与想象,发现空间的魅力。
The design of Shuinan Kindergarten not only meets the relevant design norms, but also puts more energy on the construction of public space outside the standard teaching activities. The design abandons decorative elements, cleverly carries out space design, and forms a new space through special structural design. Space and form express each other, opening up tangible space and intangible imagination, and combining artificial environment and natural elements through different ways to form a series of rich and diverse space places. In Shuinan Kindergarten, children can explore and imagine according to the clues we provide, and discover the charm of space.
▼趣味缝隙空间,Fun gap space©邹林(阿尔法摄影)
▼童话世界般的场景,室内外一体化空间,A fairytale world scene ©邹林(阿尔法摄影)
例如,我们设置的拱起的上人屋面平台,意在让孩子们体验攀爬山坡的感受;室内楼梯支撑的剪力墙到了上部翻转成为楼梯顶棚,自然演化成一朵小花苗的形象,外部看则像是港口码头塔吊;不同单元之间的楼梯间剪力墙造型涂上各异的色彩,赋予素雅的建筑群以明确的方位感和空间识别性,让小朋友感到空间设计的艺术魅力;遮阳构件在纯色墙面或地面上留下丰富的光影,孩子们可以在光影变幻中,感受到时光流逝以及自然和建筑的对话关联……诸如此类的场景,必定会给在此学习生活的小朋友留下些许不同的印象,在他们幼小的心灵深处播种下一颗发现空间魅力、感受生活美感的种子。如若这样,营造素质教育之乐园的目的便达到了。
For example, we set up an arched roof platform to allow children to experience the feeling of climbing a mountain; The shear wall supported by the interior staircase turns over to become the top of the staircase, which naturally evolves into the image of a small seedling. Externally, it looks like a port crane. The staircase shear walls between different units are painted with different colors, giving the simple architectural complex a clear sense of orientation and spatial identification, so that children can feel the artistic charm of space design; Shading components leave a wealth of light and shadow on the solid color wall or ground, and children can feel the passage of time and the dialogue between nature and architecture in the changing light and shadow… Such scenes will certainly leave a little different impression on the children who study and live here, sowing a seed of discovering the charm of space and feeling the beauty of life in their young hearts. If so, the purpose of creating a paradise of quality education will be achieved.
▼感受空间魅力的活动场所,
A place to experience the charm of space
©邹林(阿尔法摄影)
▼人造山丘,Artificial hill©邹林(阿尔法摄影)
▼开敞通透的全天候活动场所,Open and transparent all-weather activity place©邹林(阿尔法摄影)
6
积极探索:回归建筑六式,传播建筑文化
Actively explore: Return to the six forms of architecture and spread architectural culture
笔者在拙著《建筑六式》(中国建筑工业出版社,2023 年 7 月出版)中,梳理和总结出“连续、延绵、渐变、抽象、流动、时节”这六种创作手法和技巧,水南幼儿园的设计,是建筑六式的集中体现。
In my book “Six Architectural Styles” (China Architecture Industry Press, published in July 2023), the author sorts out and summarizes the six creative techniques and skills of “continuity, extension, gradual change, abstraction, flow, and season”. The design of Shuinan Kindergarten is the concentrated embodiment of the six architectural styles.
▼抽象、流动、时节的设计,Abstraction, flow, and season©邹林(阿尔法摄影)
在这里,建成的建筑已经与更大尺度的城市空间有机融合在一起;连续的空间体验不仅创造出视觉的连续性感受,更创造出多个首层的立体感受;架空空间和屋面平台的引入,进一步模糊了室内外空间的界限,室内外环空间呈现连续延绵渐变的特征;一系列由结构构件演变而来的具有明显形式隐喻的元素(剪力墙楼梯间、重复的三角形镂空屋架等),又充分体现了现代建筑的抽象性特征;起伏延绵的屋面平台、光影丰富的遮阳构架,建构出抽象的设计意境;时节变换,空间流动,水南幼儿园据此拥有了与使用者进行沟通对话的特质和情感。
Here, the built buildings have been integrated into the larger scale urban space. Continuous space experience not only creates the sense of visual continuity, but also creates the three-dimensional feeling of multiple first layers. The introduction of overhead space and roof platform further blurred the boundary of indoor and outdoor space, and the indoor and outdoor ring space showed the characteristics of continuous gradual change. A series of elements with obvious formal metaphor evolved from structural members (shear wall stairwell, repeated triangular hollow roof truss, etc.) fully reflect the abstract characteristics of modern architecture. The undulating roof platform and the shading frame rich in light and shadow create an abstract design conception. With the change of seasons and the flow of space, Shuinan Kindergarten has the characteristics and emotions of communicating with users.
▼建筑细部,Architectural detail©邹林(阿尔法摄影)
通过回归建筑六式,水南幼儿园的设计,在城市关系、功能布局、空间营造、景观引入、建筑内涵、自然对话等方面进行了一系列有益的探索和尝试,实现向大众传播建筑文化的目的。
By returning to the six forms of architecture, the design of Shuinan Kindergarten has carried out a series of beneficial explorations and attempts in the aspects of urban relations, functional layout, space construction, landscape introduction, architectural connotation, natural dialogue, etc., so as to realize the purpose of spreading architectural culture to the public.
▼结构即形式——色彩识别及港口意向,Structure is form – color recognition and port intention©邹林(阿尔法摄影)
▼总图,General plan©华工院
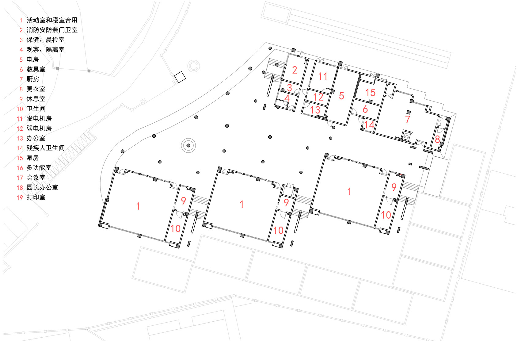
▼首层平面图,Ground floor plan ©华工院
▼二层平面图,Second floor plan©华工院
▼1-1 剖面,Section 1-1©华工院
▼2-2 剖面,Section 2-2©华工院
项目名称:三亚崖州水南幼儿园
项目类型:教育建筑
设计方:华南理工大学建筑设计研究院有限公司
设计年份:2020 年 05 月~2022 年 5 月
完成年份:2023 年 8 月
项目负责人及主创:陈文东——华南理工大学建筑设计研究院有限公司二院副院长,建筑学博士(师从何镜堂院士,2008 年博士毕业),高级工程师,硕导,主攻城市大型公共建筑、医疗建筑、校园规划及其建筑设计等,2023 年出版专著《建筑六式》,中国建筑工业出版社,2024 天河体育中心花市牌楼主创
主创设计单位:华南理工大学建筑设计研究院有限公司
初步设计:广东名都设计有限公司
施工图设计:海南省设计研究院有限公司
华南理工大学建筑设计研究院有限公司
建筑:陈文东、陈承邦、刘洪文、申沁竹、翁鑫威、黎荣欣、董春江;结构:陈小锋、林俊生;暖通:黄璞洁、许伊那、何耀炳、吴子豪;给排水:李雄华;电气:杨翔云、张邦图、周嘉欣;绿建:许伊那、黄璞洁、张欣欣
广东名都设计有限公司团队
建筑:张劲松;结构:曾伶彬;水暖电:陈宏亮
海南省设计研究院有限公司团队
项目负责:黄劲;建筑:陈瑜;结构:陈贞均;暖通:黄丽敏;给排水专业:郑博;电气专业:张辰;绿建专业:马广超
项目地址:三亚崖州水南镇
用地面积:5288.6 平方米
建筑面积:3490.79 平方米
摄影版权:邹林(阿尔法摄影)
业主方:三亚市崖州区教育局、三亚市崖州区城市投资建设有限公司
施工方:广州飞升创展管理有限公司
文稿润色:高慧、姚兰
Land area: 5288.6 square meters
Building area: 3490.79 square meters
Copyright: Zou Lin (Alpha Photography)
Owner: Sanya Yazhou District Education Bureau, Sanya Yazhou District Urban Investment and Construction Co., LTD
Construction: Guangzhou Feisheng Creative Exhibition Management Co., LTD
Manuscript editing: Gao Hui, Yao LAN
客服
消息
收藏
下载
最近





























