查看完整案例

收藏

下载
兆兆茶苑是一栋40年加强砖造的老房子,位处一幽静小巷弄内。业主的父亲为烘茶师,经营传统茶行,因此从小浸淫于台湾茶工作中,至今累积了30余年经验,希望能将台湾茶的好,以不同的方式让更多人及更多的族群了解,因此萌发了开设一处茶空间,让对台湾茶有兴趣的人可以自在品茗的想法,希望将台湾茶业文化深化。
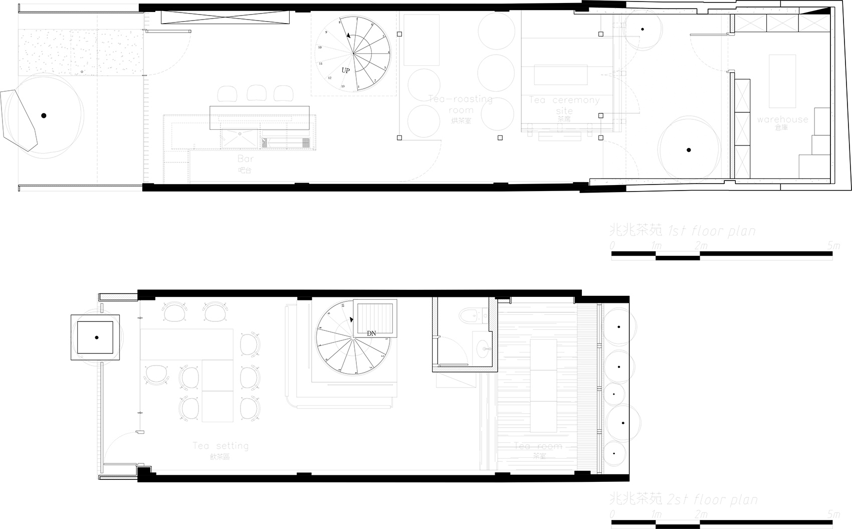
考量到这座茶苑的设立初心,我们提出了将烘茶空间设计在一楼,让来客在街上行经时便能闻到淡淡茶香,入门后亲眼见到师傅焙茶与制茶的过程,烘茶时满室茶香与炭焙味,我们在烘茶区旁设置一处茶席,并将原本封闭的后院打开,前后院均植树绿化,期待在空间中犹如处于台湾山间,砌一壶茶,放松身心。我们也希望能够带给品茶客人不只是视觉上的美学,也期盼能在这个空间中经验到味觉、触觉、视觉、嗅觉甚至听觉的五感美好体验。
变动、流动
此空间的设计主轴建立在“变动”上,来自于在山中茶区的体验及自然观察的经验。山中的景色会不断的变化,云、雾、光影、花草树木的颜色与姿态,环境的缓变与纯粹,置身其中,反而给予人一份宁静且丰富的感受。因此我们在老旧墙面上以“磨”、“凿”、“敲”等手工工法制造出各种接近自然状态的不同质感:斑驳的、凹凸不平的、孔隙丰富的各种不同质感,同时保留了老屋因为岁月留下的斑驳质感,呈现出视觉、触觉丰富的表面,搭配大面开窗引进阳光与空气,光线与气流打在不同质感的墙面上,呈现“会变动”质感与感受,借此向自然致意,也呈现老屋最自然不加装饰的“裸空间”本质质感。
过多的材料与装饰反而会干扰空间的视觉与质感,模糊空间本质,因此在以“自由自在的静心品茶”的这个前提下,我们以“陋室”为整体氛围与质感的主题,体现“品茶,不拘泥形式,心静即可”的概念。将所有的材料以不刻意雕琢的状态下呈现,选用我们在地容易取得、亲民、自然得材料来表现空间。
透明、穿透
透明感是我们在此案另一个重要的设定,运用大面开窗、天井引进阳光与空气,让光的粒子随着气流轻拂在不同质感的墙面上,呈现安稳又丰富的室内风景。我们希望将可视的“透明感”将光线与景观带入室内,因此运用程度不同的透明材料来表现空间,例如雷射切割的洞洞板、纱帘、玻璃等等。借以模糊我们与外部自然院落的界线并重新连结,将空间作为我们看待自然的方式与延伸,即使居于室内空间也能感受到阳光或是透过树影的摇曳见到风的流动。
此间最大的硬体改造在于楼梯的形式,原始楼梯为混凝土折梯,但由于原始楼梯遮蔽过多的视线影响上述的透明感,我们希望引天光入室,因此在三楼顶开了一处天井,在这样的前提下,一座具备通透感与姿态的旋梯是最适合的设计,旋梯的姿态如同大树,搭配像彩带一样的洞洞板,让楼梯能转化为空间中向上飞舞的优美造型。
另外,在户外选用“烧杉”作为主要建材的用意也是搭配”碳焙”的主题,让“烧”这个感受能够延伸并联想到茶叶,因为大部分的茶叶都与“火”有关系,烧杉能够呈现原始东方建筑文化处理实木干燥的质感,时常运用在东方传统建筑中,非常适合茶空间,因此选其为主要外饰材料。
“陋室”
茶的文化在台湾深入生活,俯拾即是,它是待客之道、也是自身静心的途径、更是团聚的一种方式。希望借由我们设计的茶空间能够强调这样的台湾茶文化而非高不可攀,“砌一壶茶,以此净心”是我们的对此空间的中心思想,虽不到“斯是陋室,惟吾德馨”的程度,但希望呈现身居陋室却自得其乐的美感与美学。
静心与当下
“静心、当下”的空间是我心中属意的台湾茶屋型态。喝茶与泡茶是体验自然的一种方式,茶叶来自大自然,也因此在享受砌茶的过程中,应要能够体验到“自然”。也因此如何自然的呈现空间本质则是设计茶屋时最重要的一环。上述的“陋室”则是我认为最贴近台湾茶的精神与文化,不是强调在“不贵”,而是即使身居陋室,怡然自得的喝茶文化。让喝茶是静心、是交流,是一种不刻意的生活方式与文化,并且俯拾即是。
这样的初衷不仅成为空间设计的重要关键概念,也是我们为“兆兆茶苑”所设定的品牌精神,借着演绎台湾茶文化,转换为实体空间、整体氛围及品牌价值,这些皆是近距离观察茶人、烘茶师傅以及从小浸淫于茶文化中的心得。借此,我们希望让台湾好客、自然及不刻意的茶文化透过空间设计及品牌价值的设定,能够散发独特专属的韵味。
设计师:Soar design studio / Yu Jui Chang
客户:Zhao Zhao tea lounge
位置:No. 22, Aly. 66, Ln. 79, Sec. 1, Xiangshang Rd., West Dist., Taichung City 403, Taiwan, China
建筑面积:132 m2
完成日期:2019.08.08.
摄影:Hey! Cheese
客服
消息
收藏
下载
最近









































































