查看完整案例

收藏

下载
咖啡馆, 郑州, 中国
建筑设计:王冲工作室
面积:300 .2501349m²
项目年份:2021
摄影师: 朱雨蒙
主创设计师:王冲
钢结构设计:贺尚青,王冲
技术咨询:张东光
策划:魏子帧
施工方:河南姝羽轩装饰工程有限公司
City:郑州
Country:中国
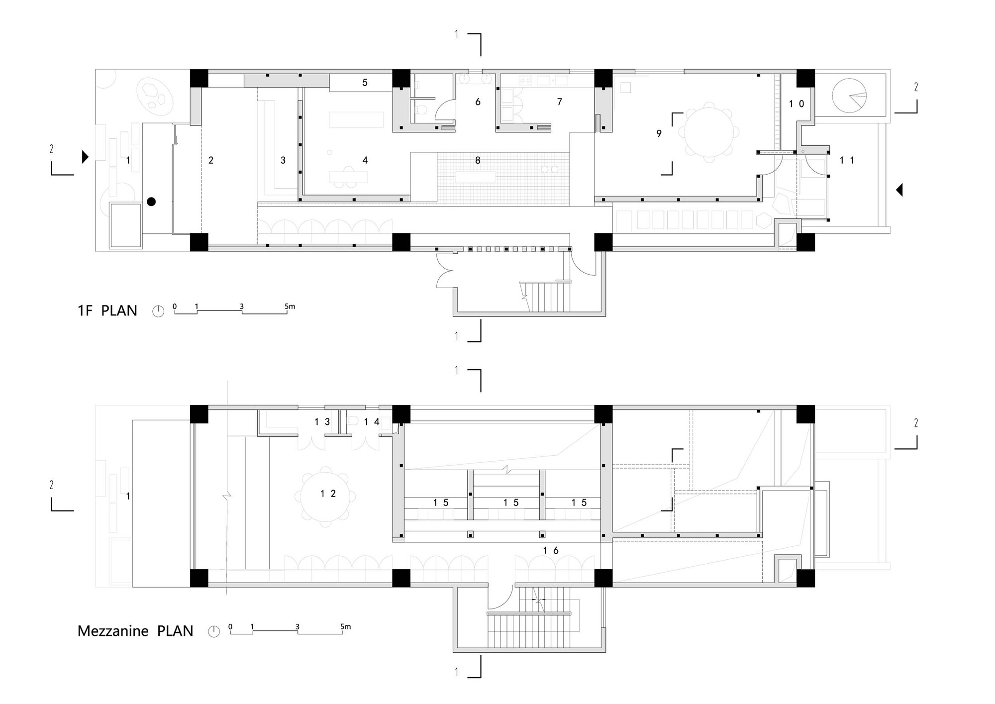
在郑州东区的闹市之中,这是一处写字楼的裙房。平面有8米宽,31米长,长宽比接近4:1。出于建筑从业者的职业习惯,一个问题不由蹦出,过长的进深造成中部空间采光不足。但这次我们要做个茶室,内含餐台和各式茶座若干,如此以来,狭长的平面反倒是带来了灵感,为何不利用这种阴翳之美?
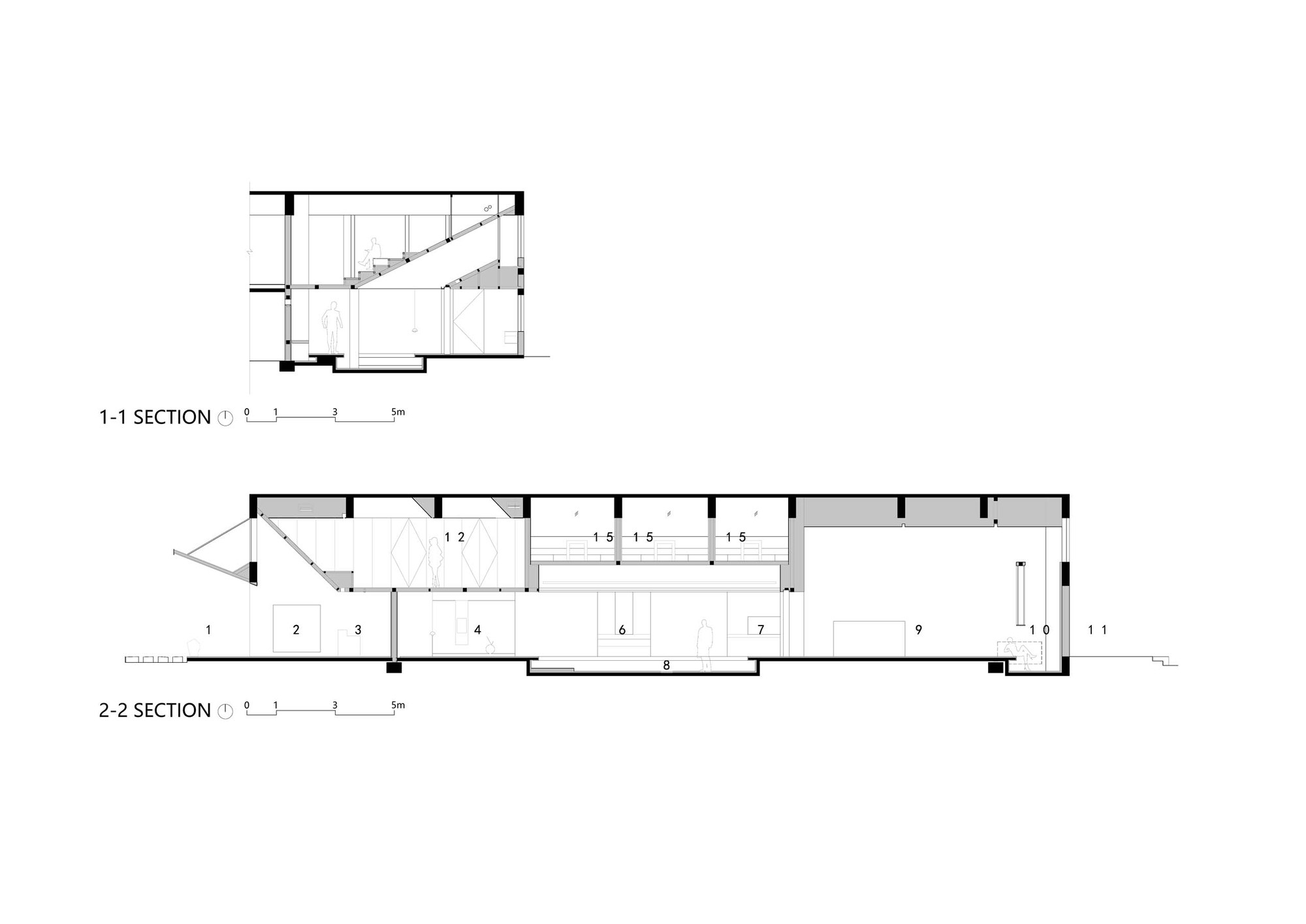
阴翳的中庭:静谧与力量
《阴翳礼赞》中有着对东方暗空间的精彩描述,相对于透亮明净的西式空间,模糊、暧昧、非直射光线的、阴影中的空间让人沉醉,自闹市而来,瞬间步入一个让人安静下来的空间,这正是此间茶室希冀的愿景。
我们发现,真正的安静并非死寂无声,“蝉噪林逾静,鸟鸣山更幽”;“暖日当暄,又添蛩语”,适度的自然动感让人更好地体会宁静,这样的诗语也转化于东瀛茶室的空间构成之中,它不开窗看景,以保持道场的会神,但在封闭的小盒子里,光线却故意从高窗缝隙中溜入,在侘寂的墙壁上洒下光斑树影,隐约的鸟语虫鸣更强化了“致广大”的玄奥之感。
于是我们决定在侧墙上开一扇宽大的长条高窗,并“附庸风雅”地将其类比于长谷川等伯的《松竹图》,竹在窗后随风摆动,让人晤见高墙后的“自然”。尽管说出来有些扫兴,实际上这是一处“虚构捏造”的风景,以遮盖新风和油烟风管,摆动的竹子也全凭蓝牙按键调风。
作为“画框”的则是黝黑的斜面洞口,光线顺势而下,投射在庭院的地面上,如果说摇曳婆娑的竹如同冷艳的笛声,那么粗粝的地面石块则像是狂放的太鼓,柔美与力量碰撞,在脚下泛起光泽,微光似乎缺乏变化,但却简洁有力,像是生命底层的原始呐喊,把人带入祭祀、庆典、战争的仪式场景之中……
通幽的步道:过渡与对比
狭长的房屋进深又让人联想到里弄,这种空间类型并非只存在于烟雨江南,尽管在城市化进程中几不可见,但中原的古城古村深处也曾有着这样自然生动的肌理(比如沁阳北大寺聚居区和归德古城内被拆除的滨河聚居区)。我们既然在房屋中部引入了下沉的阴翳庭院,和高窗的一道渲染“自然”,形成充满仪式感的精神空间。那么“豁然开朗”前的过渡则至关重要,既不能过于直白的开门见山,也不要闷不做声的沉默寡言。
为了充分利用光线,东西两侧的房间,与中庭形成对比。如此以来,使浓淡干湿取得平衡的应是黑白之间的“灰”,于是我们塑造了两条通幽的步道,随之步入,光线越发幽暗,眼睛和脚步带着好奇,慢慢寻觅。序曲之后终迎高潮,抬头忽见婆娑竹影,身处“深山秘境”,脚下 “流水潺潺”,何不落座、品茶、就餐?
在这一过程中,室内的光线从明亮过渡到熹微,进而步入幽暗的精神世界,阴翳中的光线通过磨砂玻璃弥散,头顶的灰泥屋顶更强化了宁静之感,茶盏、烛光和漆器似乎注定与此空间为伴……起承转合的空间韵律通过黑白色彩得以强化;摇曳婆娑的竹影通过浓淡光线得以生发。既然竹影婆娑,里弄通幽,我们干脆就称其为“婆娑里”吧……
偷光的风景:流动与静止
我们希望为这间茶室融入自然印记,给人带来情感触动和记忆联想。阳光斑迹让人想到流动的时光,而过滤后的模糊光线则寓意静止,它们赋予了景物不同的感受。
项目完工照片 | Finished Photos
设计师:王冲工作室
语言:简体中文
翻译:Archdaily
客服
消息
收藏
下载
最近



































