查看完整案例

收藏

下载
远离城市的建筑往往意味着要在通讯和运行上花费一些功夫,包括交通、资源型经济以及切实可行的建造方法。这些全都与时间有关,因为时间造就了建筑,它为建筑和材料赋予了形式和实际的意义。
Projects located far from the city entail an effort of communication and execution divided into transport, resource economy and available constructive means. All through time. Because in reality, time is what makes the projects, and after all, gives form and consciousness to them and to the materials.
▼建筑位于墨西哥北部的偏远乡村,the house is immersed in a rural zone of northern México
▼建筑外观,exterior view
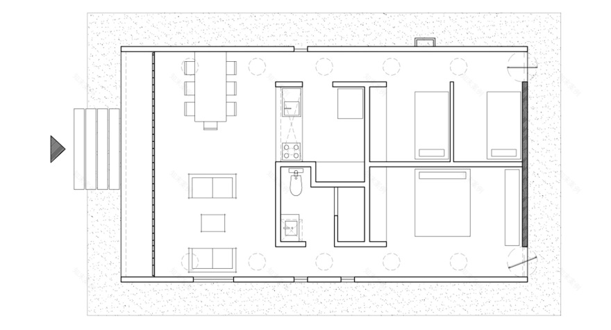
该项目耗费了很长时间才得以完工。一方面因为建筑位于墨西哥北部的偏远乡村,另一方面则是因为紧缩的预算。这座体量不大的住宅包含一个公共区域以及三间小卧室,中央的功能核心筒起到分隔的作用,同时为住宅两侧带来独立的通向卧室的走廊。这些走廊将居住者从公共区域逐渐引向私人空间,其顶部设有由工业废料制成的管型天窗,为室内带来照明。公共区域作为补充性的空间,可以完全地开放于周围的环境。
This project took a long time to complete. In part due to its location, immersed in a rural zone of northern México. In part also due of its very short budget. The house is posed as a small block containing a social area and three small bedrooms, separated by a central service block, creating lateral independent access hallways to the bedrooms. These hallways gradually allow to observe towards the environment while walking from the public space to the private compound, and are lighted by tubular skylights made of industrial tubular residue. As a complement, the social area can be completely open towards the landscape.
▼钢筋混凝土墙呼应着周围的山地环境,the reinforced concrete walls dialogue with the nearby mountains
▼细部,detail
建筑师一开始为住宅打造了数座钢筋混凝土墙,因其材料性能够呼应周围的山地环境。但由于预算方面的问题,住宅的外墙最终以颜色较深的煤灰砖铺设。这样一来,建筑的一面墙壁呼应着近处清朗的山体,另一面则映衬着远处更幽深的山景。
In a first stage, construction of the house began with reinforced concrete walls, due to the very close dialogue that the material achieved with the nearby mountains. However, because of budget related issues, the house was finished years later with cinder blocks, which are darker. This way, one side of the house relates to the more clear nearby mountains, while the other, with the faraway darker mountains.
▼建筑的一面外墙以颜色较深的煤灰砖铺设,the house was finished years later with cinder blocks
▼建筑最终呈现出一种融合的物质性,the resulting materiality is thus a collaboration between different sets of workers
住宅有着十分粗犷的外观,这些用料完全由当地的工人制作,和当地其他乡村住宅使用的材料无甚差别。该项目的主要目的在于用一种有条不紊的干预方式来保证建筑结构部件的稳定性。建筑最终呈现出一种融合的物质性:住宅的平台、混凝土墙、煤灰砖墙和饰面分别由不同的工人在不同的时间完成。
The construction presents a brutal appearance in its elements, made by local workforce, very rural, like the one used in the rural houses of the region. Without any other pretension than to guarantee the stability of the structural elements in an orderly manner order and modulation serve as the main tools to achieve the architecture of the project. The resulting materiality is thus a collaboration between different sets of workers, who summed up the manufacture of each part: platform, concrete walls, cinder block walls and covering. All these constructive parts made at different times.
▼室内空间,interior
▼餐厅,dining area
▼煤灰砖墙细部,detail of the cinder blocks
▼工业废料制成的管型天窗,为室内带来照明,skylights made of industrial tubular residue
门窗和通往屋顶的楼梯所运用的合金材料均回收自其他的旧建筑,这使建筑融合了不同的材料与建造系统,从而拥有了不同的来自时间与人的内涵。而这也正是住宅名称的由来。
Also from different projects: the iron used to make doors, windows and the staircase to go to the roof are metallic elements that were reused from other utilitarian structures. The resulting volume is thus a mixture of materials, constructive systems, times and people. It’s this where the house takes its name from.
▼金属门窗细部,window detail
▼模型,model
▼平面图,floor plan
▼结构平面图,structure plan
▼立面图,elevations
客服
消息
收藏
下载
最近






















