查看完整案例


收藏

下载

翻译
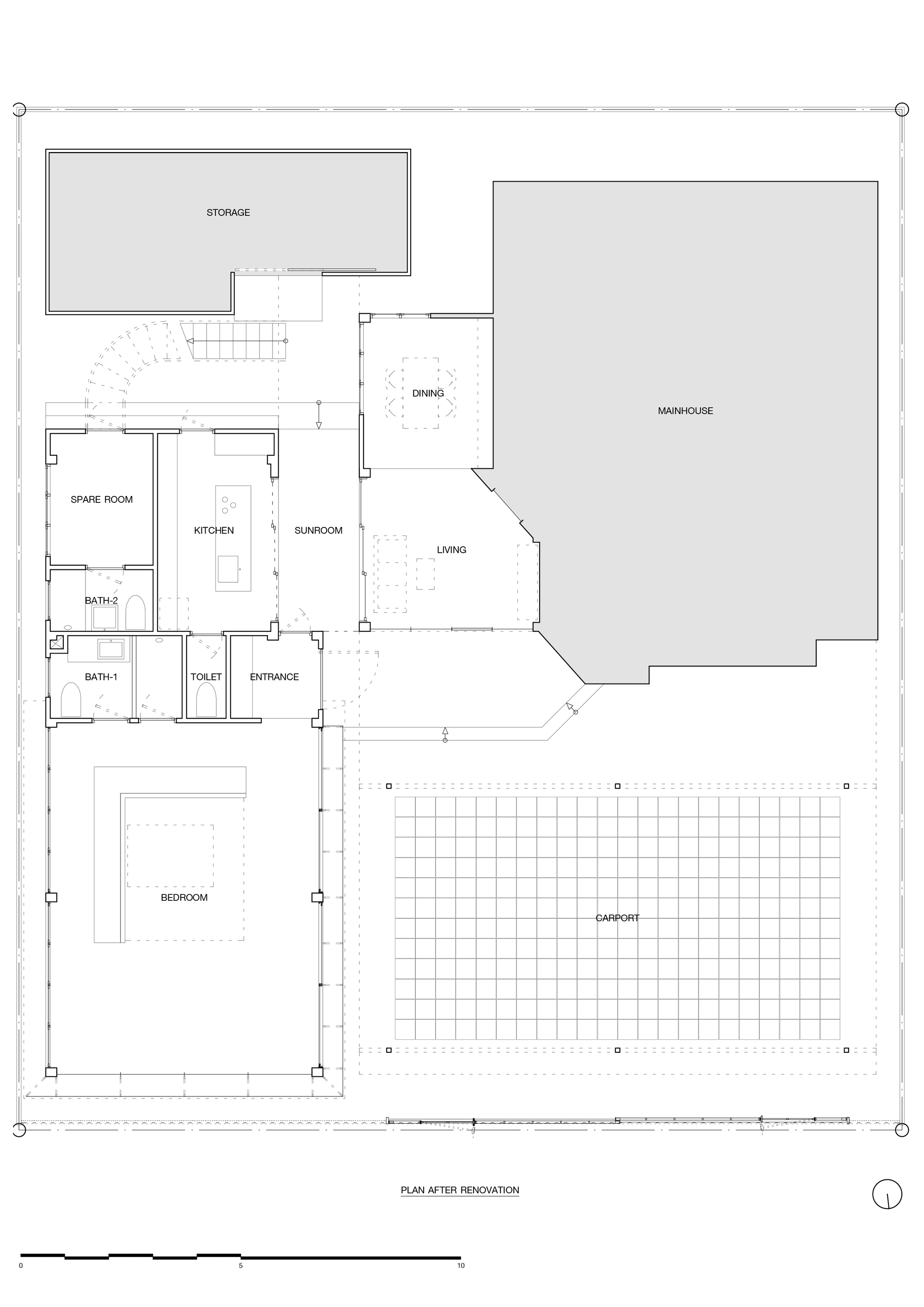
This is a house for five-members, two-generations family, located in a popular residential area in Bangkok. The existing house was divided into two buildings completely separated from each other. One is a two-storey reinforced concrete building, as a main-house. And another is another two-storey reinforced concrete.
In this renovation plan, we converted some parts of the main-house and sub-house into a dwelling environment based on the simplest possibility. We took three spaces - multi-purpose room of the main-house, indoor-courtyard in between the main and the sub-house, spare room of sub-house – and make the environment of those rooms to become as similar as possible. From that idea, we balanced two-separate spaces, LDK, by creating the condition of the middle court, as a sun alley, and encouraging the residents to use these spaces in different ways.
The existing carport was demolished. The new roof was replaced and attached to the roof level of the second-floor of the main-house, extended the possible use of the space for various activities. By using transparent materials, this multipurpose area is connected habitants to the joy of the city.
Sub-house bedroom has been doubled its walls with translucent panels attached to a wooden frame to create privacy while still allowing light to get through. When open, those walls will perform as the awning-windows connecting to outside. In the room, space was zoned by L-shape partition, make it flexible for any possibility in the future.
客服
消息
收藏
下载
最近

























