查看完整案例


收藏

下载
Gon-Gar是一家农业机械维修公司,该项目旨在对其空间进行扩建和重置,包括两栋工业建筑以及业主本人的住宅。该综合体已经在Benissanet的城区中心存在了约50年——一座位于Ebre河右岸下游地带、以农业生产为主的、仅有1200位居民的小城。
The project to expand and rehabilitate the Gon-Gar Workshop involves the reorganization of an organically growing industrial cluster consisting of two industrial buildings and the owners’home, which make up this agricultural machinery repair company. The complex has been located for almost 50 years in the centre of the compact urban area of Benissanet, a small, essentially rural and agricultural town of barely 1,200 inhabitants, located on the right bank of the lower River Ebre.
▼建筑外观,exterior view
▼位于场地转角处的南向和东向立面被赋予了新的面貌,the project gives form to the new urban front of the cluster with the definition of a new corner façade perimeter facing south and east
项目将一栋废弃的仓库改建为办公楼(建筑B2),并在其旁边新建了一座拥有开放平面的工业建筑,作为机械车间和展厅使用(建筑B3)。通过将办公空间置于综合体的中心位置并建造新的车间,建筑的内部空间被赋予了连贯性,工人们的工作环境也得到了改善。最终建筑总面积达到了 2,610平方米,较原先增加了938平方米。从城市规划的角度看,旧仓库的重生和新工厂的诞生使这座三层的、每隔五米便形成一个尖顶的连栋房屋充分融入了其所在的环境。位于场地转角处的南向和东向立面被赋予了新的面貌,在呼应室内空间特征及功能的同时也与城市景观融为一体。
The project consists of the conversion of an abandoned pre-existing warehouse into an office building (Building B2), and the construction of a new open-plan industrial building attached to the former, which will be used as a mechanical workshop and exhibition area (Building B3). The relocation of the offices in the centre of the cluster and the construction of the new workshop has made it possible to multiply the internal connectivity of the complex and improve the quality of working life of its workers, increasing the surface area by 938m², creating a total of 2,610m². In town planning terms, the recovery of the pre-existing warehouse and the construction of the new industrial workshop blend the complex into the surroundings, consisting mainly of three-storey terraced houses with a gable roofs constructed rhythmically every 5 m. The project gives form to the new urban front of the cluster with the definition of a new corner façade perimeter facing south and east that responds to the needs and characteristics of its interior space and, at the same time, to its integration and adaptation to the urban landscape.
▼建筑立面在呼应室内空间特征及功能的同时与城市景观融为一体,the new facade responds to the needs and characteristics of its interior space and, at the same time, to its integration and adaptation to the urban landscape
▼立面细部,detail
项目中的两栋建筑采用了截然不同的介入手法。旧仓库的改造根据既有建筑的特征采用了一些具体而有针对性的措施,例如构建了新的双层高空间;为改善采光和空间品质而增加了新的窗户和天窗;同时还打造了轻盈的木制结构作为私人办公空间和起居空间。所有的拆除、装饰和置入都是在维护建筑原始面貌的前提下进行。
The project is thus conceived as a double intervention with very different characteristics. The transformation of the old warehouse is implemented through various specific actions that interrelate with the pre-existing features, such as the formation of a new double space, the opening of new windows and new skylights to improve the lighting and spatial conditions of the building, and the construction of lightweight wooden structures to define private offices and furniture. Emptying, trimming and inserting while trying to preserve the essence of the original construction.
▼旧仓库的改造在维护建筑原始面貌的前提下进行,the transformation of the old warehouse was based on the aim to preserve the essence of the original construction
▼旧仓库中构建了新的双层高空间,a new double space
▼为改善采光和空间品质增加了新的窗户和天窗,the opening of new windows and new skylights improve the lighting and spatial conditions of the building
▼交通空间,circulation area
另一方面,新的车间是一座面积为625平方米的开放式体量,由轻型的钢架结构提供支撑,充分适应了梯形场地的边界。屋顶的结构框架中还包含了一系列朝北的三角形天窗,为室内空间带来自然光照。室内轻盈的质感与建筑厚重且融于周围环境的外观形成了反差。
On the other hand, the new workshop is conceived as a newly constructed 625m² open-plan building adapted to the limits of its trapezoidal plot by means of a lightweight steel structure supported by perimeter pillars. The structural framework that supports the roof incorporates a series of north-facing triangular skylights to illuminate the interior space in a natural way. The feeling of lightness of the interior space of the building contrasts with a more emphatic and contextualized exterior intended to blend with the surroundings.
▼新的车间是一座开放式体量,the new workshop is conceived as a newly constructed open-plan building
▼建筑由轻型的钢架结构提供支撑,the new building has a lightweight steel structure supported by perimeter pillars
▼屋顶的结构框架中包含一系列朝北的三角形天窗,the structural framework that supports the roof incorporates a series of north-facing triangular skylights
尽管两座建筑各有不同,该项目依然着重研究了两座体量之间、以及它们与既有元素及城市景观之间的连续且一致的对话关系。首先,新车间的主体结构延续了既有建筑的主轴线。旧建筑的朝向和空间秩序均得到了保留,使两座建筑形成连接,同时顺应了梯形场地的斜边,使主立面的结构剖面几何自然而然地产生变化。与此同时,建筑师在两座体量的首层建立了新的连接路径,使机器和产品能够在综合体中便捷地运输。车间的二层置入了由层压木材建造的阁楼,作为公司的新会议室。会议室正对着既有建筑的双层高空间,该空间连接了两座建筑,是整个综合体中最具特色的场所,可以通过一扇巨大的窗户从街道上望见。
Despite being two very different pieces, each with its own character, one of the keys of the project has been the search for continuity, dialogue and consistency between the two constructions and their relationship with the pre-existing elements and the urban landscape. In the first place, the main structure of the new workshop has been designed following the main axes of the existing building structure. The preservation of the orientation and module of the structure of the old building orders and links the two buildings and at the same time allows the oblique side of the trapezium to be resolved in the same way, absorbing the geometric deformation in the structural section of the main façade. Meanwhile, the two buildings are functionally connected inside on the ground floor thanks to the opening of new connections in strategic places that allow the transit of machinery and products between the different buildings in the complex. At the same time, at the first floor level, the new workshop incorporates an attic built with laminated wood that houses the company’s new meeting room. This room, which contrasts with the emptying of the double space of the existing building from where it is accessible on the first floor, merges the two buildings and is visible from the outside through a large window that illuminates one of the most representative spaces in the complex and is intended to link the two buildings volumetrically.
▼会议室,meeting room
通过对当地传统住宅建筑的几何形态以及构成规范的重新阐释,该项目使新的车间与既有的仓库以及周边环境形成了十分必要的联结。屋顶斜坡和立面轮廓的节奏感、建筑的尺度、位置、间隔空间的协调分布,以及部分以灰泥覆盖的黏土保温墙的肌理,共同将面积约为20×30平方米的新增立面融入了既有的城市形态之中。
Finally, the reinterpretation of the traditional geometric and compositional rules of Benissanet’s residential urban fabric makes it possible to integrate and establish the necessary urban continuity between the new workshop, the existing warehouse and the surroundings. The dimensions of the structural bays, the rhythm of the slopes of the roof and the profile of the side façade, the size, location, and proportion of the gaps, and the textural treatment of the thermo-clay walls partially covered with mortar intend to modulate, defragment, and integrate the new volume of approximately 20x30m of façade in the existing urban morphology.
▼夜景,night view
▼模型,model
▼轴测图,axon
▼场地平面图,site plan
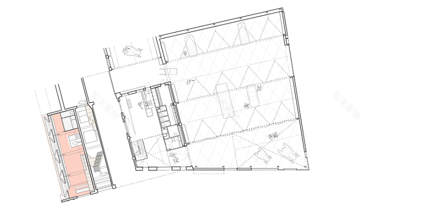
▼首层平面图,plan level 0
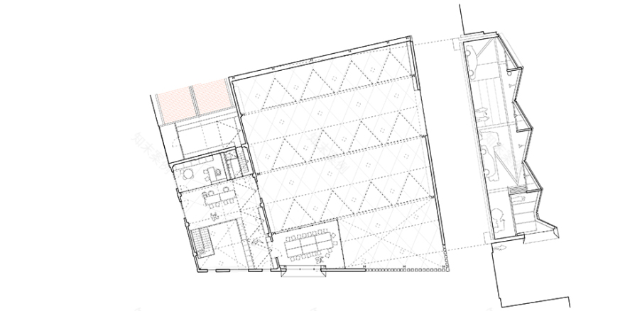
▼二层平面图,plan level 1
▼顶层平面图,roof plan
▼平面+剖面,plan + section
▼屋顶平面+立面,roof plan + facades
▼剖面图,section
Architects: NUA arquitectures (Ferran Tiñena, Arnau Tiñena, Maria Rius). Technical architect: Teresa Arnal. Structural calculation: Windmill Structural Consultants SLP. Construction company: Germans Llarch SL. Structure: Maifersa SL. Joinery: DM Espai Fusta SL Electricity: Electricitat Sarroca SL HVAC: Climartí SL Location: Benissanet, Tarragona. Area: 938m² Budget: €454/m² Photographs: Adrià Goula
客服
消息
收藏
下载
最近


































