查看完整案例


收藏

下载

翻译
Nestled in the grassy dunes of Amagansett, on the eastern end of Long Island, this house, designed by 1100 Architect, provides a quiet retreat away from the city—a place to cook, entertain, read, work, and swim.
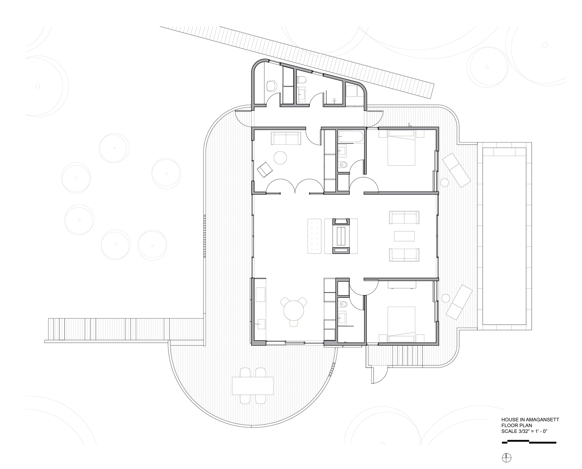
The design preserves an existing cottage, built in 1973, reconfiguring the existing three-bedroom, three-bathroom house to allow for a more contemporary layout and introducing a discreet addition. The architects restored the significant design elements of the original home, including the siding, wraparound fence, deck, and skylights.
A new layout creates an open floor plan, clearing a sightline through the house and into the surrounding dunes, while the addition of a new pool and pool deck allows for outdoor recreation.
The renovation also improves the building’s energy performance by enhancing the home’s natural lighting and ventilation.
客服
消息
收藏
下载
最近

























