查看完整案例

收藏

下载
项目名称:哥斯达黎加海滩谷仓住宅
位置:哥斯达黎加
建筑师: 逆向工程
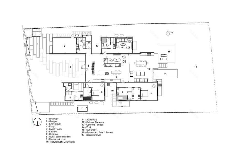
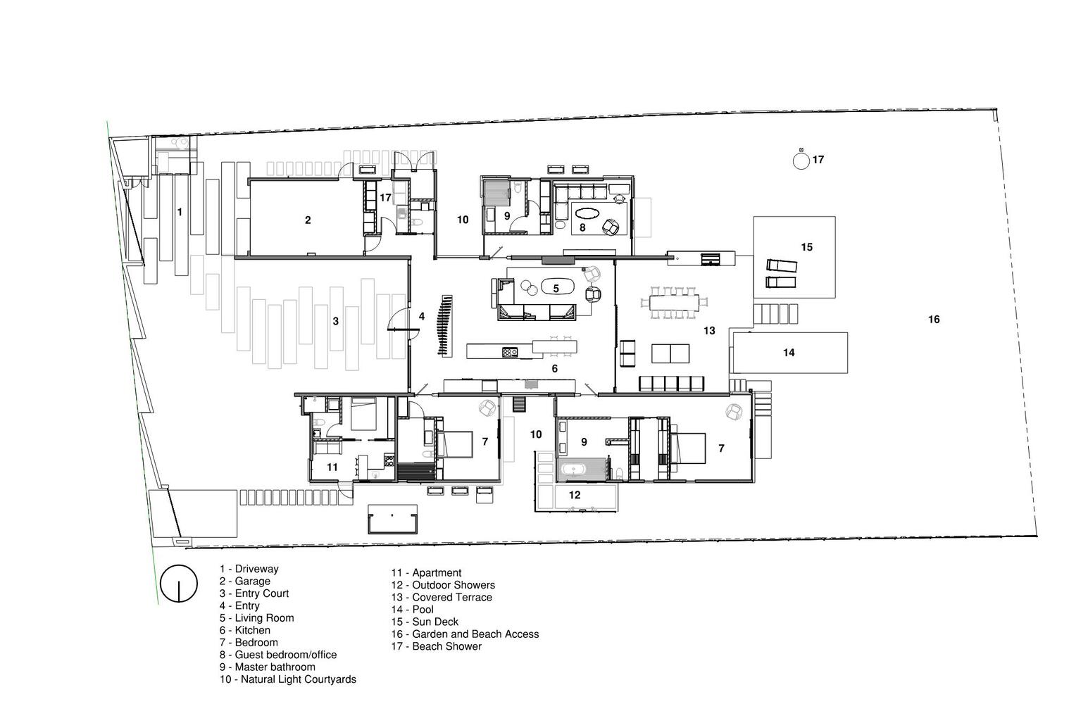
该场地是一个长方形的地块,位于哥斯达黎加中太平洋地区的海滨,朝着海洋有一个非常平缓的斜坡。现存的大片椰林被保留为海景的重要前景,经常有树懒和金刚鹦鹉光顾。业主寻求一个功能齐全的单层住宅,从室内到室外无缝衔接。房子的概念是从一个大谷仓屋顶衍生而来的,南北坡在不同的高度,创造了一个天窗来捕捉早晨的阳光。它鼓励自然通风,热空气通过贯穿整个建筑的缝隙排出。两堵平行的大石墙顶上的谷仓屋顶形成了一条从前门到海边的坚固轴线。它们形成了主要的开放生活空间的外壳,延伸到中心区域之外,像手臂一样延伸,形成了两个户外区域,一边是到达庭院,另一边是户外生活平台。住宅的主要入口是通过一个热带丰富的庭院,穿过一个由瓜纳卡斯特木制成的大型木制偏心枢轴门。
由当地金属工人制作的长拉手类似于海滩上常见的一块浮木。Inverse使用参数软件设计并委托制作的一个透明的16英尺定制木质雕塑描绘了一个海浪,并部分遮挡了前方的开放式生活区。这种住宅设计充分利用了太平洋海岸温和宜人的气候,其所有功能都包括在内:一个宽敞的露台,可供户外生活、用餐和烧烤,还有一层楼、盐水和无边泳池。当落日从其表面反射时,这后一个特征尤其具有催眠作用,与海洋形成镜像。当有必要保护住所免受恶劣天气影响时,一扇大的木框滑动门可以将室内与室外隔开。对住宅内部的概括描述是一个巨大的中央空间,四个宽敞的模块相互拉开,形成三个卧室和一个车库/杂物间。这些独立的体量创造了花园庭院空间,将不断变化的自然光和绿化模式引入卧室和客厅。
航海主题延续到主卧室,床后的墙壁由瓜纳卡斯特木制成,面板源自雨滴落入水中时形成的抽象同心波纹。床头吊灯类似于这些由手工吹制玻璃制成的水滴。主卧室直接面向大海,大窗户一直延伸到倾斜的天花板。浴室有同样的无缝抛光混凝土地板,但在淋浴区过渡到齐平板条木。所有浴室照明都间接位于浮动水槽柜台下方和镜子后面。大型巴西片麻岩石位于中央起居空间的两面墙壁两侧。到达天花板的落地灯打磨宝石,突出了宝石精心挑选的坚固质地。逆项目对绿色建筑的奉献在屋顶上显而易见,因为它遍布整个房屋。粘土瓦可以减轻暴雨带来的冲击,并带有太阳能热水板,减少对电网的依赖。所有居住空间和卧室都有大型吊扇,以促进冷空气流动并减少对空调的依赖。
Ilumineisn的照明设计是以间接照明策略赋予建筑生命的重要组成部分。可调光led既节能又能控制环境。主客厅有一个照明控制系统,可以预设各种灯光场景。电动卷帘控制光线和视野。地板是经过抛光的结构板坯,呈现出天然骨料,50%的白水泥混合物复制了海滩般的色彩。在室内设计方面,Inverse与客户密切合作,创造出精致而平静的舒适体验。为面料和装饰选择的颜色来自自然环境。为了配合某些关键区域,选择了装饰挂件和落地灯。从建筑到室内的一致设计与业主密切合作。客厅是一个舒适放松的空间,可以在热带暴雨期间躲进室内。
Camericha设计的l形组合式自然沙发是中心装饰。咖啡桌的灵感来自海滩上收集的沙币,由CASSINA设计,配有卡拉拉大理石桌面。古比椅和迷你玻璃边桌使布置更加完整。景观是将房屋融入场地的重要组成部分。为此,Inverse选择了Vida,他尽可能利用当地物种创造了一个郁郁葱葱的热带花园。硬质景观是用当地的石头组合设计的。景观照明用于为步行区营造整体光晕,但也用于突出特定植物、棕榈树干和特色墙壁。面向街道的花园墙由当地的火山岩建造而成,然后覆盖了郁郁葱葱的热带植物,为街道创造了一个隐私屏障。一旦一扇水平滑动的门打开,你就进入了一个似乎一直存在于此的热带避难所和家园。
哥斯达黎加海滩谷仓住宅外部实景图
哥斯达黎加海滩谷仓住宅外部实景图
哥斯达黎加海滩谷仓住宅外部实景图
哥斯达黎加海滩谷仓住宅外部实景图
哥斯达黎加海滩谷仓住宅外部实景图
哥斯达黎加海滩谷仓住宅外部实景图
哥斯达黎加海滩谷仓住宅内部实景图
哥斯达黎加海滩谷仓住宅内部实景图
哥斯达黎加海滩谷仓住宅平面图
哥斯达黎加海滩谷仓住宅剖面图
客服
消息
收藏
下载
最近













