查看完整案例

收藏

下载
项目名称:印度绿洲工作室位置 :印度
建筑师: 萨兰什
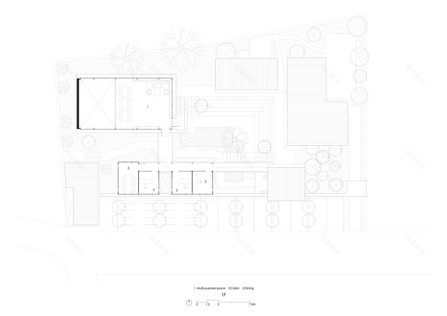
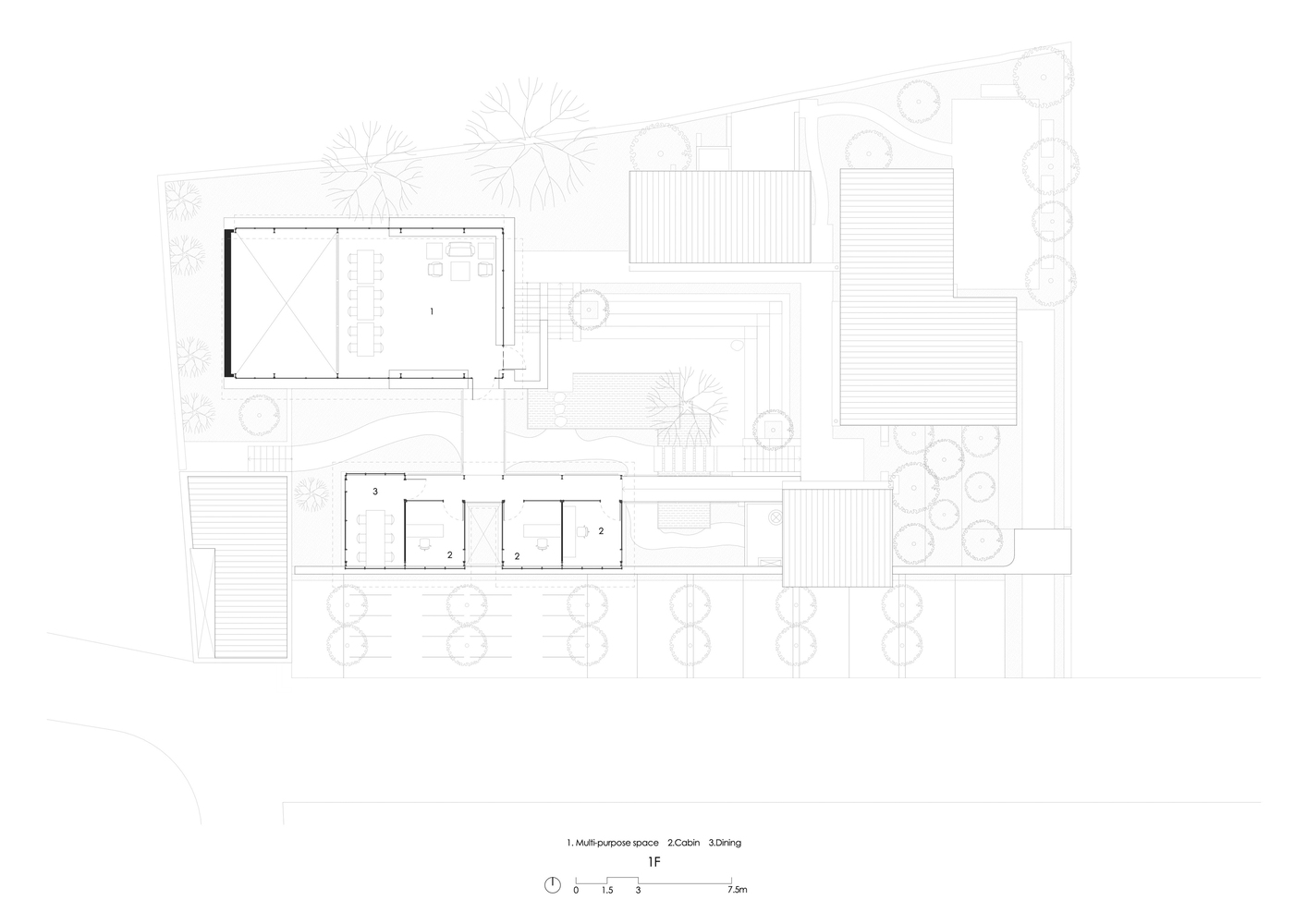
Saransh工作室已于2007年完成其建筑办公室艾哈迈达巴德,印度。它被称为绿洲,试图建立一个与景观和谐融合的工作空间。不同的小建筑块被设计成多个景观庭院,而不是一个工作室。这些由开放的走道连接起来,在不同的楼层之间形成无缝过渡。所有的建筑模块和庭院都通过景观走道连接起来,在不同的层次之间创造了一个无缝的过渡,同时也迫使工作室的人在一天中走出去。这些走道不仅方便移动,还作为公共空间,鼓励工作室居民之间的偶遇和自发合作。由五个周边建筑模块组成的中心庭院充当了一个焦点,促进了合作并提供了视觉连续性。而会议室附近的另一个庭院被高大的柠檬草环绕,成为长时间讨论的溢出空间。
印度绿洲工作室外部实景图
印度绿洲工作室外部实景图
印度绿洲工作室内部实景图
印度绿洲工作室平面图
印度绿洲工作室平面图
印度绿洲工作室剖面图
印度绿洲工作室剖面图
印度绿洲工作室剖面图
客服
消息
收藏
下载
最近











