查看完整案例

收藏

下载
项目名称:美国波士顿学院Hoag馆
位置:美国
建筑师: 佐佐木
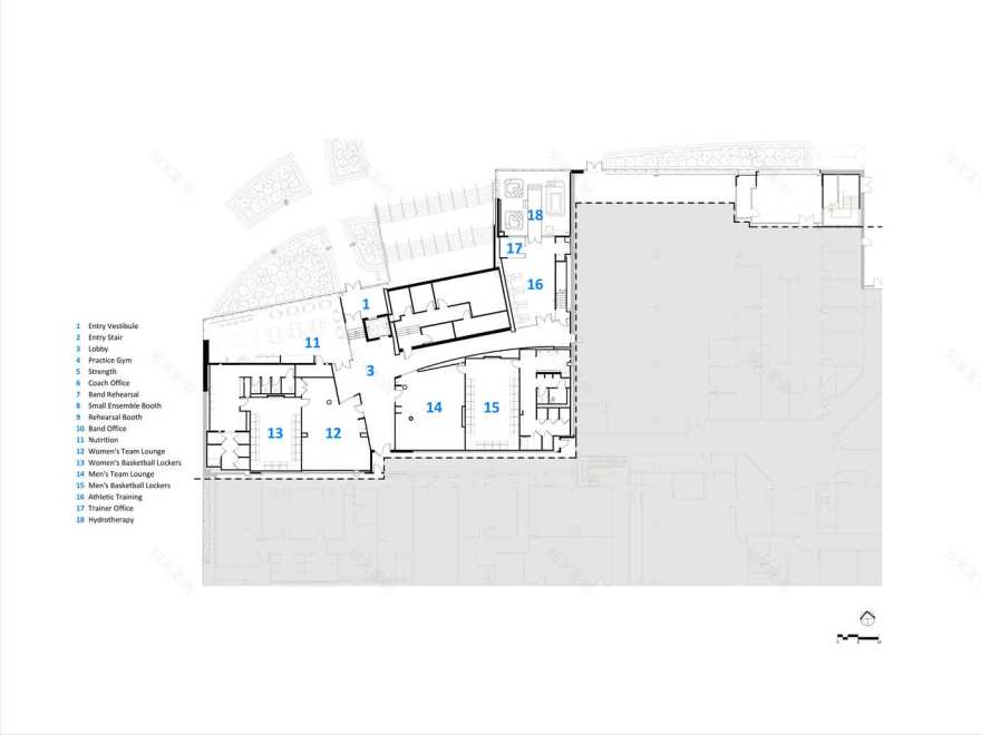
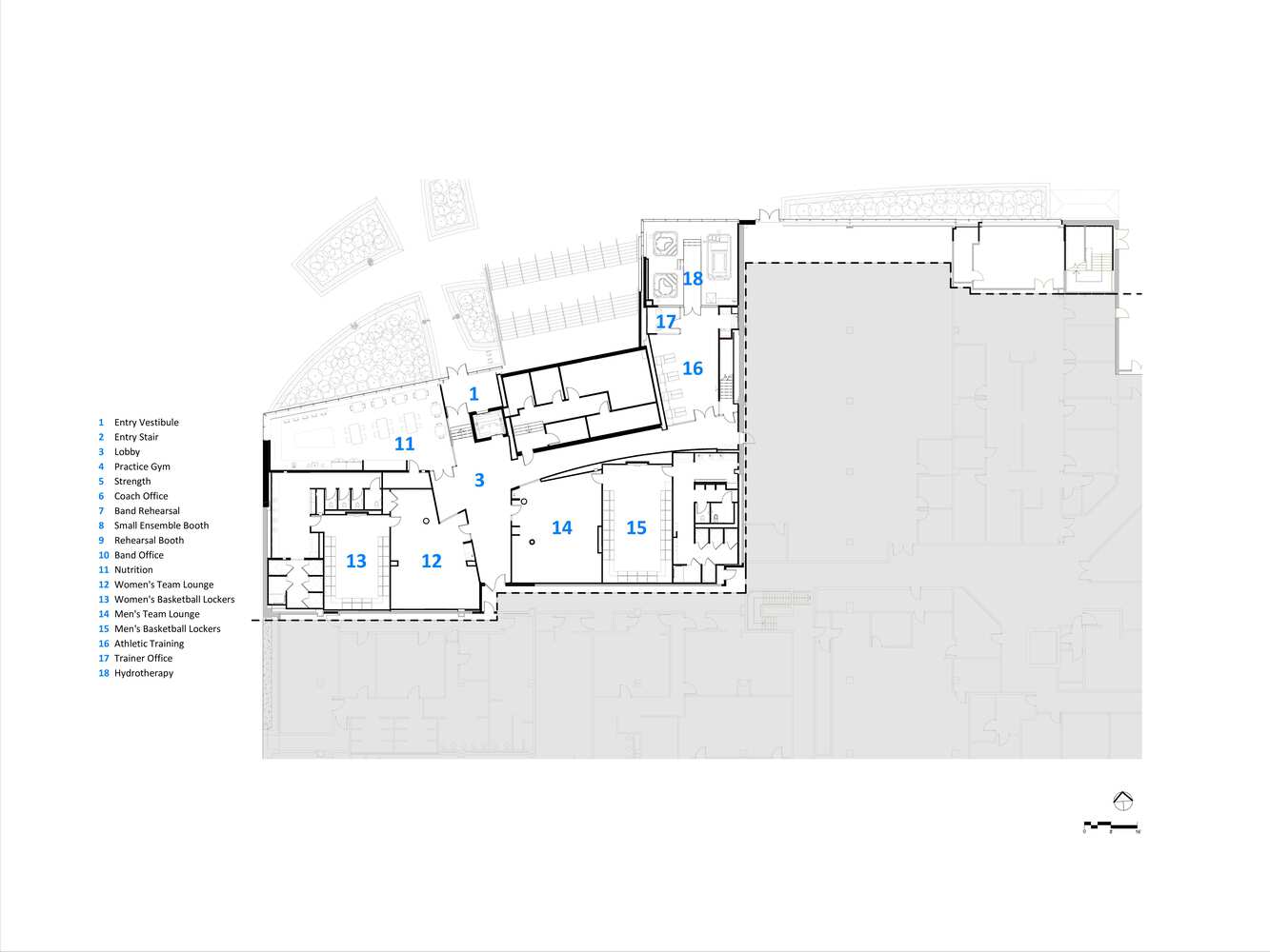
波士顿学院需要一个更新的设施来支持男子和女子篮球项目,并为球员招募和发展提供项目元素。Conte Forum竞技场的这一创造性的增加和翻新提供了所有关键的计划要素,与建造一个全新的设施相比,成本和资源要少得多,同时允许团队在他们比赛的同一设施中继续练习和训练。这一改进升级了竞技场的一个主要入口,并且只需要一小块额外的土地,这几乎不会被认为是对改进后的广场的侵犯。该设计解决方案为篮球队提供了一个完全独立且安全的“亭子”,该篮球队需要进入与练习馆和教练套房相邻的新空间的权限。新容纳的项目区域包括力量和调理、运动医学、营养、团队休息室和更衣室,以及完整的练习、排练和行进乐队的存储区域。
所有翻新的和新的空间都完全采用了新鲜的配色方案和令人兴奋的新图形,这些图形将空间联系在一起并给新员工留下深刻印象,包括显示球队和球员历史成就的显示器以及球队从其提供商New Balance获得的最新装备。此外,初级练习馆也进行了彻底的改造。以前,练习馆是一个没有窗户的空间,与排球项目共享,包括木制看台,现在是一个充满自然光的透明空间,校园的其他人都可以看到。从地板到天花板和墙壁到墙壁打开外墙涉及到精心的结构细节,以支撑幕墙并改善结构的外观。不仅增加了便利性,而且团队与校园和同学们的联系也更紧密了,他们现在可以见证并更好地欣赏团队投入的奉献精神和时间。
通往主竞技场的新入口门厅和大堂改善了建筑的热性能,现在可以通过电梯完全到达。透明的入口因室内的活动和景观而发光,展示了新的图形,并在比赛日为穿过校园的人营造了兴奋感。除了提供透明的纲领性好处外,垂直玻璃立面还为20世纪90年代初的复古竞技场赋予了当代建筑策略,与邻近的石头学院哥特式建筑相得益彰。广场经过重新设计,增加了灵活性和社交互动,可容纳特殊活动、足球尾随和日常娱乐。新的简化广场设计位于一个重要节点处,一个流行的楼梯连接着上下校区,利用战略性放置的花盆和巧妙的分级增加了完全无障碍的可用空间。更舒适的布局包括一片树荫和一个新的座位和桌子区,以吸引许多路人,并为那些在附近咖啡馆用餐的人提供一个方便的社交休息和目的地。
美国波士顿学院Hoag馆外部实景图
美国波士顿学院Hoag馆外部实景图
美国波士顿学院Hoag馆外部实景图
美国波士顿学院Hoag馆外部实景图
美国波士顿学院Hoag馆内部实景图
美国波士顿学院Hoag馆内部实景图
美国波士顿学院Hoag馆内部实景图
美国波士顿学院Hoag馆内部实景图
美国波士顿学院Hoag馆内部实景图
美国波士顿学院Hoag馆内部实景图
美国波士顿学院Hoag馆内部实景图
美国波士顿学院Hoag馆内部实景图
美国波士顿学院Hoag馆内部实景图
美国波士顿学院Hoag馆内部实景图
美国波士顿学院Hoag馆内部实景图
美国波士顿学院Hoag馆平面图
美国波士顿学院Hoag馆平面图
美国波士顿学院Hoag馆平面图
客服
消息
收藏
下载
最近





















