查看完整案例

收藏

下载

翻译
Architects:Ho Khue Architects
Area:100m²
Year:2022
Photographs:Trieu Chien
Manufacturers:Thanh Ha
Lead Architect:Ho Khue
City:Da Nang
Country:Vietnam
Text description provided by the architects. The Lantern House, on a small plot, has tall ceilings, big wooden doors, and specialized brickwork. Sitting on 64 sq. meters of land, it’s a little giant and a jewel in a neighborhood often overlooked for development. The small footprint, ecological airflow, and interesting lighting make this house an eye-opener and a beauty,
The homeowner, a family of three, desired a minimalist, rustic, cozy, open-feeling living space. Also requested were lots of diffused light, gardens, and great airflow. The family required 3 bedrooms, a study, and other living spaces. The 64 square meter lot sits between two small angled alleys in an extremely dense area filled with both buildings and people. After being built, the house appears as a beautiful lighted lantern from all aspects above the house. It is a beauty and really stands out in the cityscape view.
Amazing design applications have become solutions to problems commonly thought of as impossible. There are also 17 big oversized wood doors, many with rounded tops. That is an extremely large number of wooden doors, let alone giant doors! In order to cool the house naturally and create diffused light and shadows, the walls of the house are made by leaving staggered, angled spaces in the bricks. The walls are, at times, big and straight up, while others form nooks and crannies, making the light and structure so interesting. Ventilation occurs, but rain does not get into the house.
Visitors approaching the house are met with the larger double wooden doors which combine with the unusual brickwork. The doors and angled walls let people unequivocally know that they are about to enter a very special space. Inside the house are two stacked parallel staircases, which are works of art in their own right. The giant skylight on the roof, which can be seen from the ground floor, lets in light during the day while an orange glowing light creates the lantern effect at night.
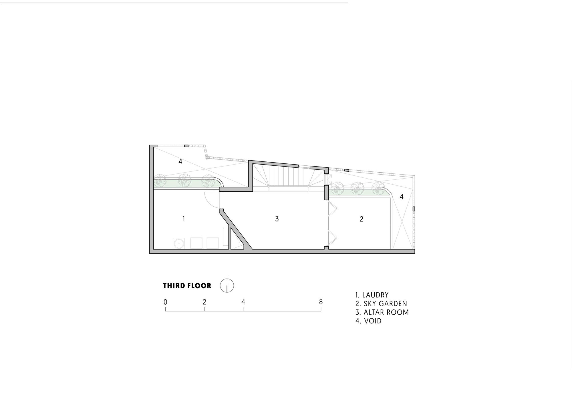
The compact three-story Lantern House is masterfully designed to accommodate all essential functions, plus a worship room and a drying yard. The living, cooking, and dining areas are integrated into a multifunctional space that serves as the primary communal area for the family.
The proximity of other structures was of concern due to privacy. This was mitigated by utilizing fired bricks laid with gaps that will function like louvers. This construction method allows cool breezes from the alley to flow into the house while creating privacy. Over time, these gaps will provide an ideal environment for climbing plants, adding a natural, evolving element to the facades.
Despite its unassuming location and compact size, the Lantern House is designed to serve as a nurturing home for a family, ensuring that the essential values of family life are prioritized and preserved. This project aspires to challenge conventional perceptions and bring attention to often overlooked urban spaces. By infusing thoughtful design into every aspect, the Lantern House aims to illuminate and transform these neglected areas, demonstrating the potential for harmonious living within the city.
Project gallery
客服
消息
收藏
下载
最近

















































