查看完整案例

收藏

下载

翻译
Architect:Jamil Carrillo
Location:Loja, Ecuador; | ;View Map
Project Year:2024
Category:Offices;Hospitals
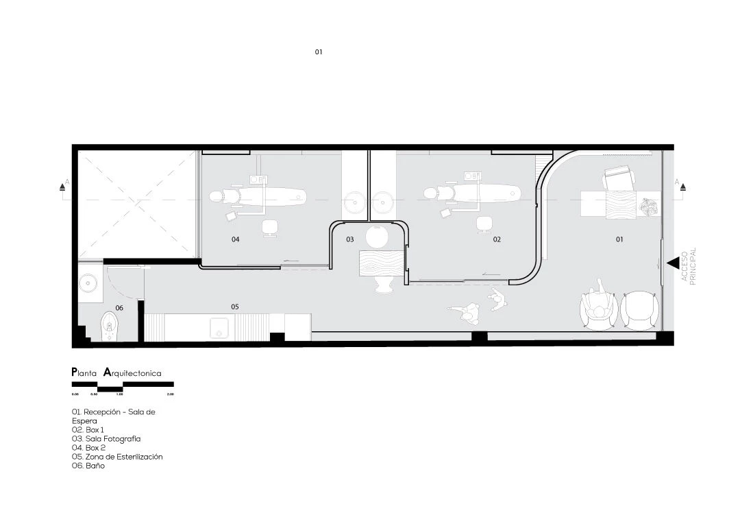
QA Dental Studio, a cutting-edge dental clinic, redefines the patient experience with innovative and organic interior design that combines efficiency and aesthetics in a 45 m2 space. From the moment you enter, you find yourself immersed in an environment that blends functionality with natural beauty.
The clinic's design is characterized by its organic shapes and flexibility, adapting to the changing needs of staff and patients. Service and technical spaces are integrated harmoniously and functionally.
Curved and soft walls define the space boundaries, evoking the softness and fluidity of nature. The color palette is inspired by earthy and neutral tones, with wooden accents providing a sense of calmness and serenity.
Furniture and equipment are strategically distributed to maximize available space and enhance functionality. Workstations are designed with ergonomic shapes and easy-to-clean surfaces, while cabinets and storage are elegantly integrated.
Lighting plays a crucial role in the design, with recessed ceiling lights that can be adjusted according to the needs of each area. The design's flexibility is reflected in the modular layout of furniture and partition panels, which can be easily reconfigured to accommodate different types of treatments and staff needs. This allows the clinic to quickly adapt to new technologies and procedures without the need for structural changes.
QA Dental Studio is much more than a conventional dental clinic: it is a dynamic and versatile space that embodies the perfect fusion of form and function, offering an exceptional treatment experience in a unique environment.
▼项目更多图片
客服
消息
收藏
下载
最近











