查看完整案例

收藏

下载

翻译
Housing estates in Thailand are normally designed regardless of the relationship between indoor and outdoor space. Therefore, VIVE Bangna is designed to improve quality of single house space by linking all of areas together even the garden. Also, the outdoor space must be used by residents with full privacy.
Since privacy design is the key concept of the project, the deep house plan layout and connecting double courtyard design - active and passive courtyard - are presented in order to completely fulfill the goal. Firstly, the active courtyard, in addition to store privacy of living area form the main road, can support various activities according to user’s lifestyle such as playing basketball.
Secondly, the green passive courtyard serves as recreational area of the house, allowing residents to peacefully relax in private zone without being disturbed from neighbor as the yard faces the windowless side of neighbor. The sunken seating court is placed in the garden to create seamless green area. Nevertheless, both active and passive courtyard can be combined through semi-outdoor area to become a connecting flexible courtyard supporting needs of larger area such as party event perfectly.
The main concept in designing the living space inside the house is nature touch living concept that allows every function room to be closer to nature and to be able to see the green view, especially from private passive courtyard.
Space in the first floor is designed with open plan concept combining with double volume 6.5 m., fully opening to the panoramic view of the garden, providing natural light and ventilation to create relaxing space, and connecting all of spaces in the house together whether it is inside-outside or upstairs-downstairs. In addition, Thai kitchen specially designed to match with modern design pantry is built with glass on the top counter to enable this area to see the green view as well, creating perfect culinary space for inhabitants.
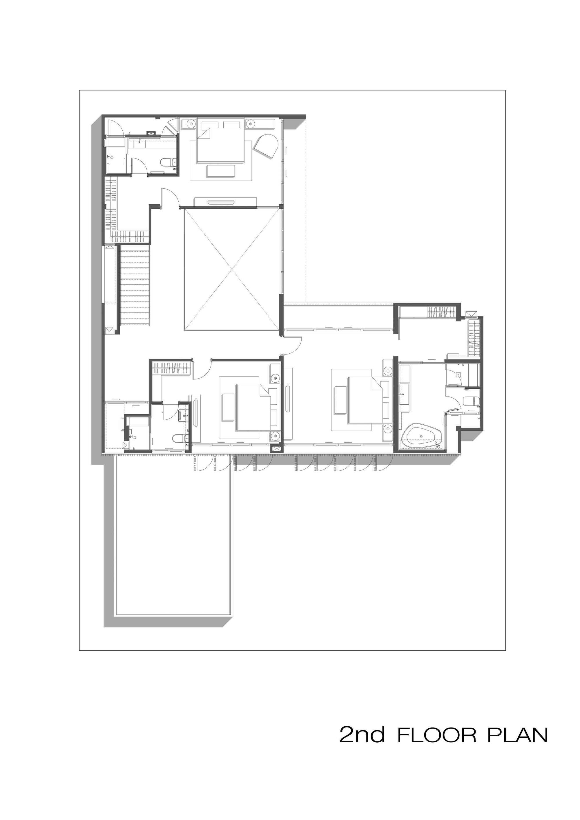
On the second floor,the main feature is the airiness connecting to double volume, providing natural view and light together with ventilation. Furthermore, the pocket gardens are inserted in bathroom and stair halls to enhance natural atmosphere inside the house, highlighting the nature touch living concept. Master bedroom is designed to have double green view, embracing two-side green view while staying in bed.
The customized adjustable façade connecting with home automation system is design as random vertical fins shading to provide sunshade and privacy for residents according to user’s preference.
客服
消息
收藏
下载
最近





























