查看完整案例

收藏

下载
Casa Santa Teresa是一个典型的度假屋,法国美女设计师Amelia Tavella重新设计了一座400平方米的现代明亮的白色建筑,以此回应20世纪50年代的房子,接近自然,海滩,岩石,和海洋要求内部和外部空间之间的无缝互动。建筑师回忆道: “我希望美能流动起来,成为通往地平线和想象力”。大型旋转门,让景色流进来,没有隔墙,让美丽无边无际地流动。
现代家园从城市中抽离出来,远离喧嚣和混乱,走向宁静和自然,度假屋的内部和外部空间是平衡的,以促进健康和快乐的生活流动,藤条遮阳篷和百叶窗可以过滤强烈的阳光,创造出阴凉舒适的区域。
房屋的建筑采用阶梯式设计,因此每一层的大阳台都可以在阳光的照射下伸展开来,室外游泳池是最引人入胜的地方,就在酒店的前面,就在海滩旁。
户外椅子和桌子组成户外用餐区,位于游泳池露台上,位于一楼阳台上。
Amelia Tavella说:“我对创造充满热情,从已经写好的历史中进行”
温暖的天空拥抱着度假屋,在一楼阳台上的早餐,看起来是一天的完美开始。
旋转门将外面的世界带入一楼的起居室,一张中性的沙发和木质的躺椅使起居室的色调平静而简单,并且与木质框架的门互补,给房间带来了令人惊叹的元素。
amelia tavella表示: “这是典型的度假别墅,它萦绕在我童年快乐夜晚的记忆中,那时夜晚拥抱白天,美景是一场庆典。”
白天,洁白的墙壁把自然光深深地带进房间。
欢快明亮的散布垫给餐厅带来生气,与餐厅色彩斑斓的吊灯相得益彰。
在主卧室外面,木制的太阳椅伸展在楼上的阳台上。
混凝土架子上装饰着地中海艺术品和小饰品。
平面图
一楼平面图
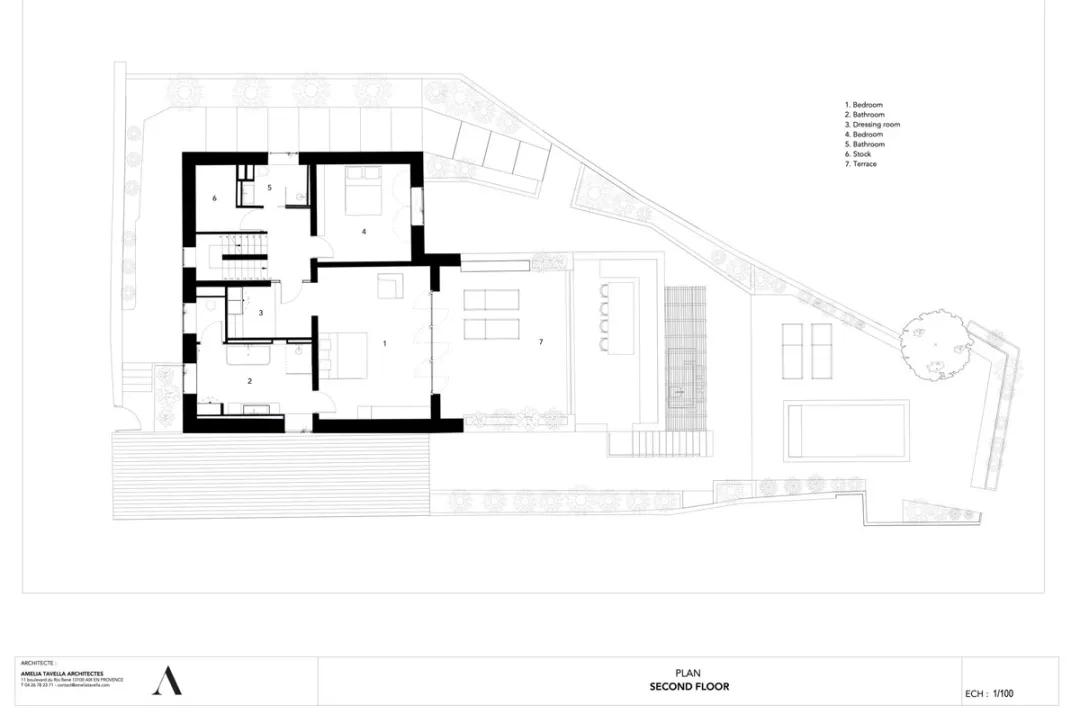
二楼平面图
客服
消息
收藏
下载
最近
































