查看完整案例

收藏

下载
项目名称:襄阳金地 · 云栖天悦销售展示中心
位置:湖北
设计公司:易和室内设计
建筑设计:上海柏涛建筑设计咨询有限公司
景观设计:上海水石景观环境设计有限公司
摄影师:三像摄
本案位于襄阳市高新区,毗邻清河,周边交通体系便利,业态丰富。EH DESIGN GROUP 易和设计集团旗下易和室内设计团队,携手极尚软装陈设团队撷荆楚文化中的巫音元素,以汉水文化縠纹元素辅之,取襄阳文化耀眼璀璨,如“大珠小珠落玉盘”之意,打造音韵和谐的现代律动空间。古楚巫音奇异、诡谲、典雅的音调,古朴、严谨、规范的结构形态,反映了楚人的生活情绪和精神面貌。本案将巫音无形的音律美具象化,整个空间形态如一段凝固的优美旋律落于水面之上,美得大气恢弘。墙面造型曲线流畅延伸盘桓,赋予空间律动感,虚实起伏之间让人恍惚看到铁马金戈刀剑如梦的古城侠气,镜面金属线条则勾勒现代风格的精致考究。原木色地板、天花与白色墙面和谐映照,色彩柔美舒适。沙盘中空设异形装饰,表达“珠”落之意。鲜艳的色彩与朴素的空间底色形成强烈的对比,极具冲击力。涉水而来步步生光,通向水吧的木质天花如莲叶田田,增添了空间趣味性。洽谈区临水自照尽享天光,视觉明朗格调不凡。清爽的蓝白配色闲适惬意,静坐放空或密谈私语两相宜。
襄阳金地 · 云栖天悦销售展示中心室内实景图
襄阳金地 · 云栖天悦销售展示中心室内实景图
襄阳金地 · 云栖天悦销售展示中心室内实景图
襄阳金地 · 云栖天悦销售展示中心室内实景图
襄阳金地 · 云栖天悦销售展示中心室内实景图
襄阳金地 · 云栖天悦销售展示中心室内实景图
襄阳金地 · 云栖天悦销售展示中心室内实景图
襄阳金地 · 云栖天悦销售展示中心室内实景图
襄阳金地 · 云栖天悦销售展示中心室内实景图
襄阳金地 · 云栖天悦销售展示中心室内实景图
襄阳金地 · 云栖天悦销售展示中心室内实景图
襄阳金地 · 云栖天悦销售展示中心室内实景图
襄阳金地 · 云栖天悦销售展示中心室内实景图
襄阳金地 · 云栖天悦销售展示中心室内实景图
襄阳金地 · 云栖天悦销售展示中心室内实景图
襄阳金地 · 云栖天悦销售展示中心室内实景图
襄阳金地 · 云栖天悦销售展示中心室内实景图
襄阳金地 · 云栖天悦销售展示中心室内实景图
襄阳金地 · 云栖天悦销售展示中心室内实景图
襄阳金地 · 云栖天悦销售展示中心室内实景图
襄阳金地 · 云栖天悦销售展示中心室内实景图
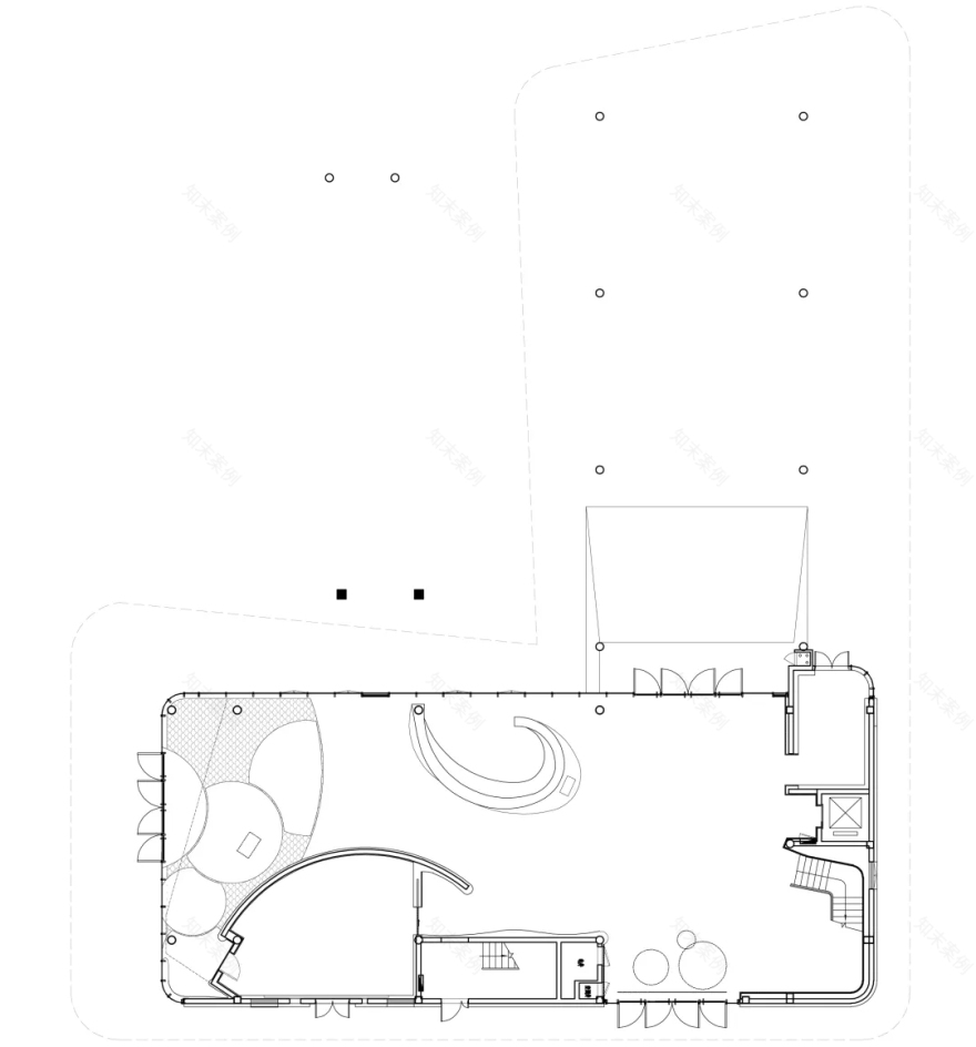
襄阳金地 · 云栖天悦销售展示中心平面图
襄阳金地 · 云栖天悦销售展示中心平面图
客服
消息
收藏
下载
最近


























