查看完整案例

收藏

下载

翻译
Architects:Downie North Architects
Area:230m²
Year:2021
Photographs:Katherine Lu
Manufacturers:Academy Tiles,AstraWalker Tapware,Caroma,Dulux,Great Dane,Lockwood,Sisal
Lead Architects:Catherine Downie, Daniel North
Structural Engineers:Harrison & Morris Consultancy Pty Ltd
Landscapers:Ballast Landscape
Builder:John Nettle
Hydraulic Engineers:Adcar Consulting
City:Balmoral
Country:Australia
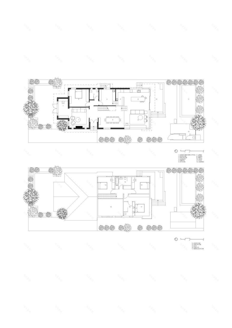
Text description provided by the architects. Located in Balmoral, Australia, the design tackled the challenge of merging a sloping, south-facing site with the need for a two-story extension, all while preserving the classic Californian bungalow frontage. The primary goal was to invite northern sunlight into the home, ensuring a connection with the surroundings. This was achieved through a two-story internal atrium, crowned by a northern-facing skylight, which floods the interiors with light. The new layout arranges kitchen, living, dining areas, and upper-level bedrooms around this central feature. The architecture serves a busy family of five, with both parents working and children in school. The clients needed a functional and efficient design that allows for simple, conscious living in harmony with their garden surroundings.
The Site & Brief - The design had to meet the demands of an active household. The original house, while well-proportioned, lacked a connection to its landscape, making it essential for the new design to ground the home within its site. The brief called for retaining as much of the original bungalow as possible, adding new kitchen and family areas that connect to the south-facing backyard, and incorporating three additional bedrooms and bathrooms on the new upper level. The design had to balance the mass and volume of the new addition while maximizing northern light.
Constraints - The design needed to balance the brief’s programmatic requirements with the site’s orientation, proximity to neighbors, and a limited budget. Situated in Balmoral’s foreshore area, it was crucial to respect the heritage and form of the beachside bungalows. The new addition steps back from the frontage, echoing the existing structure in form and materiality.
Architects’ Response - The design revolves around a two-story internal atrium with a seven-meter-high ceiling over the central dining area, topped by four north-facing skylights in a cathedral-like ceiling. Adjustable external blinds control thermal gain and daylighting. The western wall features three picture windows framing views of the sky and neighboring trees. The dining room, situated beneath the roof’s apex, serves as a central gathering and circulation area, with the kitchen, living spaces, and main stairs leading to the upper level branching off from it.
Stepping down to the family and kitchen areas, the floor and ceiling levels are lowered to follow the natural slope of the site, creating a cozy, intimate space. Large sliding glass doors open to the deck and BBQ area, extending to the pool and cabana. The house unfolds gradually, revealing spaces in delightful, unexpected ways. The upper level, containing the master bedroom and ensuite, two children’s bedrooms, and a family bathroom, features soaring pitched ceilings and picture windows offering discreet views. Large banks of south-facing windows provide expansive neighborhood views.
Sustainable Design - Guided by financial and social responsibility, the design minimized the physical and carbon footprint. Materials were retained and reused where possible, including reclaimed brick and sandstone, locally crafted timber windows and doors, locally fabricated structural timbers and cladding, and high-performing wool insulation.
Charged with creating a home that catered to modern-day living and resolved the issues of a dark, disconnected existing bungalow without losing its charm, the design solves all these requirements with a simple, elegant solution. In the words of the architect, ‘Its a simple manoeuvre, and the joy of this space is what architecture is about’. In the words of the client, Claire, ‘Cat and Dan gave us this miraculous solution, and the challenge of the property has turned into the most endearing part’.
Project gallery
客服
消息
收藏
下载
最近

















